Version: 8.24.0Navigation überspringen
McMakler GmbH
449.000 €
7 Zimmer  •  160 m²  •  2.017,3 m² Grundstück

Sonstiges zum Kauf • als Kapitalanlage geeignet
449000 €
3.939 €/m²
7 Zimmer  •  160 m²  •  2.017,3 m² Grundstück

Ruheoase vor den Toren von Sylt und Föhr: Gepflegtes Einfamilienhaus mit großem Saunabereich.

Objektnr: 1067211

Als ideale Wahl für Ganzjahreswohnen oder als Ferienimmobilie präsentiert sich dieses Rotklinkereinfamilienhaus mit stufenlosem Zugang, beschaulich und sicher in absoluter Naturlage in Emmelsbüll-Horsbüll. Der Standort überzeugt besonders durch seine ruhige Feldrandlage in unmittelbarer Nähe zur Nordsee und vor den Toren der Nordseeinseln Sylt und Föhr. Hier locken Entspannung und ausführliche Spaziergänge oder Radfahren durch die Natur. Dank ihres gepflegten Zustands ermöglicht die 1995 erbaute Immobilie die ideale Grundlage für einen schnellen Einzug - lassen Sie sich überzeugen.

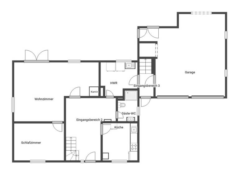
Insgesamt 6,5 Zimmer auf 2 Etagen umfasst die ca. 114 m² große Wohn- und ca. 50 m² wohnlich ausgebaute Nutzfläche. Als gemütliche Rückzugsorte im gemeinsamen Alltag dienen 4 Schlafzimmer und eine großzügige Ausbaureserve im Spitzboden. Alternativ lassen sich diese auch als Büro- oder Hobbyzimmer nutzen. Als familienfreundlich erweisen sich 2 Badezimmer mit Dusche und Badewanne im Hauptgebäude. Im Nebengebäude finden sich neben eineinhalb zusätzlichen Zimmern ein großzügiger Spa-Bereich mit Sauna, große Dusche, WC und Ruheraum mit Ausgang auf den Balkon.
Als ideale Wahl für Familien erweist sich der Grundriss mit einem barrierefreien Schlafzimmer im Erdgeschoss und großer Doppelgarage für Aktivitäten bei schlechtem Wetter. Die Ausstattung mit einer Einbauküche erleichtert den zukünftigen Bewohnern den Alltag. Ebenso umfasst die Ausstattung eine Fußbodenheizung, einen Kaminofen sowie einen ansprechenden Fliesenboden und eine Möblierung.

Darüber hinaus versprechen der Balkon sowie auch das 2017 m² große Grundstück Regeneration an der frischen Luft. Herausragend ist der große Garten mit Terrasse, der mit seiner eindrucksvollen Weite begeistert. Ein wahres Paradies, das sich durch seine außerordentlich großzügige Fläche auszeichnet und in dem man morgens Rehe und Hasen begrüßen kann. Genießen Sie ungestörte Momente der Entspannung, abgeschirmt von neugierigen Blicken. Das Objekt stellt zur freien Nutzung auch einen großen Schuppen bereit. Abschließend sorgt eine große Doppelgarage für eine entspannte Parksituation.

Merkmale

  • Bezug: ab sofort
  • 2.017,3 m² Grundstück
  • Einbauküche
  • Kein Keller
  • 2 Stellplätze
  • Gäste-WC
  • Balkon
  • Garten

Grundrisse

Grundrisse
1 / 2

Virtueller Rundgang

3D tour

Realisiere Dein Projekt

Bausubstanz und Energie

Energieausweis

C
  • Baujahr1995
  • Zustand der ImmobilieGepflegt
  • EnergieträgerÖl
MediumRectangleTop

Preisdetails

Kaufpreis
449000 €
3.938,59 €/m²
Provision für Käufer
Die Provision i.H.v. 3,57 % inkl. MwSt. ist mit Kaufvertragsbeurkundung fällig, sofern der Verkaufspreis über 83.000,00 € liegt.

Liegt der Verkaufspreis dagegen bei/unter 83. Weitere Informationen siehe Provisionshinweis.
Geschätzte Gesamtkosten
465.029 €1
Kaufpreis
449.000 €
Provision für Käufer (3,57%)
16.029 €
1Der angezeigte Wert ist eine automatisch berechnete Schätzung von immowelt.
2Bei den Angaben handelt es sich um ortsübliche Werte. Individuelle Kosten können abweichen.

Lage

address-icon
Emmelsbüll-Horsbüll (25924)
Der Anbieter hat die genaue Adresse nicht freigegeben
Lage: Grüne Feldrandlage begeistert Ruhesuchende und Naturliebhaber
Bildung und Betreuung: Kindergärten und einigen Schulen in ca. 6 km bis ca. 9 km Entfernung bieten Familienfreundlichkeit
Nahversorgung: Ein Supermarkt in 5 Autominuten Entfernung und eine Apotheke in 6 km Entfernung für Besorgungen des Alltags
Anbindung: Nähe zu den Fähren nach Sylt, Amrum und Föhr

Weitere Informationen

Provisionshinweis Die Provision i.H.v. 3,57 % inkl. MwSt. ist mit Kaufvertragsbeurkundung fällig, sofern der Verkaufspreis über 83.000,00 € liegt.

Liegt der Verkaufspreis dagegen bei/unter 83.000,00 €, ist die fest vereinbarte Mindestprovision i.H.v. mind. 5.950,00 € inkl. MwSt. mit Kaufvertragsbeurkundung fällig. Die Mindestprovision fällt insg. nur einmal an, wodurch Verkäufer und Käufer die Mindestprovision dann jeweils mit 2.975,00 € inkl. MwSt. tragen. Sonstiges Vereinbaren Sie noch heute einen Besichtigungstermin!
_____________________________________________________

Alle Angaben sind ohne Gewähr und basieren ausschließlich auf Informationen, die uns von unserem Auftraggeber zur Verfügung gestellt wurden. Wir übernehmen keine Gewähr für die Vollständigkeit, Richtigkeit und Aktualität der Angaben. Stichworte Wohnfläche: 114,26 m², Nutzfläche: 34,00 m², Gesamtfläche: 160,00 m², Anzahl der Schlafzimmer: 5, Anzahl der Badezimmer: 2, Anzahl Balkone: 1, Anzahl Terrassen: 1, 2 Etagen Sonstiges/Wohnen: Einliegerwohnung

Weitere Services

Lust auf eine Besichtigung?
Eine Frage zur Immobilie?
Nachricht hinzufügen
Mit der Nutzung der oben angegebenen Telefonnummer oder durch Klicken auf „Kontaktieren“ akzeptierst Du die Allgemeinen Nutzungsbedingungen, denen Du jederzeit widersprechen kannst. Weitere Informationen zum Datenschutz

Über den Anbieter

McMakler GmbH
McMakler GmbHMaklerbüro
Am Postbahnhof 17, 10243 Berlin
Ihr McMakler TeamDein Kontakt
Online-ID: 2nhkq5g
Referenznummer: f6c76ae600
McMakler GmbH
McMakler GmbH
Nachricht hinzufügen
Mit der Nutzung der oben angegebenen Telefonnummer oder durch Klicken auf „Kontaktieren“ akzeptierst Du die Allgemeinen Nutzungsbedingungen, denen Du jederzeit widersprechen kannst. Weitere Informationen zum Datenschutz
MediumRectangleTop
MediumRectangleBottom
MediumRectangleTop
Wie zufrieden bist du mit dieser Seite (nicht mit der Immobilie selbst)?