Version: 8.25.1Navigation überspringen
Drenkhahn Immobilien GmbH
2.757 €
6 Zimmer  •  250,7 m² Bürofläche

Bürofläche zur Miete
2.757 €
6 Zimmer  •  250,7 m² Bürofläche

Attraktive Lage: Bürofläche im Hochparterre nur 200 m vom Rostocker Hauptbahnhof entfernt

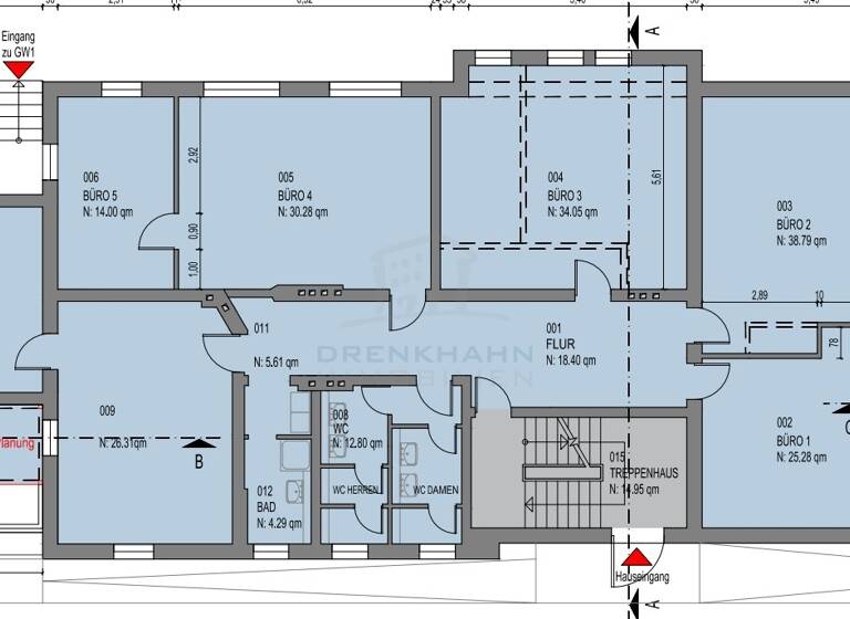
Diese vollständig renovierte Büro-/Praxisfläche im Erdgeschoss eines vierstöckigen Wohn-/ Geschäftshauses in Rostock bietet auf rund 250,67 m² Nutzfläche optimale Bedingungen für Büro- oder Praxisnutzung. Sechs großzügig geschnittene Räume ermöglichen eine flexible Raumaufteilung und vielfältige Nutzungskonzepte. Der hochwertige PVC-Bodenbelag verbindet ansprechendes Design mit Funktionalität und Pflegeleichtigkeit. Große Fensterflächen sorgen für lichtdurchflutete Arbeitsbereiche und eine angenehme Atmosphäre. Eine Zentralheizung mit Gas gewährleistet gleichmäßige Wärme und hohen Komfort.

Die Lage überzeugt durch ihre sehr gute Anbindung an den öffentlichen Nahverkehr und die Nähe zum Rostocker Hauptbahnhof. Sowohl Mitarbeitende als auch Kundinnen und Kunden profitieren von der einfachen Erreichbarkeit und der attraktiven Infrastruktur des Standorts.
Drei Außenstellplätze stehen zusätzlich zur Verfügung, die monatliche Miete hierfür beträgt 95,- € netto pro Stellplatz. Es können weitere Stellplätze zu Verfügung gestellt werden.

Diese Einheit vereint moderne Ausstattung, durchdachte Raumgestaltung und eine ausgezeichnete Lage - ideale Voraussetzungen für ein professionelles und repräsentatives Arbeitsumfeld in Rostock.

Der Mietbeginn kann sofort oder nach Vereinbarung erfolgen. Die Kaution beträgt 3 Gesamtmieten. Sämtliche Mietpreise verstehen sich zuzüglich der gesetzlichen Mehrwertsteuer von 19 %.

Merkmale

  • Einbauküche
  • Badezimmer: Bad mit Dusche, Bad mit Fenster
  • Gäste-WC
  • Bodenbelag: Kunststoff
  • Balkon
  • 3 Stellplätze: 3 Außen-Stellplätze
- Balkon
- WC D/H
- Pantry mit Mikrowelle
- großzügige Bürozimmer mit hohen Decken
- Datenverkabelung
- 5 Zimmer separat begehbar, ein Durchgangzimmer
- Stellplätze am Objekt (a 95,- € mtl. zzgl. MwSt.)

Grundrisse

Grundrisse
1 / 1

Realisiere Dein Projekt

Bausubstanz und Energie

Energieausweis

Endenergieverbrauch (Wärme)

  • Baujahr1909
  • Zustand der Immobilierenoviert / saniert
  • HeizungsartZentralheizung
  • EnergieträgerGas
MediumRectangleTop

Mietkosten

Nettomiete
2.757,37 €
Nebenkosten
752,01 €
Heizkosten
in Warmmiete enthalten
Zusätzliche Kosten
Miete pro Stellplatz
95 €
Provision für Mieter
3,57 Bruttowarmmieten inkl. gesetzl. MwSt..
Der Makler-Vertrag mit unserem Unternehmen entsteht durch schriftliche Vereinbarung oder durch die Inanspruchnahme unserer Maklertätigkeit. Weitere Informationen siehe Provisionshinweis.
Kaution
10636.83 €
Weitere Preisinformationen
3 Stellplätze, Miete je: 95,00 EUR

Lage

address-icon
Goethestraße 17StadtmitteRostock (18055)
Das Rostocker Bahnhofsviertel zählt zu den zentralsten und verkehrsgünstigsten Lagen der Hansestadt. Das Quartier rund um den Hauptbahnhof hat sich in den vergangenen Jahren zu einem gefragten Standort für Büros und Dienstleistungsunternehmen entwickelt. Die Nähe zur Innenstadt und die hervorragende Anbindung an den öffentlichen Nahverkehr machen diesen Standort besonders attraktiv.

Die Bürofläche befindet sich nur etwa 200 Meter vom Rostocker Hauptbahnhof entfernt und ist somit in wenigen Minuten zu Fuß erreichbar. Neben der idealen Anbindung an Bus, Straßenbahn und Regionalzüge überzeugt die Lage auch durch eine gute Erreichbarkeit mit dem Auto.

Diese Lage bietet die perfekte Kombination aus urbaner Zentralität, optimaler Verkehrsanbindung und einem dynamischen Umfeld - beste Voraussetzungen für einen modernen Bürostandort in Rostock.

Weitere Informationen

Provisionshinweis 3,57 Bruttowarmmieten inkl. gesetzl. MwSt..
Der Makler-Vertrag mit unserem Unternehmen entsteht durch schriftliche Vereinbarung oder durch die Inanspruchnahme unserer Maklertätigkeit. Die Vertragsbasis bildet das Objekt-Exposé. Die Mieterprovision ist bei Vertragsabschluss verdient und fällig. Die Drenkhahn Immobilien GmbH erhält einen unmittelbaren Zahlungsanspruch gegenüber dem Mieter. Sonstiges Hinweise: Sollten Sie keine E-Mail von uns sichtbar erhalten, bitten wir Sie, im Spam- bzw. Junk-Mail Ordner Ihres E-Mail-Anbieters nachzusehen!

DSGVO:
Wir verweisen hiermit auf die Speicherung Ihrer Daten, sobald Sie uns eine Kontakt-Anfrage senden. Die Gegebenheiten des Datenschutzes können Sie unter folgendem Link nachlesen.

https://www.drenkhahn-immobilien.de/datenschutz/

Wir bitten um Verständnis, dass wir nur vollständige, schriftliche Anfragen (E-Mail, Fax, Brief) mit Namen, Anschrift und Telefonnummer beantworten können. Gerne stehen wir Ihnen auch zu einer persönlichen Beratung zur Verfügung.

Alle Angaben sind ohne Gewähr und beruhen ausschließlich auf Informationen des Auftraggebers bzw. Eigentümers. Zur textlichen und visuellen Aufbereitung wurden teilweise KI-gestützte Anwendungen eingesetzt. Wir übernehmen keine Gewähr für deren Vollständigkeit, Richtigkeit und Aktualität. Zahlenangaben sind, auch wenn nicht ausdrücklich vermerkt, als Circa- Angaben zu verstehen.

Wenn Sie sich für den Kauf einer Immobilie interessieren, sind wir als Immobilienmakler gesetzlich verpflichtet, Ihre Identität festzustellen - so schreibt es das Geldwäschegesetz (GWG) vor. Das bedeutet: Bei Kaufabsicht benötigen wir eine Kopie Ihres Personalausweises. Wenn Sie für eine Firma handeln, brauchen wir zusätzlich einen Handelsregisterauszug, aus dem der wirtschaftlich Berechtigte hervorgeht. Diese Unterlagen müssen wir sicher aufbewahren - und zwar für fünf Jahre. Vielen Dank für Ihr Verständnis! Stichworte Stellplatz vorhanden, Gesamtfläche: 250,67 m², Anzahl Balkone: 1, Bundesland: Mecklenburg-Vorpommern, modernisiert: 2018

Weitere Services

Lust auf eine Besichtigung?
Eine Frage zur Immobilie?
Mit einer persönlichen Nachricht hast du bessere Chancen auf eine Antwort.
Mit der Nutzung der oben angegebenen Telefonnummer oder durch Klicken auf „Kontaktieren“ akzeptierst Du die Allgemeinen Nutzungsbedingungen, denen Du jederzeit widersprechen kannst. Weitere Informationen zum Datenschutz

Über den Anbieter

Rosa-Luxemburg-Str. 9, 18055 Rostock
partner badge
Partnerschaft
Herr Steffen Göllnitz, Betriebswirt (VWA)Dein Kontakt
Online-ID: 255YI9PE44QI
Referenznummer: E-1001196
Drenkhahn Immobilien GmbH
Drenkhahn Immobilien GmbH
Bewertung: 4,4 von 5 Sternen
Mit einer persönlichen Nachricht hast du bessere Chancen auf eine Antwort.
Mit der Nutzung der oben angegebenen Telefonnummer oder durch Klicken auf „Kontaktieren“ akzeptierst Du die Allgemeinen Nutzungsbedingungen, denen Du jederzeit widersprechen kannst. Weitere Informationen zum Datenschutz
MediumRectangleTop
MediumRectangleBottom
MediumRectangleTop
Wie zufrieden bist du mit dieser Seite (nicht mit der Immobilie selbst)?