Version: 8.26.0Navigation überspringen
Sparkasse Hochrhein ImmobilienCenter
1.598 €
5 Zimmer  •  110 m² Bürofläche

Büro zur Miete • provisionsfrei
1.598 €
5 Zimmer  •  110 m² Bürofläche

Gewerbefläche in Waldshuter Innenstadtlage!

Diese Gewerbemietfläche befindet sich im 3. Obergeschoss in der Zweigstelle Waldshut der Sparkasse Hochrhein.
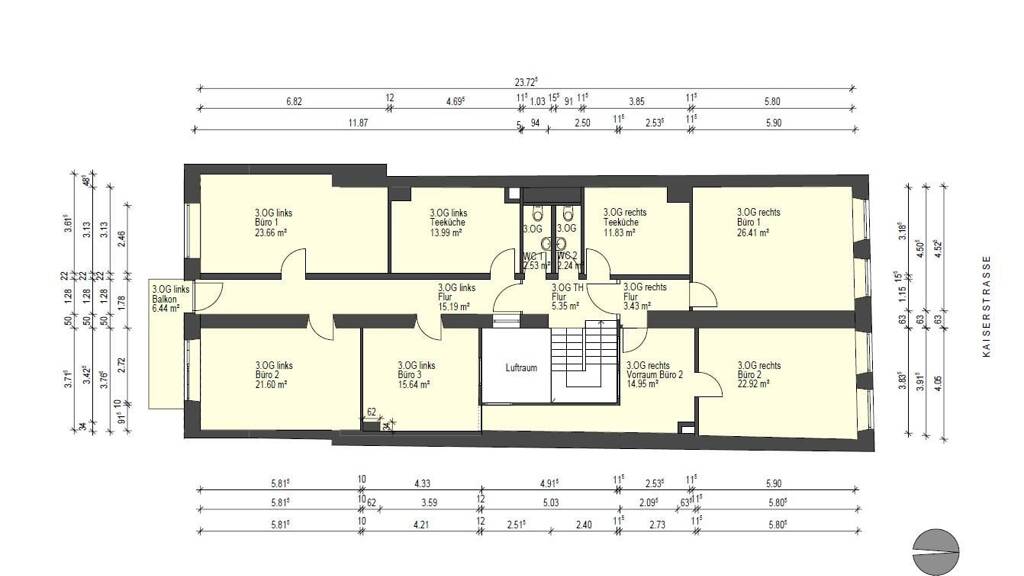
Die insgesamt 177,61qm² verteilen sich auf zwei Haupteingänge.
Durch den rechten Eingang gelangen Sie zu zwei großzügigen Büroräumen und einen Vorraum, der genügend Platz für Stauraum bietet.

Die drei auf dem Flur liegenden Türen führen zu jeweils einem Badezimmer und einer ehemaligen Teeküche.

Wenn Sie durch den linken Eingang gehen finden Sie einen langen Flur mit einem großen Balkon am Ende.
Ebenfalls befinden sich dort drei weitere Büroräume mitsamt ehemaliger Teeküche.

Die Räumlichkeiten befinden sich aktuell in einem renovierungsbedürftigem Zustand, die Renovierungsarbeiten werden nach jeweiliger Absprache mit den neuen Mietern ausgeführt. Der Einbau von Einbauküchen ist gegen Aufpreis möglich.

Die monatliche Nettokaltmiete beläuft sich auf 1.598,- € zuzüglich Nebenkosten in Höhe von 220,-€/mtl.

Bei näherem Interesse bitten wie Sie darum uns die beigefügte Selbstauskunft zukommen zu lassen.
Auf Anfrage erhalten Sie weitere Objektbilder und Informationen zugestellt.

Merkmale

  • Bezug: nach Absprache
  • 3. Geschoss
  • voll erschlossen
Individuelle Ausstattungsmerkmale:

- Teeküche (2x)

- 5 großzügige Büros (zwischen 16m² bis 26m²) mit Tageslicht
- 2 Teeküchen ohne EBK
- EBK gegen Aufpreis möglich
- Balkon
- 2 WC´s

Grundrisse

Verschaffe dir einen genauen Überblick über die Raumaufteilung.selection_property_house-icon

Bausubstanz und Energie

Baujahr Wärmeerzeuger: 2015

C
  • Baujahr1760
  • Zustand der ImmobilieMassivhaus
  • HeizungsartZentralheizung
  • EnergieträgerGas
MediumRectangleTop

Mietkosten

Warmmiete
1.818 €
Nettomiete
1.598 €
Nebenkosten
220 €
Heizkosten
in Warmmiete enthalten
Provision für Mieter
provisionsfrei
Kaution
3196 €

Lage

address-icon
WaldshutWaldshut-Tiengen (79761)
Der Anbieter hat die genaue Adresse nicht freigegeben
Die Kreis- und Doppelstadt Waldshut-Tiengen liegt am Fuße des Hochrheins mit einer herrlichen Landschaft, wobei ihre nördlichen Ortsteile bis in die südlichen Teile des Schwarzwaldes hineinragen. Sie ist Teil des Naturparks Südschwarzwald und bietet einen direkten Grenzübergang in die danebenliegende Schweiz. Die Stadt selbst bietet verschiedene Möglichkeiten der öffentlichen Verkehrsmittel an, ob Bus oder Bahn in die naheliegenden Orte, oder auch einen Bahnverkehr in die Schweiz. Die Doppelstadt bietet sowohl in Waldshut als auch Tiengen verschiedene Geschäfte der Bereiche Drogerien, Juweliere sowie eine große Anzahl von Lebensmittel-, Möbel-, Bekleidungs-, Landwirtschafts- und Baustoffen an. Durch die zentrale Lage des Krankenhauses finden sich auch in Waldshut eine Schönheitsklinik und verschiedene Ärzte verschiedener Bereiche wie z.B. der Allgemeinmedizin oder Kindermedizin. Für Freizeitaktivitäten bietet Waldshut-Tiengen 230 verschiedene Vereine, in den beiden Städten selbst, als auch im naheliegenden Umkreis. Für die Kinder sind 12 verschiedene Spielplätze in der Doppelstadt vorhanden, 10 in Waldshut und 2 davon in Tiengen. Waldshut-Tiengen hat insgesamt 17 Schulen, davon sind 4 Grundschulen, 6 weiterführende Schulen ((Werk-)Real, Gymnasium),
4 Sonderschulen sowie 3 kaufmännische/gewerbliche Schulen. Auch sind 16 Kindergärten vorhanden. Unteranderem werden 16 christliche Kirchen angeboten.

Weitere Informationen

Stichworte Gesamtfläche: 177,61 m², Balkon-Terrassen-Fläche: 6,44 m², Bundesland: Baden-Württemberg

Weitere Services

Lust auf eine Besichtigung?
Eine Frage zur Immobilie?
Mit einer persönlichen Nachricht hast du bessere Chancen auf eine Antwort.
Mit der Nutzung der oben angegebenen Telefonnummer oder durch Klicken auf „Kontaktieren“ akzeptierst Du die Allgemeinen Nutzungsbedingungen, denen Du jederzeit widersprechen kannst. Weitere Informationen zum Datenschutz

Über den Anbieter

Bismarckstr. 7, 79761 Waldshut-Tiengen
partner badge
10 Jahre Partnerschaft
Herr Jörg SchneiderDein Kontakt
Online-ID: 233BPMIHET6W
Referenznummer: JK-3105
MediumRectangleTop
Wie zufrieden bist du mit dieser Seite (nicht mit der Immobilie selbst)?