Version: 8.24.0Navigation überspringen
Garant Immobilien München GmbH
119.999 €
1 Zimmer  •  35 m²  •  1. Geschoss

Studio zum Kauf
119999 €
3.429 €/m²
1 Zimmer  •  35 m²  •  1. Geschoss

Renovierungsbedürftige 1 Zimmer-Wohnung mit Balkon in Landshut

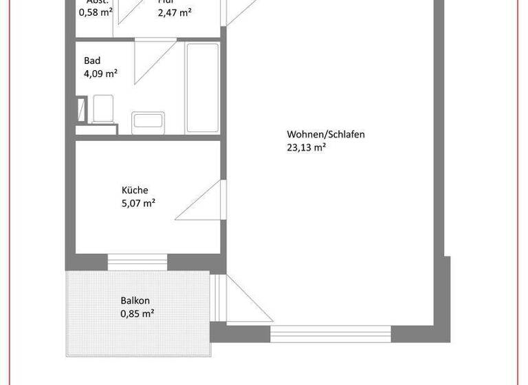
Bei dem angebotenen Objekt handelt es sich um eine 1 Zimmer-Wohnung im 1. Obergeschoss eines Mehrfamilienhauses aus dem Jahr 1965. Die Wohnfläche beträgt ca. 35 m² und wird durch eine zusätzliche Nutzfläche von ca. 5 m² ergänzt. Der Grundriss ist einfach und funktional gehalten. Ein Balkon ist vorhanden.

Die Wohnung ist aktuell vermietet. Das bestehende Mietverhältnis besteht seit längerer Zeit. Die monatliche Nettomiete beträgt derzeit 257,-- Euro. Eine Mieterhöhung ist aktuell eingeleitet und wird das Mietniveau entsprechend anpassen. Die Mietzahlungen erfolgen zuverlässig über eine öffentliche Stelle.

Der bauliche Zustand der Einheit ist als renovierungsbedürftig einzustufen. Entsprechende Maßnahmen sind perspektivisch erforderlich.

Das Wohn- und Schlafzimmer bildet den zentralen Raum der Wohnung. Küche, Bad und Flur sind separat angeordnet und funktional erschlossen. Der Balkon erweitert den Wohnraum und erhöht die Alltagstauglichkeit der Einheit, ohne den grundsätzlichen Charakter der Wohnung zu verändern.

Das Gebäude entspricht in Bauweise und technischer Ausstattung dem Standard der 1960er-Jahre. Die Beheizung erfolgt über eine Ölheizung. Ein Aufzug ist nicht vorhanden, was aufgrund der Lage im 1. Obergeschoss als vertretbar einzustufen ist.

Es handelt sich um eine dauerhaft vermietete Bestandswohnung mit Renovierungsbedarf und begrenztem Handlungsspielraum, geeignet für Käufer mit langfristiger Perspektive.



Weitere Angebote unter www.GARANT-IMMO.de

Merkmale

  • Bezug: nach Vereinbarung
  • vermietet
  • 1. Geschoss
  • Balkon
  • Bodenbelag: Fliesen, Parkett
* Balkon
* Wohnfläche ca. 35 qm
* Nutzfläche ca. 5 qm
* Etagenwohnung im 1. Obergeschoss
* Kein Fahrstuhl
* Baujahr 1965
* Zustand: renovierungsbedürftig
* Heizungsart: Öl


Grundrisse

Grundrisse
1 / 1

Realisiere Dein Projekt

Bausubstanz und Energie

Energieausweis

E
  • Baujahr1965
  • Zustand der Immobilierenovierungsbedürftig / sanierungsbedürftig
  • HeizungsartZentralheizung
  • EnergieträgerÖl
MediumRectangleTop

Preisdetails

Kaufpreis
119999 €
3.428,54 €/m²
Hausgeld
221 €
Provision für Käufer
3,57 % (inkl. MwSt.) inkl. MwSt.
Die Maklercourtage für den Käufer beträgt 3 % aus dem Kaufpreis zuzüglich der gesetzlichen MwSt., somit gesamt 3,57 %.
Geschätzte Gesamtkosten
130.199 €1
Kaufpreis
119.999 €
Notarkosten (1,5%)
1.800 €
Grunderwerbsteuer (3,5%)
4.200 €
Provision für Käufer (3%)
3.600 €
Grundbucheintrag (0,5%)
600 €
1Der angezeigte Wert ist eine automatisch berechnete Schätzung von immowelt.
2Bei den Angaben handelt es sich um ortsübliche Werte. Individuelle Kosten können abweichen.

Lage

address-icon
IndustriegebietLandshut (84030)
Der Anbieter hat die genaue Adresse nicht freigegeben
* Gewachsene Wohnlage mit überwiegender
Mehrfamilienhausbebauung
* Ruhiges Wohnumfeld ohne nennenswerten
Durchgangsverkehr
* Öffentliche Verkehrsmittel in fußläufiger
bzw. kurzer Entfernung
* Regionale Verkehrsanbindung über übergeordnete
Straßen gegeben
* Geeignet für Eigennutzer mit überschaubarem
Platzbedarf sowie Kapitalanleger

Weitere Informationen

Sonstiges Energieverbrauchsausweis
Energiekennwert: 141,00 kWh/(qm*a)
Energieeffizienz: Klasse E (<160)
Heizung: Zentralheizung mit Öl
Baujahr laut Energieausweis: 1965

Ausschluss von Beratungsleistungen:

Hiermit wird festgehalten, dass die Rolle des Immobilienmaklers der GARANT im Rahmen des Verkaufsprozesses dieser Immobilie ausschließlich auf die Vermittlung zwischen dem Eigentümer/Verkäufer und potenziellen Käufern beschränkt ist. Zu keinem Zeitpunkt wurden durch den Immobilienmakler steuerliche oder rechtliche Beratungen bezüglich des Verkaufs der Immobilie oder damit verbundener Vorgänge angeboten, durchgeführt oder impliziert. Potenzielle Käufer werden aufgefordert, alle relevanten Aspekte der Immobilie durch eigene Prüfungen oder durch Beauftragung geeigneter Fachberater zu verifizieren, um sicherzustellen, dass alle Informationen ihren Anforderungen und Erwartungen entsprechen. Stichworte Anzahl der Badezimmer: 1, Anzahl Balkone: 1

Weitere Services

Lust auf eine Besichtigung?
Eine Frage zur Immobilie?
Nachricht hinzufügen
Mit der Nutzung der oben angegebenen Telefonnummer oder durch Klicken auf „Kontaktieren“ akzeptierst Du die Allgemeinen Nutzungsbedingungen, denen Du jederzeit widersprechen kannst. Weitere Informationen zum Datenschutz

Über den Anbieter

Kistlerhofstraße 170, 81379 München
partner badge
Partnerschaft
Büro LandshutDein Kontakt
Online-ID: 2nyxg5d
Referenznummer: 872.029
Garant Immobilien München GmbH
Garant Immobilien München GmbH
Nachricht hinzufügen
Mit der Nutzung der oben angegebenen Telefonnummer oder durch Klicken auf „Kontaktieren“ akzeptierst Du die Allgemeinen Nutzungsbedingungen, denen Du jederzeit widersprechen kannst. Weitere Informationen zum Datenschutz
MediumRectangleTop
MediumRectangleBottom
MediumRectangleTop
Wie zufrieden bist du mit dieser Seite (nicht mit der Immobilie selbst)?