Version: 8.24.0Navigation überspringen
White&Black München- Vahid Davidli – Handelsvertretung für die Schwabenhaus GmbH
746.356 €
4 Zimmer  •  140 m²  •  504 m² Grundstück

Einfamilienhaus zum Kauf • provisionsfrei
746356 €
5.331 €/m²
4 Zimmer  •  140 m²  •  504 m² Grundstück

Your Home Needs a Place - Kein Grundstück? Kein Problem!

FEELS LIKE HOME. LOOKS LIKE YOU.

Ein Zuhause, das deine Handschrift trägt - individuell, durchdacht und bezahlbar.
Dein Traum vom Eigenheim ist näher, als du denkst.
Warum warten?

START YOUR HOME JOURNEY TODAY.

Merkmale

  • 504 m² Grundstück
  • Gäste-WC
THINK BLACK - All in.

- Schlüsselfertig & sofort bezugsbereit - ohne zusätzlichen Aufwand
- Kompletter Innenausbau - keine Handwerkersuche, kein Planungsstress
- Durchdachte Raumaufteilung - moderne Wohnkonzepte für jede Lebensphase
- Innovative Haustechnik - zukunftssicheres Wohnen mit höchster Effizienz
- Maximaler Komfort - alles fertig, alles drin

Für alle, die einfach einziehen und losleben wollen!

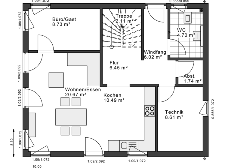
Grundrisse

Grundrisse
1 / 2

Realisiere Dein Projekt

Bausubstanz und Energie

Der Anbieter hat keine Informationen zum Energieverbrauch bereit gestellt.
  • Zustand der ImmobilieNeubau, Projektiert
  • HeizungsartFußbodenheizung

Preisdetails

Kaufpreis
746356 €
5.331,11 €/m²
Provision für Käufer
provisionsfrei
Geschätzte Gesamtkosten
787.405 €1
Kaufpreis
746.356 €
Notarkosten (1,5%)
11.195 €
Grunderwerbsteuer (3,5%)
26.122 €
Grundbucheintrag (0,5%)
3.732 €
1Der angezeigte Wert ist eine automatisch berechnete Schätzung von immowelt.
2Bei den Angaben handelt es sich um ortsübliche Werte. Individuelle Kosten können abweichen.

Lage

address-icon
Grabenstätt (83355)
Der Anbieter hat die genaue Adresse nicht freigegeben
Wer die perfekte Mischung aus bayerischer Gemütlichkeit und moderner Lebensqualität sucht, wird in Grabenstätt fündig. Die Gemeinde liegt eingebettet in die sanften Wiesen des Chiemgaus und punktet mit einem unschlagbaren Freizeitwert: Ob eine Runde Schwimmen im Tüttensee, Radeln am Chiemsee-Ufer oder die schnelle Anbindung über die A8 Richtung München und Salzburg - hier ist alles möglich. Mit Schulen, Kitas und Geschäften direkt vor Ort ist der Alltag absolut entspannt. Ein Zuhause, wo andere Urlaub machen.

Weitere Informationen

Sonstiges Das Haus ist projektiert inkl. Grundstück. Das Grundstück wird in Kommission angeboten bzw. direkt von Dritten verkauft. Daher kann der genannte Preis aufgrund aktueller Marktsituationen schwanken.
Die Bauabwicklung kann kurzfristig nach Grundstückserwerb begonnen werden. Bilder zeigen möglicherweise Sonderausstattungen, die auf Wunsch gegen Aufspreis zusätzlich angeboten werden können.

Erhalte in deinem persönlichen Beratungsgespräch kostenlos alle wichtigen Informationen zu diesem Projekt, insbesondere: Lage und Bebauungsmöglichkeiten des Baugrundstücks, Baukosten-Kalkulation, Finanzierungs- u. Förderungsmöglichkeiten sowie detaillierte Architektur- uund Grundrissplanung.

Wir freuen uns darauf, dich beraten zu dürfen! Stichworte Anzahl der Schlafzimmer: 3, Anzahl der Badezimmer: 1, Anzahl der separaten WCs: 1

Weitere Services

Lust auf eine Besichtigung?
Eine Frage zur Immobilie?
Nachricht hinzufügen
Mit der Nutzung der oben angegebenen Telefonnummer oder durch Klicken auf „Kontaktieren“ akzeptierst Du die Allgemeinen Nutzungsbedingungen, denen Du jederzeit widersprechen kannst. Weitere Informationen zum Datenschutz

Über den Anbieter

Senator-Gerauer-Str. 25, 85586 München
partner badge
Partnerschaft
Vahid DavidliDein Kontakt
Online-ID: 2nman5h
Referenznummer: WB-29234
White&Black München- Vahid Davidli – Handelsvertretung für die Schwabenhaus GmbH
White&Black München- Vahid Davidli – Handelsvertretung für die Schwabenhaus GmbH
Nachricht hinzufügen
Mit der Nutzung der oben angegebenen Telefonnummer oder durch Klicken auf „Kontaktieren“ akzeptierst Du die Allgemeinen Nutzungsbedingungen, denen Du jederzeit widersprechen kannst. Weitere Informationen zum Datenschutz
Wie zufrieden bist du mit dieser Seite (nicht mit der Immobilie selbst)?