Weitere Informationen
Sonstiges
Der Text wurde ins Deutsche mithilfe einer automatischen Software übersetzt und es ist möglich, dass er einige Ungenauigkeiten enthält. Für eine korrekte Beschreibung und aktuelle Informationen zur Immobilie wenden Sie sich bitte an unseren Makler!
Wir bieten Ihnen exklusiv eine Einzimmerwohnung in einem modernen Wohngebäude im Stadtteil Madika in Burgas zum Kauf an. Madika zählt zu den neuesten und attraktivsten Investitionsvierteln der Stadt und zeichnet sich durch eine gut ausgebaute Infrastruktur sowie eine hervorragende Anbindung an die Hauptstraßen aus. Von hier aus erreichen Sie alles Notwendige: Geschäfte, Schulen, Universität, Fitnessstudio, U-Bahn, Bus und andere Einrichtungen.
Im Aufbau. Voraussichtlicher Abschluss: Act 16 - Dezember 2027.
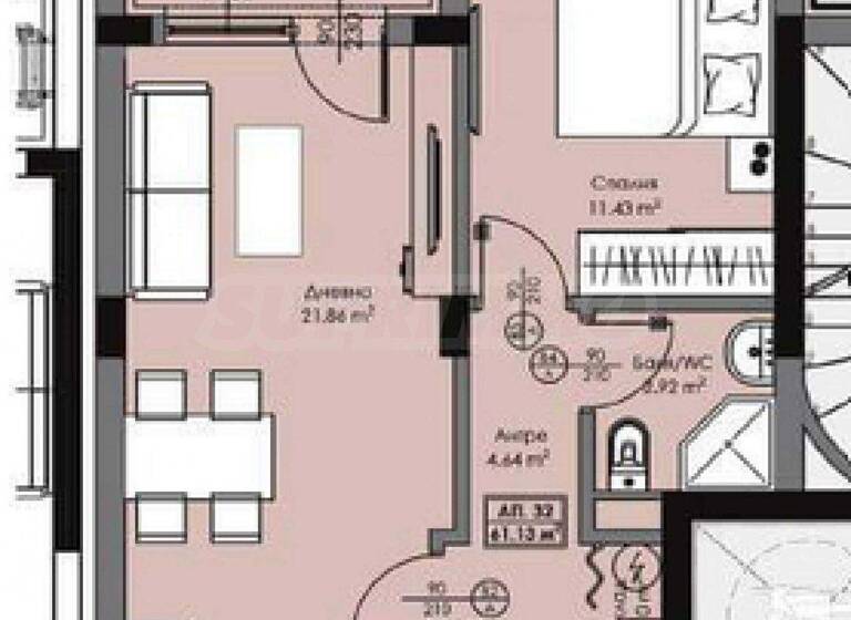
Die Wohnung hat eine Gesamtfläche von 61,17 m² und befindet sich im 6. Stock mit Blick nach Westen auf die grüne Innenanlage des Komplexes.
Ein Parkplatz ist im Preis inbegriffen.
Es wird im Ausführungsgrad gemäß dem bulgarischen Zivilgesetzbuch ausgestellt:
? dreischichtige Rehau-Tischlerarbeiten;
? Hormann-Eingangstüren;
? Wienerberger Keramikziegel;
? Hohe Energieeffizienz und Schalldämmung.
Der Komplex ist gemischt genutzt; im Erdgeschoss sind Gewerbeflächen und Büros geplant.
Ausstattung vor Ort:
? Wellnessbereich und Fitnessbereich;
? Einkaufsstraße und Restaurants;
? Bibliothek und Amphitheater;
? Fußballfeld und Tennisplätze;
? Kinderclub und Hundeauslaufflächen;
? Tierklinik und medizinisches Zentrum;
? Schönheitszentrum, chemische Reinigung, Apotheke;
? Skybar, Hypermarkt, Bankfiliale;
? Tiefgaragen und Büroflächen.
Wir freuen uns auf Ihre Anfrage.
Wenn Sie eine Immobilie besichtigen möchten, die Sie interessiert, oder eines unserer Büros besuchen möchten, kontaktieren Sie uns bitte. Um einen Termin für eine Besichtigung oder ein Treffen zu vereinbaren, rufen Sie uns bitte unter der in der Anzeige angegebenen Telefonnummer an oder senden Sie uns eine Anfrage per E-Mail. Unser Berater unterstützt Sie gerne mit allen notwendigen Informationen und findet einen passenden Termin für Sie.
Sind Sie auf der Suche nach der passenden Immobilie für Sie?
Zögern Sie nicht, uns zu kontaktieren und uns Ihre Wünsche und Vorlieben mitzuteilen. Unser Team führt eine gründliche Marktanalyse durch, um Ihnen Immobilien anzubieten, die genau Ihren Kriterien entsprechen. Wir verfügen über ein außergewöhnliches Portfolio an hochwertigen und exklusiven Häusern, die nur unseren Kunden zur Verfügung stehen. Um als Erster Informationen darüber zu erhalten, kontaktieren Sie uns.
Zusätzliche Dienstleistungen
Als geschätzter Kunde unseres Unternehmens genießen Sie den Vorteil, die Dienste unseres erfahrenen Rechtsteams kostenfrei in Anspruch zu nehmen. Darüber hinaus bieten wir Ihnen umfassende Lösungen, darunter Gebäudeversicherungen, kostenlose Finanzberatung sowie attraktive Finanzierungskonditionen. Unser Leistungsspektrum umfasst auch die Bereiche Wiederverkauf, Vermietung und Immobilienverwaltung. Hochwertige Renovierungen und Einrichtungsarbeiten vermitteln wir Ihnen über spezialisierte Unternehmen unserer Unternehmensgruppe, mit denen wir seit Langem zusammenarbeiten.
Stichworte
Lage im Bau: rechts vorne