Version: 8.24.0Navigation überspringen
45.000 €
1 Zimmer  •  36 m²  •  EG
Immowelt logo

Studio zum Kauf
45000 €
1.250 €/m²
1 Zimmer  •  36 m²  •  EG

1-Zimmer-Erdgeschosswohnung in Schöppenstedt! Meine Wohnung = Mein Makler!

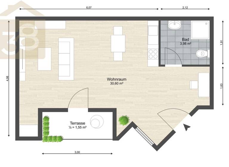
Diese vermietete 1-Zimmerwohnung in Schöppenstedt bietet Ihnen auf 36 m² Wohnfläche eine hervorragende Kapitalanlage.

Der offene Wohnbereich vereint Wohnen und Schlafen mit einer praktischen Küchenzeile, während das Badezimmer mit Dusche für Komfort sorgt. Eine einladende Sonnenterrasse lädt zum Entspannen ein und wird zum persönlichen Rückzugsort. Zusätzlichen Stauraum bieten ein kleiner Abstellraum sowie ein eigenes Kellerabteil.

Die Wohnung befindet sich in einer kleinen und gepflegten Wohnanlage mit insgesamt 57 Einheiten, die sich über zwei Geschosse erstreckt. Mit einem äußerst günstigen Hausgeld von lediglich 136 € pro Monat sind die laufenden Kosten gut kalkulierbar. Die Wohnung ist derzeit vermietet und erzielt eine Nettokaltmiete von 253 €, wobei der Mietvertrag bereits im Jahr 2022 geschlossen wurde.

Diese Erdgeschosswohnung stellt eine ideale Gelegenheit für Kapitalanleger dar, die eine solide Investition suchen. Überzeugen Sie sich selbst von diesem attraktiven Angebot und vereinbaren Sie noch heute einen Besichtigungstermin. Wir freuen uns auf Ihre Anfrage!

Merkmale

  • Bezug: sofort
  • Erdgeschoss
  • Einbauküche
  • Kelleranteil
  • Balkon
  • Barrierefrei
  • Bad mit Dusche
+ 36 m² Wohnfläche

+ Duschbad

+ Terrasse

+ Einbauküche

Grundrisse

Grundrisse
1 / 1

Realisiere Dein Projekt

Bausubstanz und Energie

Energieausweis

E
  • Baujahr1994
  • Zustand der ImmobilieGepflegt
  • EnergieträgerGas
Immowelt logo

Preisdetails

Kaufpreis
45000 €
1.250 €/m²
Provision für Käufer
2,58 % inklusive Umsatzsteuer.
Jeweils 2,58 % inklusive Umsatzsteuer.
Die Provision ist mit der Beurkundung verdient und vom Käufer & Verkäufer zu zahlen.
Geschätzte Gesamtkosten
49.311 €1
Kaufpreis
45.000 €
Notarkosten (1,5%)
675 €
Grunderwerbsteuer (5%)
2.250 €
Provision für Käufer (2,58%)
1.161 €
Grundbucheintrag (0,5%)
225 €
1Der angezeigte Wert ist eine automatisch berechnete Schätzung von immowelt.
2Bei den Angaben handelt es sich um ortsübliche Werte. Individuelle Kosten können abweichen.

Lage

address-icon
Schöppenstedt (38170)
Der Anbieter hat die genaue Adresse nicht freigegeben
Diese attraktive Immobilie befindet sich in der charmanten Gemeinde Schöppenstedt, die für ihre ruhige und naturnahe Lage bekannt ist. Schöppenstedt liegt im Landkreis Wolfenbüttel und bietet eine hervorragende Lebensqualität für Familien sowie für junge Paare und Senioren.

Die Umgebung zeichnet sich durch eine malerische Landschaft aus, die zum Spazieren, Radfahren und Erholen einlädt. Die Gemeinde bietet eine gute Anbindung an die Städte Wolfenbüttel und Braunschweig, die in nur wenigen Autominuten erreichbar sind. Dadurch profitieren Sie von einer Vielzahl an Einkaufsmöglichkeiten, Freizeitangeboten sowie kulturellen Einrichtungen.

In Schöppenstedt selbst finden Sie alle notwendigen Einkaufsmöglichkeiten für den täglichen Bedarf, darunter Supermärkte, Bäckereien und lokale Geschäfte. Auch die medizinische Versorgung ist durch ansässige Ärzte und Apotheken gewährleistet.

Für Familien mit Kindern sind die nahegelegenen Schulen und Kindergärten ein weiterer Pluspunkt. Die freundliche Nachbarschaft und das gemeindliche Leben fördern ein harmonisches Miteinander.

Die gute Verkehrsanbindung durch die Nähe zur B79 und zur Autobahn A395 ermöglicht eine schnelle Erreichbarkeit der umliegenden Städte und Regionen, wodurch die Immobilie sowohl für Pendler als auch für Natur- und Stadtliebhaber interessant ist.

Insgesamt bietet diese Lage in Schöppenstedt eine perfekte Kombination aus ländlichem Charme und urbaner Erreichbarkeit - ideal für Ihr neues Zuhause!

Wir freuen uns darauf, Ihnen diese besondere Immobilie näher vorstellen zu dürfen!

Weitere Informationen

Sonstiges Gerne laden wir Sie zu einer Besichtigung ein, um Ihnen vielleicht Ihr neues Zuhause bekannt zu machen.
Bei Interesse und zur Vereinbarung von Besichtigungsterminen setzen Sie sich bitte mit uns über das Kontaktformular in Verbindung. Bitte geben Sie hierbei Ihre vollständige Kontaktadresse an. Unvollständige Anfragen werden nicht bearbeitet.

Unser Angebot ist nur für den Empfänger bestimmt. Da die in diesem Exposé enthaltenen Angaben auf Informationen des Eigentümers beruhen, können wir für die Richtigkeit trotz aller Sorgfalt keine Gewähr übernehmen. Hierfür bitten wir höflich um Ihr Verständnis.
Die Datenverarbeitung erfolgt auf Grundlage von Art. 6 Abs. 1 lit. b) DSGVO. Sie müssen dabei diejenigen personenbezogenen Daten angeben, die für die Bearbeitung Ihres jeweiligen Anliegens bzw. die Vorbereitung oder Durchführung der Geschäftsbeziehung mit Ihnen erforderlich sind. Ohne diese Daten werden wir nicht in der Lage sein, Ihre Anfrage zu bearbeiten bzw. den Vertrag mit Ihnen zu erfüllen. Ich stimme daher zu, das OM Immobilienmanagement meine personenbezogenen Daten im Einzelfall z.B. bei Kauf- oder Mietvertragsabschlüssen abspeichert und an Dritte (Eigentümer/Notar/Behörden) übermitteln darf. Stichworte Anzahl Balkone: 1, Bundesland: Niedersachsen, 1 Etagen, modernisiert: 2021

Weitere Services

Lust auf eine Besichtigung?
Eine Frage zur Immobilie?
Nachricht hinzufügen
Mit der Nutzung der oben angegebenen Telefonnummer oder durch Klicken auf „Kontaktieren“ akzeptierst Du die Allgemeinen Nutzungsbedingungen, denen Du jederzeit widersprechen kannst. Weitere Informationen zum Datenschutz

Über den Anbieter

Lange Straße 52, 38448 Wolfsburg
Herr MartinDein Kontakt
Online-ID: 2kl6r5n
Referenznummer: 2025202
Maklerhaus 38 GmbH
Maklerhaus 38 GmbH
Nachricht hinzufügen
Mit der Nutzung der oben angegebenen Telefonnummer oder durch Klicken auf „Kontaktieren“ akzeptierst Du die Allgemeinen Nutzungsbedingungen, denen Du jederzeit widersprechen kannst. Weitere Informationen zum Datenschutz
Wie zufrieden bist du mit dieser Seite (nicht mit der Immobilie selbst)?