

Wohnung zum Kauf298500 €4.975 €/m²2 Zimmer • 60 m² • 1. Geschoss
298500 €
4.975 €/m²
2 Zimmer • 60 m² • 1. Geschoss
Bezugsfrei 2-Zimmer-Gründerzeitaltbau in ruhige Wohnlage Schöneberg
Merkmale
- Bezug: sofort
- 1. Geschoss
- Badezimmer: Badewanne, Bad mit Dusche, Bad mit Fenster
- Bodenbelag: Holzdielen
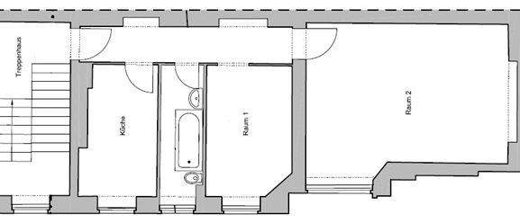
Grundrisse
Grundrisse
1 / 1
Realisiere Dein Projekt
Bausubstanz und Energie
Energieausweis
E
- Baujahr1900
- Zustand der Immobilierenovierungsbedürftig / sanierungsbedürftig
- HeizungsartZentralheizung
- EnergieträgerÖl
Preisdetails
Kaufpreis
298500 €
4.975 €/m²
Provision für Käufer
3,57
zzgl. 3,57 % Provision
zzgl. 3,57 % Provision
Geschätzte Gesamtkosten
333.037 €1
Kaufpreis
298.500 €
Kaufnebenkosten
34.537 €
2Notarkosten (1,5%)
4.478 €
Grunderwerbsteuer (6%)
17.910 €
Provision für Käufer (3,57%)
10.656 €
Grundbucheintrag (0,5%)
1.493 €
1Der angezeigte Wert ist eine automatisch berechnete Schätzung von immowelt.
2Bei den Angaben handelt es sich um ortsübliche Werte. Individuelle Kosten können abweichen.
Lage

Schöneberg, Berlin (10825)
Der Anbieter hat die genaue Adresse nicht freigegeben
Weitere Informationen
Weitere Services
Lust auf eine Besichtigung?
Eine Frage zur Immobilie?
Über den Anbieter
Rahn & Company Real Estate UGMaklerbüro
Olivaer Platz 17, 10707 Charlottenburg-Wilmersdorf
Partnerschaft
Robert RahnDein Kontakt
Online-ID: 2muju5k
Referenznummer: K14we13

Rahn & Company Real Estate UG
Wie zufrieden bist du mit dieser Seite (nicht mit der Immobilie selbst)?

