140 m² Gewerbeeinheit in bester Lage von Mettlach - direkt an der Saar - vielfältig nutzbar
Herzlich willkommen im schönen Mettlach
Wir freuen uns, Ihnen heute eine interessante Gewerbeeinheit in einem außergewöhnlichen Bauprojekt anbieten zu dürfen.
Das ehemalige Hotel Saarpark, direkt an den Ufern der Saar hat sich in ein modernes Wohn- und Geschäftshaus mit 3 Gewerbeeinheiten und 38 Eigentumswohnungen verwandelt - "Saarblick Feeling" ist entstanden.
Das Objekt ist weitestgehend fertiggestellt - der Innenausbau der angebotenen Gewerbeeinheit kann nach den Vorgaben des Erwerbers erfolgen.
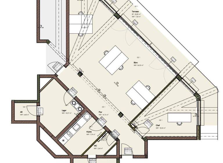
Das Objekt verfügt über ca. 140 m² Nutzfläche und ist wie folgt aufgeteilt:
Der Zugang erfolgt ebenerdig über den Außenbereich oder (dank eines Personenaufzuges) barrierefrei durch die Tiefgarage. Alternativ stehen Ihnen auch Stellplätze im Außenbereich zur Verfügung.
Weitere Gewerbeeinheiten mit Größen von ca. 41 und ca. 45 m² Nutzfläche stehen ebenfalls zum Verkauf.
Haben wir Sie neugierig gemacht? Gerne präsentieren wir Ihnen dieses interessante Objekt im Rahmen eines Besichtigungstermins. Unsere Immobilienberater freuen sich auf Ihre Anfrage.
Ihre LBS Immobilien GmbH
Merkmale
Personenaufzug
Keller
Bodenbelag: Laminat
Garten
Kabelanschluss
Gewerbeeinheit im Erdgeschoss eines Wohn- und Geschäftshauses in Mettlach an der Saar, direkt an der Bundesstraße 51.
- optional: KFZ-Stellplätze im Außenbereich oder in der Tiefgarage
Der Verkauf erfolgt als veredelter Rohbau - den Innenausbau stellen Sie nach Ihren Wünschen fertig.
Weitere Gewerbeeinheiten mit Größen von ca. 41 und ca. 45 m² Nutzfläche stehen ebenfalls zum Verkauf.
Grundrisse
Grundrisse
1 / 1
Bausubstanz und Energie
Energieausweis
B
Baujahr2023
Zustand der ImmobilieMassivhaus, renoviert / saniert
HeizungsartZentralheizung: Fußbodenheizung
EnergieträgerPellets
Preisdetails
Kaufpreis
375000 €375.000 €
Provision für Käufer
provisionsfrei; prov.frei
Geschätzte Gesamtkosten
375.000 €1
Kaufpreis
375.000 €
1Der angezeigte Wert ist eine automatisch berechnete Schätzung von immowelt.
Lage
Mettlach (66693)
Der Anbieter hat die genaue Adresse nicht freigegeben
Die Gemeinde Mettlach erstreckt sich vom Saargau bis zur Grenze nach Rheinland-Pfalz. Der namensgebende Ort Mettlach befindet sich am Ausgang der Saarschleife zu beiden Seiten der Saar.
Mettlach verfügt über alle Einrichtungen des täglichen Bedarfs: Bäcker, Metzger, Ärzte, Apotheken, Discounter und Restaurants.
Touristisch ist Mettlach interessant aufgrund seiner Lage direkt an der Saar mit vielen Möglichkeiten zur Naherholung (Wandern, Radfahren...) und der vielfältigen Einkaufsmöglichkeiten der ortsansässigen Gewerbe, z.B. dem V&B-Outlet, Trigema, Land's End, usw.
Kindertagesstätte, Kindergarten und die Grundschule direkt im Ort sorgen für die Betreuung des Nachwuchses. Weiterführende Schulen stehen in den Nachbarorten zur Verfügung: Die Gemeinschaftsschule im Nachbarort Orscholz und das deutsch-luxemburgische Schengen-Lyzeum in Perl. Im nur wenige Kilometer entfernten Merzig finden Sie berufsbildende Schulen und 2 Gymnasien.
Verkehrstechnisch ist Mettlach über die B51 gut vernetzt in Richtung Merzig mit Anschluss an die Autobahn A8 (Luxemburg - Saarbrücken), sowie in die Region Trier.
Bis zur luxemburgischen Grenze nach Schengen oder Remich sind es jeweils knapp 20 Autominuten.