Das Bauhaus Cedo begeistert mit seiner großzügigen Moderne und klaren Linien!
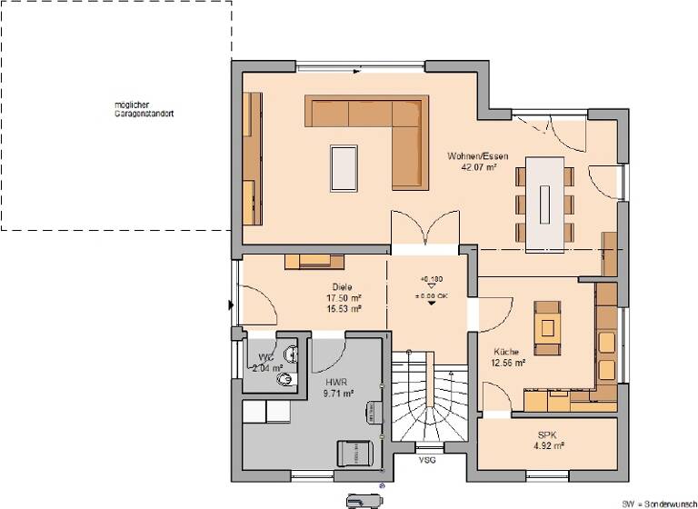
Auf drei Etagen erwarten Sie 211 m² Wohnfläche, die perfekt für die moderne Familie geeignet sind. Das Erdgeschoss besticht durch den Traum eines Wohnbereiches: auf über 50 m² verteilen sich gekonnt Wohn-, Ess- und Küchenbereich. Jeder Bereichs steht für sich in einer perfekten Ecke des Hauses und trotzdem gehören Sie unumgänglich zusammen. Die geräumige Küche wird durch eine Speisekammer komplettiert. Von der Diele aus erreichen Sie ebenfalls Hauswirtschaftsraum, Gäste-WC und die Treppe, die in die oberen Geschosse führt.
Das Obergeschoss steht ganz im Zeichen der Kinder, denn hier befinden sich zwei Kinderzimmer, ein Home-Office/Gästezimmer und ein geräumiges Badezimmer. Die Kinderzimmer begeistern mit mehr als 17 m² Wohnfläche und somit mit genug Platz zum Spielen, Toben und Lernen.
Im Dachgeschoss befindet sich die Ruheoase der Eltern, als eigenständiger Elternbereich. Dieser besteht aus einem Schlafzimmer, der auf der einen Seite in eine Ankleide führt und auf der anderen Seite einen Fitnessraum/Hobbyraum bietet. Weiter führt die Etage in ein eigenes Badezimmer. Komplettiert wird die Etage mit einer eigenen Dachterrasse, die zum wohlfühlen einlädt.
Dieses Haus wird nach Ihren individuellen Wünschen geplant und ausgestattet!
+ Schlüsselfertiges Massivhaus im Sinne der Ausstattungsbeschreibung "Easy" + Inklusive Bodenplatte
Beste Markenausstattung in jedem Kern-Haus:
+ Hochwertiger Kunstharz-Außenputz für eine langlebige Fassade + Vollständige Badausstattung von Villeroy & Boch mit Badewanne und flacher Duschwanne + Fliesen von Villeroy & Boch in Bad und WC + Haustür mit 3-fach-Sicherheitsverriegelung + Erstklassige Innentüren der Marke Herholz + Fenster mit 3-Scheiben-Wärmeschutzverglasung und Rollläden + Stahl-Holz-Treppe mit individueller Farbgestaltungsmöglichkeit + Elektroausstattung inklusive Klingelanlage + Rauchmelder für Ihre Sicherheit + Alle Leistungen aus einer Hand + Alle Planungs- und Architektenleistungen + Einsatz regionaler Handwerksbetriebe + Individuelle Anpassung auf Ihre Bedürfnisse + Auf Wunsch mit Keller erhältlich + Auf Wunsch mit weiteren Energietechniken erhältlich
Grundrisse
Grundrisse
1 / 3
Realisiere Dein Projekt
Bausubstanz und Energie
Energieausweis
Der Anbieter hat keine Daten zum Energieausweis hinterlegt.
Baujahr2026
Zustand der ImmobilieNeubau, Projektiert
HeizungsartZentralheizung: Fußbodenheizung
Preisdetails
Kaufpreis
900900 €900.900 €
4.310,53 €/m²
Provision für Käufer
provisionsfrei
Geschätzte Gesamtkosten
963.964 €1
Kaufpreis
900.900 €
Kaufnebenkosten
63.064 €
2
Notarkosten (1,5%)
13.514 €
Grunderwerbsteuer (5%)
45.045 €
Grundbucheintrag (0,5%)
4.505 €
1Der angezeigte Wert ist eine automatisch berechnete Schätzung von immowelt.
2Bei den Angaben handelt es sich um ortsübliche Werte. Individuelle Kosten können abweichen.
Lage
Möbisburg-Rhoda, Erfurt (99094)
Der Anbieter hat die genaue Adresse nicht freigegeben
In mitten blühender Natur und trotzdem nah an der Stadt gelegenes, ruhiges mit Weitblick ausgestattetes Traumgrundstück.
Weitere Informationen
Sonstiges
Kern-Haus
Kern-Haus baut individuelle und massive Architektenhäuser zu einem attraktiven Preis-Leistungs-Verhältnis - und das bereits mit einer Erfahrung seit 1980.
Maximale Sicherheit bei Kern-Haus: + 10 Jahre Gewährleistung auf die wesentlichen Bauleistungen + Bis zu 24 Monate Festpreisbindung + 50 Jahre Gewährleistung auf das DuoTherm-Mauerwerk + Verbindliche Bauzeit + Zahlung nach Baufortschritt
Preise und Auszeichnungen von Kern-Haus: - German Brand Award in den Jahren 2018 und 2021 - Hausbau Design Award: Sieger in den Jahren 2017, 2018, 2019, 2020, 2021, 2022 und 2023 - Deutscher Traumhauspreis: Sieger in den Jahren 2014, 2015, 2016 und 2018 und Silber 2017, 2020 und 2021 - Mittelstandspreis "Top 100" in den Jahren 2014, 2016, 2018, 2020 und 2022 - German Design Award im Jahr 2018
Weitere Informationen
Der gezeigte Preis versteht sich inklusive Grundstück und exklusive der Baunebenkosten.
Ihre Ansprechpartnerin Katrin Klein vom Kern-Haus-Team in Erfurt freut sich darauf Ihre Fragen zu beantworten. Jetzt anrufen: 0361 / 551450
Kern-Haus in Erfurt - https://www.kern-haus.de/erfurt/
Weitere Architektenhäuser - https://www.kern-haus.de/haeuser
Stichworte
Stellplatz vorhanden, Anzahl der Schlafzimmer: 3, Anzahl der separaten WCs: 1