Version: 8.24.0Navigation ĂĽberspringen
2.750 €
3 Zimmer  â€˘  292 m² BĂĽrofläche  â€˘  teilbar ab 128 m²
Immowelt logo

Bürofläche zur Miete
2.750 €
3 Zimmer  â€˘  292 m² BĂĽrofläche  â€˘  teilbar ab 128 m²

Viel Raum für Ihre Ideen - Moderne Loftflächen in Seevetal Maschen

Die Büro- und Loftflächen befinden sich im 1. Obergeschoss eines charmanten roten Backsteingebäudes in Seevetal-Maschen.

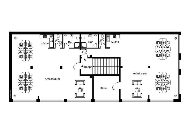
Auf einer Gesamtfläche von ca. 292 m² inklusive anteiliger Nebenflächen (Treppenhaus) erstrecken sich im 1. Obergeschoss zwei großzügige Büro-/Loftbereiche. Große Fensterfronten sorgen für eine ausgezeichnete natürliche Belichtung. Sämtliche Fenster sind mit einer UV-Schutzfolie ausgestattet, die zur verbesserten Wärmeregulierung beiträgt. Beide Loftflächen verfügen über eine umfassende EDV-Verkabelung, moderne Beleuchtung sowie umlaufende Kabelkanäle.

Die Raumaufteilung ist flexibel gestaltet und ermöglicht bei Bedarf eine Trennung in zwei eigenständige Einheiten mit ca. 128 m² und ca. 144 m², jeweils mit separaten Eingangsbereichen. In einem der Lofts ist zudem ein abgetrenntes kleines Büro integriert.

Hochwertige Designbodenbeläge in den Büroräumen sowie Fliesen in den Sanitärbereichen unterstreichen das moderne und stilvolle Ambiente.

Für zusätzlichen Komfort stehen zwei Einbauküchen sowie zwei WC-Anlagen mit jeweils integrierter Dusche zur Verfügung. Eine Gegensprechanlage mit Videokamera und Türöffner rundet das Angebot in puncto Sicherheit und Nutzerkomfort ab.

Merkmale

  • Bezug: sofort
  • Gäste-WC
  • Bodenbelag: Fliesen, Kunststoff

Grundrisse

Grundrisse
1 / 1

Realisiere Dein Projekt

Bausubstanz und Energie

Der Anbieter hat keine Informationen zu Energieverbrauch oder Zustand der Immobilie bereit gestellt.
Immowelt logo

Mietkosten

Warmmiete
3.115 €
Nettomiete
2.750 €
Nebenkosten
365 €
Heizkosten
in Warmmiete enthalten
Provision fĂĽr Mieter
3,57 fach inkl. MwSt. zzgl. MwSt.
Kaution
3 Nettokaltmieten

Lage

address-icon
Maschen, Seevetal (21220)
Der Anbieter hat die genaue Adresse nicht freigegeben
Das Objekt befindet sich zentral im Gewerbegebiet in Maschen. In der Nachbarschaft sind verschiedene BĂĽroobjekte, Schnellimbiss und andere Gewerbebetriebe vertreten. Ăśber die nur wenige Fahrminuten entfernte Autobahn A1 sowie die A7 und A39 sind sowohl das Hamburger Stadtgebiet als auch weitere Regionen in Norddeutschland schnell und bequem zu erreichen.

Das Umfeld zeichnet sich durch eine dynamische Infrastruktur und eine Vielzahl von ansässigen Unternehmen verschiedener Branchen aus. Einkaufsmöglichkeiten, gastronomische Einrichtungen und Dienstleistungen sind in unmittelbarer Umgebung verfügbar, was die Attraktivität für Mitarbeiter zusätzlich steigert.

Im Gewerbegebiet Maschen fahren die Buslinien 248 und 343 Richtung Maschen und Meckelfeld. In Meckelfeld befindet sich ein Regionalbahnhof. Von hier aus erreichen Sie mit dem Metronom in nur 20 min die Hamburger Innenstadt.

Einkaufsmöglichkeiten (ALDI & LIDL) sind fußläufig zu erreichen.

Die Nähe zu Hamburg und die hervorragende Verkehrsanbindung machen den Standort zu einer guten Wahl für Unternehmen, die eine moderne, gut erreichbare Büro- und Lagerlösung suchen.

Weitere Informationen

Sonstiges Auf die Miete, Nebenkosten und unsere Courtage wird die jeweils gĂĽltige gesetzliche Mehrwertsteuer berechnet.

Weitere Details zur Ausstattung erhalten Sie gern bei einer Besichtigung oder auf Anfrage.
Der Energieausweis ist in Bearbeitung und wird nachgereicht.

Bei einer Anmietung erhebt die Firma Reinholz & Hermsdorf Immobilien GmbH vom Mieter eine Courtage in Höhe von 3 Bruttowarmmieten zzgl. MwSt. Die Courtage ist verdient, fällig und zahlbar bei Abschluss des Mietvertrages. Stichworte Gesamtfläche: 292,00 m², modernisiert

Weitere Services

Lust auf eine Besichtigung?
Eine Frage zur Immobilie?
Nachricht hinzufĂĽgen
Mit der Nutzung der oben angegebenen Telefonnummer oder durch Klicken auf „Kontaktieren“ akzeptierst Du die Allgemeinen Nutzungsbedingungen, denen Du jederzeit widersprechen kannst. Weitere Informationen zum Datenschutz

Ăśber den Anbieter

Stahltwiete 21, 22761 Hamburg
partner badge
Partnerschaft
Frau Isabel Chales de BeaulieuDein Kontakt
Online-ID: 2n3el5f
Referenznummer: 550
Reinholz & Hermsdorf Immobilien GmbH
Reinholz & Hermsdorf Immobilien GmbH
Bewertung: 4,3 von 5 Sternen
Nachricht hinzufĂĽgen
Mit der Nutzung der oben angegebenen Telefonnummer oder durch Klicken auf „Kontaktieren“ akzeptierst Du die Allgemeinen Nutzungsbedingungen, denen Du jederzeit widersprechen kannst. Weitere Informationen zum Datenschutz
Wie zufrieden bist du mit dieser Seite (nicht mit der Immobilie selbst)?