Version: 8.25.1Navigation überspringen
1.750 €
4 Zimmer  •  109 m²
Immowelt logo

Reihenmittelhaus zur Miete - Erstbezug
1.750 €
4 Zimmer  •  109 m²

Modernes RMH zum Erstbezug in zentraler Lage von Quickborn!

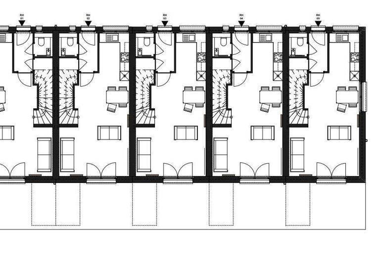
Im Zentrum von Quickborn entsteht dieses moderne Reihenmittelhaus, das durch komfortables Wohnen, durchdachte Grundrisse und hochwertige Ausstattung überzeugt. Der offene Wohn- und Essbereich im Erdgeschoss schafft eine einladende Atmosphäre und wird durch eine helle, moderne Einbauküche ergänzt - ideal für gemeinsames Wohnen und Genießen. Im ersten Obergeschoss befinden sich zwei Schlafzimmer sowie ein barrierearmes Duschbad. Das Staffelgeschoss bietet einen großzügigen Schlafbereich mit Badezimmer inklusive Badewanne. Eine großzügige Terrasse mit schönem Ausblick in die Umgebung vollenden den Gesamtauftritt. Die Häuser sind energetisch hocheffizient gebaut und ermöglichen eine emissionsarme Wohnweise. Für einen sparsamen Heizenergieverbrauch sorgt die umweltfreundliche Fernwärmeversorgung aus dem Netz der Stadtwerke Quickborn.

In der Miete für das Reihenmittelhaus sind zwei Außenstellplätze enthalten.

Die Vermietung erfolgt direkt vom Eigentümer. Es wird eine Mietbindung von zwei Jahren sowie eine Staffelmiete vereinbart.

Die Kaltmiete erhöht sich im 3., 6., 9., 12. und 15. Jahr um 3%.

Bei Vertragsabschluss wird eine Vertragsausfertigungsgebühr in Höhe von 80,-Euro fällig.

Die Kosten für Strom, Gas und Warmwasser sind direkt an den Versorger zu zahlen.

Darstellungen und Ausstattungen sind unverbindlich und nicht maßstabsgerecht. Änderungen vorbehalten.

Merkmale

  • Einbauküche
. Moderne Einbauküche mit Glaskeramikkochfeld, Backofen, Dunstabzugshaube, Kühl-Gefrierkombination, Geschirrspüler
. Pflegeleichter Designfußboden, Vinyl-Planken in den Wohnbereichen
. Fernseh- und Multimediaanschluss in den Wohn- und Schlafräumen
. Barrierearmes Dusch-/ u. Wannenbad mit einem
Waschmaschinenanschluss und Handtuchheizkörper
. Fußbodenerwärmung im Bad
. Elektr. Rollläden / Außenraffstore an den Fenstern
. Private Pkw-Stellplätze
. E-Mobilität ist vorgerüstet
. Hohe energet. Standards zur Reduzierung der Emissionen
. Versorgung über Glasfaser
. Gerätehaus als Abstellraum für Gartengeräte u. ä.

Grundrisse

Grundrisse
1 / 4

Virtueller Rundgang

3D tour

Realisiere Dein Projekt

Bausubstanz und Energie

Möchtest du Details zum Energieverbrauch?info_energy_calculation-icon
  • Zustand der ImmobilieErstbezug
Immowelt logo

Mietkosten

Warmmiete
1.950 €
Kaltmiete
16,06 €/m²
1.750 €
Nebenkosten
200 €
Zusätzliche Kosten
Heizkosten
Kaution
3 Nettokaltmieten
Weitere Preisinformationen

Kaution: 3 Nettokaltmieten

Lage

address-icon
Marktstraße 5bQuickborn (25451)
Quickborn vereint ländliche Ruhe mit urbaner Nähe. Die charmante Stadt im Süden Schleswig-Holsteins liegt nur etwa 20 Kilometer nördlich von Hamburg - perfekt für alle, die naturnah wohnen und zugleich gut angebunden sein möchten. Über die A7 und die AKN-Bahn ist Quickborn optimal erreichbar. Die Hamburger Innenstadt und der Flughafen liegen nur rund 30 Minuten entfernt - ideal für Pendler. Das Himmelmoor und der Fluss Pinnau prägen das grüne Stadtbild. Spazier- und Radwege, Sportvereine und vielfältige Freizeitangebote machen Quickborn zu einem Ort mit hoher Lebensqualität. Quickborn bietet eine moderne Infrastruktur mit Einkaufsmöglichkeiten, Ärzten, Schulen und indergärten. Die neu gestaltete Innenstadt lädt mit Cafés, Restaurants und kleinen Geschäften zum Verweilen ein. Neben Hamburg als Arbeitsort bietet Quickborn selbst zahlreiche Unternehmen aus Handwerk, Handel und Dienstleistung - sowie eine lebendige Gemeinschaft mit vielfältigem Vereinsleben. Quickborn steht für komfortables Wohnen im Grünen - mit hervorragender Anbindung, gewachsener Struktur und hohem Freizeitwert.

Weitere Informationen

Sonstiges Energieausweis: Bedarfsausweis
Baujahr: 2025
Energiepass erstellt am: 29.01.2025
Endenergiebedarf: 59.47 kWh / (m² * a)
Energieeffizienzklasse: B
Wesentliche Energieträger: Nahwärme

Weitere Services

Lust auf eine Besichtigung?
Eine Frage zur Immobilie?
Mit einer persönlichen Nachricht hast du bessere Chancen auf eine Antwort.
Mit der Nutzung der oben angegebenen Telefonnummer oder durch Klicken auf „Kontaktieren“ akzeptierst Du die Allgemeinen Nutzungsbedingungen, denen Du jederzeit widersprechen kannst. Weitere Informationen zum Datenschutz

Über den Anbieter

Kaltenweide 85, 25335 Elmshorn
partner badge
Partnerschaft
Herr Philipp WilskiDein Kontakt

Weitere Unterlagen

Online-ID: 26BGIDC4QWNP
Referenznummer: 81453
Semmelhaack Grundvermögen Dritte GmbH & Co. KG
Bewertung: 4,5 von 5 Sternen
Mit einer persönlichen Nachricht hast du bessere Chancen auf eine Antwort.
Mit der Nutzung der oben angegebenen Telefonnummer oder durch Klicken auf „Kontaktieren“ akzeptierst Du die Allgemeinen Nutzungsbedingungen, denen Du jederzeit widersprechen kannst. Weitere Informationen zum Datenschutz
Wie zufrieden bist du mit dieser Seite (nicht mit der Immobilie selbst)?