




Mehrfamilienhaus zum Kauf849000 €5.483 €/m²6 Zimmer • 154,8 m² • 480 m² Grundstück
849000 €
5.483 €/m²
6 Zimmer • 154,8 m² • 480 m² Grundstück
IMMORath.de - Einfamilienhaus im Grünen mit Doppelgarage
Merkmale
- Bezug: Frei nach Absprache
- 480 m² Grundstück
- Keller
- 4 Stellplätze: 2 Garagen, 2 Außen-Stellplätze
- Terrasse
- offener Kamin
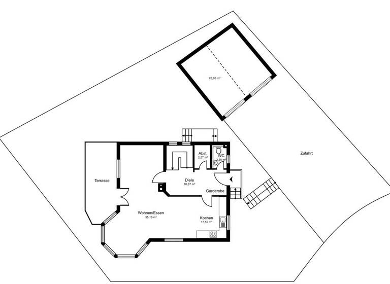
Grundrisse
Grundrisse
1 / 3
Realisiere Dein Projekt
Bausubstanz und Energie
Energieausweis
D
- Baujahr1998
- Zustand der ImmobilieGepflegt
- EnergieträgerGas, Holz
Preisdetails
Kaufpreis
849000 €
5.483 €/m²
Provision für Käufer
3,57% inkl. MwSt.
Weitere Preisinformationen
2 Stellplätze
2 Garagenstellplätze
2 Garagenstellplätze
Geschätzte Gesamtkosten
938.739 €1
Kaufpreis
849.000 €
Kaufnebenkosten
89.739 €
2Notarkosten (1,5%)
12.735 €
Grunderwerbsteuer (5%)
42.450 €
Provision für Käufer (3,57%)
30.309 €
Grundbucheintrag (0,5%)
4.245 €
1Der angezeigte Wert ist eine automatisch berechnete Schätzung von immowelt.
2Bei den Angaben handelt es sich um ortsübliche Werte. Individuelle Kosten können abweichen.
Lage

Wettelbrunn, Staufen im Breisgau (79219)
Der Anbieter hat die genaue Adresse nicht freigegeben
Weitere Informationen
Weitere Services
Lust auf eine Besichtigung?
Eine Frage zur Immobilie?
Online-ID: 2khc45z
Referenznummer: IR0725346
Wie zufrieden bist du mit dieser Seite (nicht mit der Immobilie selbst)?




