Version: 8.24.0Navigation ĂĽberspringen
1.080.660 €
4 Zimmer  â€˘  141 m²  â€˘  526 m² GrundstĂĽck

Einfamilienhaus zum Kauf • provisionsfrei
1080660 €
7.664 €/m²
4 Zimmer  â€˘  141 m²  â€˘  526 m² GrundstĂĽck

Dein Zuhause, so individuell wie du.

FEELS LIKE HOME. LOOKS LIKE YOU.

Ein Zuhause, das deine Handschrift trägt - individuell, durchdacht und bezahlbar.
Dein Traum vom Eigenheim ist näher, als du denkst.
Warum warten?

START YOUR HOME JOURNEY TODAY.

Merkmale

  • 526 m² GrundstĂĽck
  • Gäste-WC
THINK FAST-VOLLENDET PLUS - Bereit fĂĽr dein Finish.

- Technik, Heizung & Sanitärinstallation sind drin - du kümmerst dich nur um den Feinschliff
- Das Plus mit hochwertigen Sanitärobjekten und Fliesen
- Streichen, Böden verlegen, Türen setzen - du machst, was du willst
- Kein Stress mit Rohbau oder Technik - Fokus nur noch auf den Feinschliff
- Smartes Sparpotenzial - fertig gebaut, individuell finalisiert
- Ideal fĂĽr Macher mit Anspruch - hochwertige Basis fĂĽr deinen Stil

FĂĽr alle, die mitgestalten wollen - ohne auf Komfort zu verzichten.

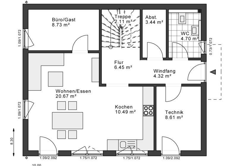
Grundrisse

Grundrisse
1 / 2

Realisiere Dein Projekt

Bausubstanz und Energie

Der Anbieter hat keine Informationen zum Energieverbrauch bereit gestellt.
  • Zustand der ImmobilieNeubau, Projektiert
  • HeizungsartFuĂźbodenheizung

Preisdetails

Kaufpreis
1080660 €
7.664,26 €/m²
Provision für Käufer
provisionsfrei
Geschätzte Gesamtkosten
1.140.096 €1
Kaufpreis
1.080.660 €
Notarkosten (1,5%)
16.210 €
Grunderwerbsteuer (3,5%)
37.823 €
Grundbucheintrag (0,5%)
5.403 €
1Der angezeigte Wert ist eine automatisch berechnete Schätzung von immowelt.
2Bei den Angaben handelt es sich um ortsübliche Werte. Individuelle Kosten können abweichen.

Lage

address-icon
Ramersdorf-Perlach, München (81739)
Der Anbieter hat die genaue Adresse nicht freigegeben
Perlach - Familienfreundlicher Stadtteil mit vielfältiger Infrastruktur

Perlach im Münchner Südosten zählt zu den gefragten Wohnlagen der Stadt. Der Stadtteil vereint urbanes Leben mit grüner Umgebung und bietet eine hervorragende Infrastruktur, die besonders Familien und Berufspendler anspricht.

Zahlreiche Einkaufsmöglichkeiten, darunter das Einkaufszentrum PEP (Perlacher Einkaufs-Passagen), sorgen für eine optimale Nahversorgung. Auch Ärzte, Apotheken und Banken sind in unmittelbarer Nähe vorhanden. Die Anbindung an den öffentlichen Nahverkehr ist ausgezeichnet: Mit der U-Bahnlinie U5, der S-Bahnlinie S7 sowie mehreren Buslinien erreicht man die Münchner Innenstadt in etwa 15 bis 20 Minuten. Die Nähe zur A8 und dem Mittleren Ring macht Perlach zudem für Autofahrer attraktiv.

Bildungseinrichtungen sind in Perlach zahlreich vertreten: Kindergärten, Grund- und weiterführende Schulen, darunter auch das staatliche Gymnasium München-Nordost, befinden sich direkt im Stadtteil oder in angrenzenden Vierteln. Auch internationale Schulen und berufsbildende Einrichtungen sind gut erreichbar.

Kulturell bietet Perlach eine lebendige Mischung: Vom historischen Ortskern Altperlach mit seinem charmanten Dorfcharakter und der Pfarrkirche St. Michael bis hin zu kulturellen Veranstaltungen im Kulturhaus Neuperlach oder der Stadtbibliothek ist für Abwechslung gesorgt. Zudem laden Parks, Spielplätze und das nahegelegene Ostparkgelände zu Freizeit und Erholung im Grünen ein.

Insgesamt ist Perlach ein lebenswerter Stadtteil mit hoher Wohnqualität, der Tradition und Moderne gekonnt verbindet - ideal für Familien, Paare und Berufstätige.

Weitere Informationen

Sonstiges Das Haus ist projektiert inkl. GrundstĂĽck. Das GrundstĂĽck wird in Kommission angeboten bzw. direkt von Dritten verkauft. Daher kann der genannte Preis aufgrund aktueller Marktsituationen schwanken.
Die Bauabwicklung kann kurzfristig nach Grundstückserwerb begonnen werden. Bilder zeigen möglicherweise Sonderausstattungen, die auf Wunsch gegen Aufspreis zusätzlich angeboten werden können.

Erhalte in deinem persönlichen Beratungsgespräch kostenlos alle wichtigen Informationen zu diesem Projekt, insbesondere: Lage und Bebauungsmöglichkeiten des Baugrundstücks, Baukosten-Kalkulation, Finanzierungs- u. Förderungsmöglichkeiten sowie detaillierte Architektur- uund Grundrissplanung.

Wir freuen uns darauf, dich beraten zu dĂĽrfen! Stichworte Anzahl der Schlafzimmer: 3, Anzahl der Badezimmer: 1, Anzahl der separaten WCs: 1

Weitere Services

Lust auf eine Besichtigung?
Eine Frage zur Immobilie?
Nachricht hinzufĂĽgen
Mit der Nutzung der oben angegebenen Telefonnummer oder durch Klicken auf „Kontaktieren“ akzeptierst Du die Allgemeinen Nutzungsbedingungen, denen Du jederzeit widersprechen kannst. Weitere Informationen zum Datenschutz

Ăśber den Anbieter

HauptstraĂźe 4d, 83339 Chieming
Herr Niklas Schumacher
Herr Niklas SchumacherDein Kontakt
Online-ID: 2n4gk5p
Referenznummer: WB-31041-MĂĽnchen
Schwabenhaus Rosenheim - Niklas Schumacher - Handelsvertretung fĂĽr die Schwabenhaus GmbH
Schwabenhaus Rosenheim - Niklas Schumacher - Handelsvertretung fĂĽr die Schwabenhaus GmbH
Nachricht hinzufĂĽgen
Mit der Nutzung der oben angegebenen Telefonnummer oder durch Klicken auf „Kontaktieren“ akzeptierst Du die Allgemeinen Nutzungsbedingungen, denen Du jederzeit widersprechen kannst. Weitere Informationen zum Datenschutz
Wie zufrieden bist du mit dieser Seite (nicht mit der Immobilie selbst)?