

Mehrfamilienhaus zum Kauf269000 €792 €/m²11 Zimmer • 339,8 m² • 278 m² Grundstück
269000 €
792 €/m²
11 Zimmer • 339,8 m² • 278 m² Grundstück
Attraktives Renditeobjekt in Furth im Wald - Freudensprungstraße 11!
Merkmale
- Bezug: Ab sofort!
- vermietet
- 278 m² Grundstück
- Kelleranteil
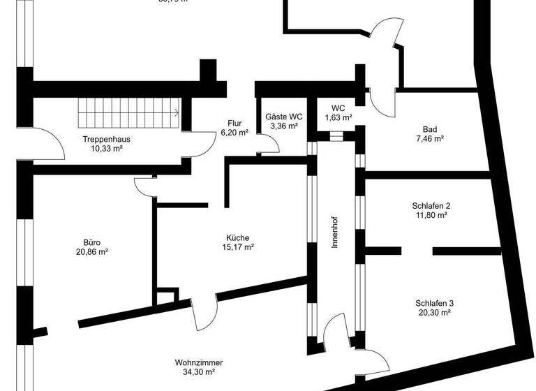
Grundrisse
Grundrisse
1 / 2
Realisiere Dein Projekt
Bausubstanz und Energie
Der Anbieter hat keine Informationen zum Energieverbrauch bereit gestellt.
- Baujahr1909
- Zustand der ImmobilieGepflegt
- HeizungsartZentralheizung
- EnergieträgerGas
Preisdetails
Kaufpreis
269000 €
791,69 €/m²
Provision für Käufer
3,57 % inkl. MwSt.
Geschätzte Gesamtkosten
293.398 €1
Kaufpreis
269.000 €
Kaufnebenkosten
24.398 €
2Notarkosten (1,5%)
4.035 €
Grunderwerbsteuer (3,5%)
9.415 €
Provision für Käufer (3,57%)
9.603 €
Grundbucheintrag (0,5%)
1.345 €
1Der angezeigte Wert ist eine automatisch berechnete Schätzung von immowelt.
2Bei den Angaben handelt es sich um ortsübliche Werte. Individuelle Kosten können abweichen.
Lage

Furth, Furth im Wald (93437)
Der Anbieter hat die genaue Adresse nicht freigegeben
Weitere Informationen
Weitere Services
Lust auf eine Besichtigung?
Eine Frage zur Immobilie?
Über den Anbieter
Matador Immobilien GmbHMaklerbüro
Lamer Straße 14, 93444 Bad Kötzting
3 Jahre Partnerschaft
Herr Daniel SchröderDein Kontakt
Online-ID: 2ns4d5k
Referenznummer: 25-110

Matador Immobilien GmbH
Bewertung: 4,7 von 5 Sternen
Wie zufrieden bist du mit dieser Seite (nicht mit der Immobilie selbst)?
