Büro oder Praxisflächen - neuwertig und sofort bezugsfrei
Neuwertige Flächen mit Topausstattung ab sofort frei - flexible Mietkonditionen. Perfekt als Büro oder Praxis. Grundriss flexibel anpassbar auf Ihre Bedürfnisse (nach Absprache).
Besonderheiten: ? Ab sofort verfügbar ? Absolut neuwertig (BJ 2022) ? Durchgehend hochwertige und ansprechende Ausstattung ? Nachhaltiges Energiekonzept, geringe Nebenkosten ? Weitere Flächen im Gebäude verfügbar (Lager, Stadl, Büros, Produktion) ? Wahlweise OG mit Terrasse oder DG mit großer Wohnung inkl. Alpenblick z.B. für Gäste oder Geschäftsführer ? Kantine-Mitnutzung nach Absprache evtl. möglich
Nutzen Sie die Chance auf die attraktive Fläche und kontaktieren Sie uns direkt per Anruf, E-Mail oder Kontaktformular. Gerne senden wir Ihnen das Exposé mit Details zu und beraten Sie umfassend.
Merkmale
Bezug: sofort
Personenaufzug
Einbauküche
Balkon
20 Stellplätze: 20 Außen-Stellplätze
- Büros mit Doppelboden - dedizierte Glasfaser-Leitung mit 300 MBit/s für schnelles Internet - LED-Beleuchtung, teils mit intelligenten Sensoren - Zwei Treppenhäuser jeweils mit Aufzug bis in UG - DG: Große Wohnung mit Außenterrasse und Alpenblick, inkl. Einbauküche und Bad, ca. 120 m² - OG: Große Panorama-Sonnenterrasse - Tee-Küche im OG und DG - Sanitärräume, teils mit Duschen - Moderne, flexibel nutzbare Besprechungsräume - Lagerfläche & Umkleiden bei Bedarf und nach Absprache verfügbar - Lüftungsanlage - Aufgeschaltete Brandmeldeanlage - Photovoltaikanlage mit ca. 82 kWp - Außenstellplätze nach Bedarf, teils mit E-Ladesäulen - Fahrrad- & E-Bike Stellplätze
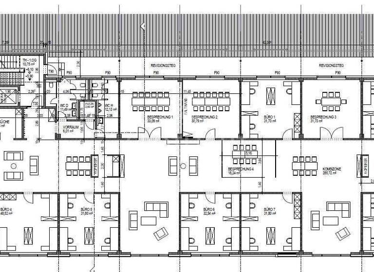
Grundrisse
Grundrisse
1 / 1
Bausubstanz und Energie
Energieausweis
Endenergiebedarf (Wärme)
Endenergiebedarf (Strom)
Baujahr2023
Zustand der Immobilieneuwertig
HeizungsartZentralheizung
EnergieträgerElektro
Mietkosten
Nettomiete zzgl. Nebenkosten
9.940 €
Zusätzliche Kosten
Miete pro Stellplatz
45 €
Provision für Mieter
provisionsfrei; provisionsfrei für Mieter
Kaution
keine Angabe
Weitere Preisinformationen
20 Stellplätze, Miete je: 45,00 EUR
Lage
Wiesen, Königsdorf (82549)
Der Anbieter hat die genaue Adresse nicht freigegeben
Die Gewerbeimmobilie befindet sich im oberbayerischen Landkreis Bad Tölz-Wolfratshausen und bietet ein wirtschaftlich stabiles Umfeld für Ihr Gewerbe. Die Anbindung ist durch die Nähe zur B11 sowie die gute Erreichbarkeit der Autobahn A95 (München-Garmisch-Partenkirchen) gewährleistet, wodurch sowohl die Landeshauptstadt München als auch das südliche Oberland schnell erreichbar sind. Das Einzugsgebiet umfasst den wirtschaftsstarken Großraum München mit einem breiten Fachkräftepotenzial, was insbesondere für technologie- und dienstleistungsorientierte Unternehmen attraktiv ist. Zudem profitiert der Standort von einem im regionalen Vergleich moderaten Gewerbesteuerhebesatz (330 v. H.) sowie einer gewerbefreundlichen Gemeindestruktur.
Weitere Informationen
Sonstiges
Gerne beraten wir Sie umfassend zu diesem attraktiven Objekt. Melden Sie sich, solange die Fläche noch verfügbar ist. Die meisten der Angaben stammen vom Eigentümer. Trotz sorgfältiger Prüfung können wir hierfür keine Haftung übernehmen. Sämtliche Größenangaben sind ca.-Angaben - es wird kein Flächenmaß garantiert.
Stichworte
Stellplatz vorhanden, Gesamtfläche: 940,00 m², Anzahl Balkone: 1, Bundesland: Bayern