Version: 8.24.1Navigation überspringen
800 €
3 Zimmer  •  100 m² Bürofläche
Immowelt logo

Bürofläche zur Miete • provisionsfrei
800 €
3 Zimmer  •  100 m² Bürofläche

Schnaittach: Gewerbefläche mit ca. 100 m² im 2.OG

Die angebotene Fläche befindet sich im 2. Obergeschoss in eines gepflegten Geschäftshauses.
Das Gebäude wurde ca. 1993 errichtet.

Das Gebäude steht nicht unter Denkmalschutz auch wenn das Fachwerk dies vermuten lässt. Es handelt sich hierbei um ein vorgeblendetes Fachwerk

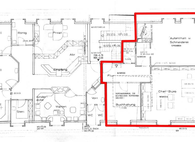
Die gesamte Fläche beträgt ca. 100 m², aufgeteilt in drei Räume, Küchenbereich, WC und Flur.

Optional steht noch eine weitere Fläche im 1.OG mit ca. 280 m² zur Verfügung.

Der angegebene Mietpreis bezieht sich auf den jetzigen Zustand.

Eine neue Grundrissgestaltung, z. B. das Einziehen von Zwischenwänden, Sanitäranlangen, etc. und/oder weitere Umbaumaßnahmen sind grundsätzlich denkbar.

Dies ist abhängig von der Vertragslaufzeit und gegen Aufpreis möglich.
Eine Mindestanmietung von 3 Jahren sollte möglich sein.

Die Nebenkosten in Höhe von ca. EUR 250,-- monatlich beinhalten einen Heizkostenabschlag, jedoch keinen Abschlag für Strom.
Die Anmeldung (Strom) muss eigenständig beim örtlichen Energieversorger erfolgen, die Abschlagszahlungen erfolgen direkt mit dem Energieversorger.

Auf dem Grundstück befinden sich ca. 15 Stellplätze.
Eine exklusive Anmietung ist möglich.

Alle genannten Preise sind Nettopreise, d.h. vom Mieter ist zusätzlich auf Miete und Nebenkosten die gesetzliche Mehrwertsteuer in Höhe von 19% zu zahlen.

Merkmale

  • Bezug: nach Absprache
  • 2. Geschoss

Grundrisse

Grundrisse
1 / 1

Realisiere Dein Projekt

Bausubstanz und Energie

Der Anbieter hat keine Informationen zum Energieverbrauch bereit gestellt.
  • Baujahr1993
Immowelt logo

Mietkosten

Nettomiete
800 €
Nebenkosten
250 €
Heizkosten
in Warmmiete enthalten
Provision für Mieter
provisionsfrei
Kaution
3 Bruttokaltmieten

Lage

address-icon
Schnaittach (91220)
Der Anbieter hat die genaue Adresse nicht freigegeben
Markt Schnaittach gehört zum Nürnberger Landkreis und ist ein bekannter Erholungsort in Mittelfranken.
In wenigen Autominuten erreicht man die Autobahnen A9 und A3, über die man in ca. 30 Fahrminuten die Nürnberger Innenstadt oder auch das Erlanger Zentrum erreicht.
Auch an die öffentlichen Verkehrsnetze (Bus und Bahn) ist Schnaittach gut angebunden.
Alle Einrichtungen des täglichen Bedarfs, wie Kindergärten, Schulen, Ärzte, Apotheken, Banken, Einkaufsmöglichkeiten, etc. sind in der näheren Umgebung vorhanden.

Weitere Informationen

Provision provisionsfrei Kaution 3 Bruttokaltmieten Bezugstermin nach Absprache

Weitere Services

Lust auf eine Besichtigung?
Eine Frage zur Immobilie?
Nachricht hinzufügen
Mit der Nutzung der oben angegebenen Telefonnummer oder durch Klicken auf „Kontaktieren“ akzeptierst Du die Allgemeinen Nutzungsbedingungen, denen Du jederzeit widersprechen kannst. Weitere Informationen zum Datenschutz

Über den Anbieter

EURAG GmbH
EURAG GmbHMaklerbüro
Fichtestr. 26, 90489 Nürnberg
partner badge
Partnerschaft
Herr Klaus BergDein Kontakt
Online-ID: 2md3e5b
Referenznummer: 5443
EURAG GmbH
EURAG GmbH
Bewertung: 4,7 von 5 Sternen
Nachricht hinzufügen
Mit der Nutzung der oben angegebenen Telefonnummer oder durch Klicken auf „Kontaktieren“ akzeptierst Du die Allgemeinen Nutzungsbedingungen, denen Du jederzeit widersprechen kannst. Weitere Informationen zum Datenschutz
Wie zufrieden bist du mit dieser Seite (nicht mit der Immobilie selbst)?