Version: 8.25.1Navigation überspringen
8,50 €
542,9 m² Bürofläche
Immowelt logo

Bürofläche zur Miete
8,50 €
/m²
542,9 m² Bürofläche

BÜRO Nähe Bahnhof - Landesgericht - Tiefgarage vorhanden

BÜROHEINHEIT mit ca. 543 qm im 1. Stock - Bahnhof und Fußgängerzone in 5 Gehminuten erreichbar - sofort beziehbar - Großraum- und Einzelbüros flexibel gestaltbar.

LAGE
Die Lagequalität ist hervorragend! In nur wenigen Gehminuten sind der Bahnhof, die Altstadt und die grüne Lunge, der Stadtwald (oder auch Kaiserwald) erreichbar. In dieser zentraler Lage bietet der Standort aber auch ausreichend Pkw-Stellplätze und einen kleinen Park.

BÜRO
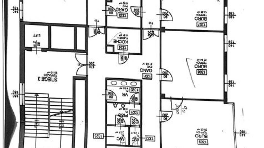
Im Bauteil III gelangt im 1. Obergeschoß eine abgeschlossene Büroeinheit mit insgesamt ca. 543 m² zur Vermietung, bestehend aus:

RAUMPROGRAMM und AUSSTATTUNG
> diverse Büroräume, nach Wunsch flexibel teilbar
> Teeküche möbliert
> Damen- und Herren-Sanitärgruppe mit mehreren Toiletten und Waschräumen
> Nebenräume Putzkammerl, Abstellraum
> Klimatisierung vorhanden
> Sonnenschutz-Jalousien vorhanden
> Teppichbelag
> abgehängte Decke mit Einbauleuchten

VERTRAGSKONDITIONEN
1. Mietdauer:
Nach Vereinbarung. Vermieterseits wird ein befristeter Vertrag auf 5 bis 10 Jahre angestrebt.

2. Hauptmietzins:
Euro 8,50 / m² Verhandlungsbasis
wertgesichert zuzüglich Betriebskosten, Heizkosten, sonstige Aufwendungen (Aufzug, Klima) und 20 % Umsatzsteuer.

3. Monatliche Betriebskosten:
BK allgemein Euro 1.951,72
BK Aufzug Euro 172,80
BK Klima Euro 223,30
Heizkosten Euro 496,20
jeweils netto zuzüglich 20 % USt.

4. Nebenkosten bei Vertragsabschluss:
a) Kaution: 3 Brutto-Monatsmieten
b) Vergebührung: abhängig von vereinbarter Mietdauer
c) Vermittlungsprovision 3 Brutto-Monatsmieten zuzüglich 20 % USt.

PARKPLÄTZE
Tiefgarage im Gebäude vorhanden.

BEZIEHBAR
Das Objekt ist bestandfrei und (vorbehaltlich zwischenzeitiger Reservierungen) zum sofortigen Bezug geeignet.

WEITERE INFORMATIONEN und BESICHTIGUNG
Gerne stehen wir Ihnen für weitere Detailfragen und unverbindliche Besichtigungen zur Verfügung.

Merkmale

  • Bezug: sofort
  • Personenaufzug

Grundrisse

Verschaffe dir einen genauen Überblick über die Raumaufteilung.selection_property_house-icon

Realisiere Dein Projekt

Bausubstanz und Energie

Heizwärmebedarf (HWB)

B

Gesamtenergieeffizienz (fGEE)

C
  • Baujahr1994
  • Zustand der ImmobilieNeubau
  • HeizungsartZentralheizung
  • EnergieträgerFernwärme
Immowelt logo

Mietkosten

Gesamtmiete
8.950 €
Nettokaltmiete
8,50 €/m²
4.614,31 €
Betriebskosten
2.817,38 €
Heizkosten
595,44 €
Umsatzsteuer
1.491,67 €
Provision für Mieter
3 BMM
Kaution
25791 €
Weitere Preisinformationen
Nettokaltmiete: 4.614,31 EUR

Lage

address-icon
St. Pölten (3100)
Der Anbieter hat die genaue Adresse nicht freigegeben
Altstadt, Bahnhofsnähe, öffentl. Verkehrsmittel, TG/Garage, Zentrum

Weitere Services

Lust auf eine Besichtigung?
Eine Frage zur Immobilie?
Nachricht hinzufügen
Mit der Nutzung der oben angegebenen Telefonnummer oder durch Klicken auf „Kontaktieren“ akzeptierst Du die Allgemeinen Nutzungsbedingungen, denen Du jederzeit widersprechen kannst. Weitere Informationen zum Datenschutz

Über den Anbieter

Josefstraße 19, 3100 ST. PÖLTEN
partner badge
Partnerschaft
Herr Markus BRANDSTETTERDein Kontakt
Online-ID: 24UZX5LNLCQX
Referenznummer: 202/07929
Realkanzlei Edlauer Immobilientreuhänder GmbH
Realkanzlei Edlauer Immobilientreuhänder GmbH
Bewertung: 4,5 von 5 Sternen
Nachricht hinzufügen
Mit der Nutzung der oben angegebenen Telefonnummer oder durch Klicken auf „Kontaktieren“ akzeptierst Du die Allgemeinen Nutzungsbedingungen, denen Du jederzeit widersprechen kannst. Weitere Informationen zum Datenschutz
Wie zufrieden bist du mit dieser Seite (nicht mit der Immobilie selbst)?