Renditestarke Kapitalanlage: Kernsaniert, möblierte Appartments & moderne Büroflächen
Kurzbeschreibung
- Büroeinheiten
- Wohneinheiten
- 22 Stellplätze à 15.000 €
Objekt
Dieses vielseitig nutzbare Gebäude vereint repräsentative Büroflächen und attraktive Wohneinheiten unter einem Dach und eignet sich ideal für Unternehmen, Investoren sowie Kapitalanleger.
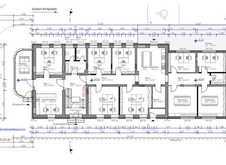
Im Erdgeschoss stehen rund 300 m² moderne Büroflächen zur Verfügung, die eine jährliche Nettokaltmiete von 55.400,00 € generieren. Die durchdachte Raumaufteilung umfasst 8 Einzelbüros, 2 Konferenzräume - darunter ein schalldichter Raum -, einen repräsentativen Empfangsbereich, 2 separate Sanitärräume, eine offene Küche mit Zugang zur Terrasse sowie einen klimatisierten Serverraum. Ergänzt wird das Angebot durch 12 zugeordnete Stellplätze, die zusätzliche Mieteinnahmen von 10.800,00 € jährlich erzielen. Damit bietet das Erdgeschoss optimale Voraussetzungen für Unternehmen, Kanzleien oder Praxen mit Anspruch an Funktionalität und Komfort.
Das 1. Obergeschoss beherbergt 6 voll möblierte Apartments mit Größen zwischen ca. 24 und 30 m² auf einer Gesamtfläche von rund 187 m². Gemeinsam mit den Einheiten im 2. Obergeschoss erwirtschaften die Apartments - inklusive jeweils eines Stellplatzes - eine attraktive jährliche Nettokaltmiete von 116.000,00 €.
Im 2. Obergeschoss befinden sich 4 gut geschnittene Zwei-Zimmer-Wohnungen mit jeweils ca. 44 m² Wohnfläche. Ein separater, gemeinschaftlich nutzbarer Waschraum sowie ein Putzmittelraum auf jeder Etage erhöhen den Wohnkomfort zusätzlich. Ein besonderes Highlight ist die großzügige Dachterrasse, die allen Mietern zur gemeinschaftlichen Nutzung zur Verfügung steht und einen echten Mehrwert für modernes Wohnen bietet.
Für die Apartments liegt eine offizielle Genehmigung der Stadt Trier zur Kurzzeitvermietung vor. Dadurch können die Einheiten flexibel auch über Plattformen wie Airbnb oder Booking.com für Zeiträume unter einem Monat vermietet werden. Das gesamte Gebäude ist als gewerblich nutzbar eingestuft.
Auch der Außenbereich überzeugt: Das vollständig erschlossene Grundstück bietet insgesamt 22 Stellplätze (à 15.000 €), sodass ausreichend Parkmöglichkeiten für Mitarbeiter, Kunden und Bewohner vorhanden sind. Zusätzlich verfügt das Gebäude über einen Keller sowie einen Speicher, die flexibel als Lagerflächen genutzt werden können.
Das Objekt wurde im Jahr 2016 umfassend kernsaniert und präsentiert sich heute in einem modernen und sehr gepflegten Zustand - sowohl technisch als auch optisch. Dies gewährleistet eine nachhaltige Werthaltigkeit und macht die Immobilie zu einer zukunftssicheren Investition.
Für Kapitalanleger besonders interessant ist die solide Ertragslage: Das Gebäude erzielt im ersten Quartal 2026 eine Gesamt-Nettokaltmiete von 182.200,00 € und stellt somit eine äußerst rentable Investitionsmöglichkeit dar. Detaillierte Mietaufstellungen und Renditekennzahlen stellen wir Ihnen gerne auf Anfrage zur Verfügung.
Mietübersicht 2025
Bürofläche Erdgeschoss: 55.400,00 €
Stellplätze Büro (12 Stück): 10.800,00 €
Apartments inkl. Stellplätze: 94.000,00 €
Gesamt-Nettokaltmiete: 160.200,00 €
Mietübersicht 2026 (Stand Q1)
Bürofläche Erdgeschoss: 55.400,00 €
Stellplätze Büro (12 Stück): 10.800,00 €
Apartments inkl. Stellplätze: 116.000,00 €
Gesamt-Nettokaltmiete: 182.200,00 €