Version: 8.26.0Navigation überspringen
840.000 €
14 Zimmer  •  241 m² Bürofläche
Immowelt logo

Büro zum Kauf
840000 €
14 Zimmer  •  241 m² Bürofläche

flexibel nutzbares Bürogebäude im Zentrum von Königs Wusterhausen

Dieses gepflegte Geschäftshaus bietet eine funktionale und zugleich repräsentative Aufteilung über drei Etagen sowie zusätzliche Nutzflächen im Keller. Die Immobilie eignet sich ideal für Unternehmen, die Büro-, Besprechungs- und Nebenflächen in einem Gebäude vereinen möchten.
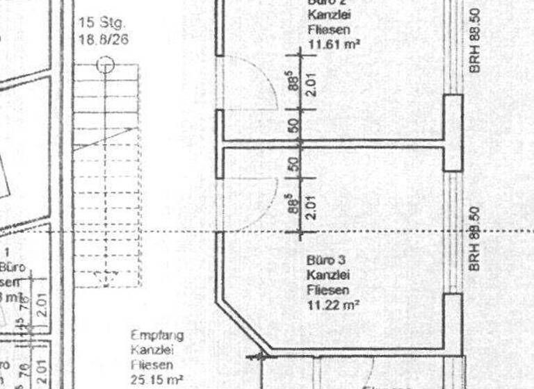
Bereits im Erdgeschoss empfängt ein ebenerdiger Eingang Besucher und Mitarbeiter. Von hier aus gelangt man in einen großzügigen Flur mit einer hochwertigen Treppe, die die einzelnen Geschosse miteinander verbindet. Auf dieser Ebene befinden sich vier helle und gut geschnittene Büroräume, die vielseitig nutzbar sind. Ergänzt wird das Raumangebot durch eine Küche sowie jeweils ein separates Damen- und Herren-WC.
Das Obergeschoss bietet weitere vier Büroräume und schafft damit zusätzliche Arbeits- oder Projektflächen. Eine weitere Küche sorgt auch hier für Komfort im Arbeitsalltag. Zudem steht ein separater Besucherraum zur Verfügung, der sich ideal für Besprechungen, Meetings oder den Empfang von Kunden eignet.
Im Dachgeschoss befinden sich zwei weitere Büroräume, die sich beispielsweise als ruhige Arbeitsplätze oder Leitungsbüros nutzen lassen. Zusätzlich sind hier ein WC mit Dusche sowie der Heizungsraum untergebracht.
Der Keller verfügt über drei Räume, die sich hervorragend als Lagerflächen oder für sportliche bzw. betriebliche Freizeitaktivitäten nutzen lassen.
Direkt am Gebäude stehen ausreichend ebenerdige Parkplätze zur Verfügung, sodass Mitarbeiter und Besucher bequem vor Ort parken können.
Insgesamt bietet diese Immobilie eine durchdachte Raumstruktur, vielseitige Nutzungsmöglichkeiten und eine angenehme Arbeitsatmosphäre.

Merkmale

  • frei ab 01.01.2028
  • vermietet
  • Einbauküche
  • 7 Stellplätze: 7 Außen-Stellplätze
  • Bodenbelag: Laminat, Granit

Grundrisse

Grundrisse
1 / 4

Bausubstanz und Energie

Möchtest du Details zum Energieverbrauch?info_energy_calculation-icon
  • Baujahr2003
  • Zustand der ImmobilieGepflegt
Immowelt logo

Preisdetails

Kaufpreis
840000 €
Provision für Käufer
7,14 %
Weitere Preisinformationen
7 Stellplätze
Geschätzte Gesamtkosten
899.976 €1
Kaufpreis
840.000 €
Provision für Käufer (7,14%)
59.976 €
1Der angezeigte Wert ist eine automatisch berechnete Schätzung von immowelt.
2Bei den Angaben handelt es sich um ortsübliche Werte. Individuelle Kosten können abweichen.

Lage

address-icon
Königs WusterhausenKönigs-Wusterhausen (15711)
Der Anbieter hat die genaue Adresse nicht freigegeben
Die Immobilie befindet sich in zentraler Lage der Kreisstadt Königs Wusterhausen im Landkreis Dahme-Spreewald, südöstlich von Berlin. Mit rund 38.000 Einwohnern zählt die Stadt zu den bedeutenden Mittelzentren im Berliner Umland und profitiert von ihrer attraktiven Lage zwischen Hauptstadtregion und den wasser- und waldreichen Landschaften Brandenburgs.
Das Stadtzentrum zeichnet sich durch eine gewachsene Infrastruktur mit vielfältigen Einzelhandels-, Dienstleistungs- und Gastronomieangeboten aus. Behörden, Banken, medizinische Einrichtungen sowie zahlreiche Einkaufsmöglichkeiten befinden sich im direkten Umfeld und sorgen für eine hohe Standortattraktivität sowohl für Unternehmen als auch für Kunden und Mitarbeiter.
Ein besonderer Vorteil des Standortes ist die sehr gute Verkehrsanbindung. Der nahegelegene Bahnhof von Königs Wusterhausen bietet Anschluss an die Berliner S-Bahn (Linie S46) sowie mehrere Regionalbahnverbindungen mit Direktanschlüssen u. a. nach Berlin, Potsdam, Cottbus und Frankfurt (Oder). Dadurch ist die Berliner Innenstadt in etwa 30 Minuten erreichbar.
Auch der Individualverkehr profitiert von der schnellen Anbindung an die Bundesautobahnen A10 (Berliner Ring) und A13 sowie an die Bundesstraße B179. Der internationale Flughafen Flughafen Berlin Brandenburg Willy Brandt ist ebenfalls in kurzer Zeit erreichbar und stellt einen zusätzlichen Standortvorteil für Unternehmen dar.
Die Innenstadt von Königs Wusterhausen wird aktuell im Rahmen des Städtebauförderprogramms "Lebendige Zentren" weiterentwickelt. Ziel ist es, den historischen Stadtkern funktional und städtebaulich aufzuwerten und als lebendigen Wirtschafts- und Dienstleistungsstandort nachhaltig zu stärken.
Insgesamt bietet der Standort eine attraktive Kombination aus urbaner Infrastruktur, hervorragender Verkehrsanbindung an die Metropolregion Berlin und einer hohen Lebens- und Aufenthaltsqualität im wald- und seenreichen Umfeld.

Weitere Informationen

Sonstiges Die Immobilie ist bis zum 31.12.2027 vermietet und danach frei verfügbar.

Für die Richtigkeit der Angaben können wir keine Haftung und/oder Gewährleistung übernehmen.

Irrtum und Zwischenverkauf vorbehalten.

Sie Ihre Immobilie verkaufen wollen oder müssen, ermitteln wir Ihnen kostenfrei den erzielbaren Verkaufspreis und vermitteln Ihnen die Möglichkeiten für eine optimale Vermarktung.

In der Vermarktungsphase können wir Ihnen alle Arbeiten abnehmen und während der Verkaufsphase werden Sie kontinuierlich über den Bearbeitungsstand informiert. Sie können entscheiden in welchem Maße Sie am Verkaufsprozess beteiligt werden möchten.

Den Verkauf Ihrer Immobilie begleiten wir bis zum Notartermin und der Hausübergabe. Wir unterstützen Sie mit unserem Netzwerk und können die erforderlichen Dienstleistungen rund um den Immobilienverkauf vermitteln um den bestmöglichen Verkauf zu ermöglichen. Stichworte Stellplatz vorhanden, Gesamtfläche: 329,00 m²

Weitere Services

Lust auf eine Besichtigung?
Eine Frage zur Immobilie?
Nachricht hinzufügen
Mit der Nutzung der oben angegebenen Telefonnummer oder durch Klicken auf „Kontaktieren“ akzeptierst Du die Allgemeinen Nutzungsbedingungen, denen Du jederzeit widersprechen kannst. Weitere Informationen zum Datenschutz

Über den Anbieter

Fuchsbau 13, 15745 Wildau
partner badge
6 Jahre Partnerschaft
Herr Andreas ZielkeDein Kontakt
Online-ID: 26CR9MSX6LPT
Referenznummer: 128241599
Wie zufrieden bist du mit dieser Seite (nicht mit der Immobilie selbst)?