Version: 8.24.0Navigation ĂĽberspringen
ohne-makler.net - Immobilien selbst vermarkten
2.115 €
215 m² Bürofläche

Bürofläche zur Miete • provisionsfrei
2.115 €
215 m² Bürofläche

Klimatisierte Büro-/Praxis-/Gewerbefläche im Erdgeschoss - 215 m² in 97249 Eisingen

In unserem gepflegten Geschäftshaus in 97249 Eisingen vermieten wir ab dem 01.06.26 eine helle, klimatisierte Gewerbefläche im Erdgeschoss mit einer Gesamtfläche von 215,87 m². Die Fläche wird unmöbliert vermietet.
Eine langfristige Vermietung wird ausdrĂĽcklich angestrebt.

Das Gebäude wird von einem mittelständischen, familiär geführten Elektrounternehmen genutzt und bietet ein ruhiges, professionelles Umfeld für Gewerbetreibende.
Die Gewerbefläche eignet sich hervorragend für Büro-, Kanzlei-, Praxis-, Beratungs- oder IT-Nutzungen sowie ähnliche dienstleistungsorientierte Konzepte.

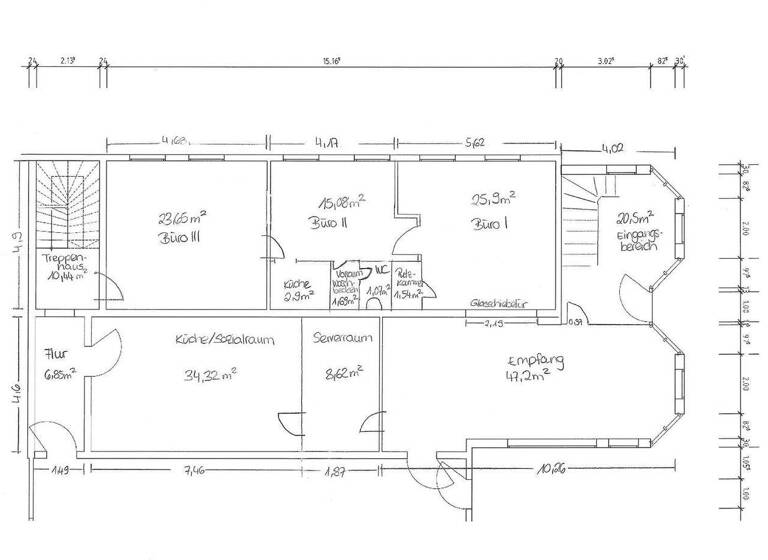
Die Fläche teilt sich wie folgt auf:
.Büro I: 25,90 m²
.Büro II: 15,08 m² (mit integrierter Küchenzeile)
.Büro III: 23,65 m²
.Empfangsbereich: 47,20 m²
.Aufenthalts-/Anwendungsraum oder weitere Bürofläche: 34,32 m²
.Serverraum: 8,62 m²
.WC mit Waschbecken sowie ein separater Putz-/Abstellraum bei BĂĽro I/BĂĽro II
.Zusätzliches WC UG groß: 6,09 m²
.Archiv UG: 25,41 m²
.Gemeinschaftsflächen (Flur, Treppenhaus, Eingang): 29,60m²

Die Räume befinden sich in sehr gepflegtem Zustand, sind lichtdurchflutet und klimatisiert. Ein Grundriss wird zur Anzeige mit eingestellt, die Raumaufteilung ist dort gut erkennbar.

Mietkonditionen:
.Nettokaltmiete: 9,80 € / m²
.Nebenkosten: 3,00 € / m² (inklusive Heizung, zzgl. Strom)

Parkmöglichkeiten:
.Bis zu 5 Stellplätze auf dem Firmengrundstück (zzgl. 30 € pro Stellplatz)
.Optional mit Ladestation für E-Fahrzeuge (zzgl. 35 € pro Stellplatz)

Die Fläche eignet sich ideal für Büro-, Praxis- oder dienstleistungsorientierte Nutzung.

Kontakt: Claudia Polik, Tel. 09306/909717

Merkmale

  • frei ab 01.06.2026
  • EinbaukĂĽche
  • Keller
  • 5 Stellplätze: 5 AuĂźen-Stellplätze
  • Garten
  • Bodenbelag: Fliesen, Kunststoff
Garten, Keller, Einbauküche, Gäste-WC, Fliesen

Grundrisse

Grundrisse
1 / 1

Realisiere Dein Projekt

Bausubstanz und Energie

Der Anbieter hat keine Informationen zum Energieverbrauch bereit gestellt.
  • Zustand der ImmobilieGepflegt
  • HeizungsartZentralheizung
  • EnergieträgerĂ–l
MediumRectangleTop

Mietkosten

Nettomiete
2.115 €
Nebenkosten
647 €
Heizkosten
in Warmmiete enthalten
Provision fĂĽr Mieter
provisionsfrei; keine Provision, courtagefrei
Kaution
6350 €
Weitere Preisinformationen
5 Stellplätze

Lage

address-icon
Eisingen (97249)
Der Anbieter hat die genaue Adresse nicht freigegeben
Die Gewerbeimmobilie befindet sich in zentraler Lage von 97249 Eisingen, Hauptstraße 79, direkt an der Ortsdurchfahrt. Ein besonderer Standortvorteil ist die hervorragende Anbindung an die Autobahn A3. Die Autobahnauffahrt Kist ist in wenigen Fahrminuten erreichbar und gewährleistet eine schnelle Verbindung in Richtung Würzburg, Frankfurt am Main und Nürnberg. Der Wirtschaftsraum Würzburg liegt nur ca. 10 km entfernt. Öffentliche Verkehrsmittel erreicht man in ca. 100 Metern fußläufig. Die Kombination aus zentraler Ortslage und Autobahnnähe macht die Immobilie besonders attraktiv für Gewerbe, Dienstleistung, Handwerk oder Büroflächen.

Weitere Informationen

Sonstiges Heizungsart: Zentralheizung
Energieträger: Öl
Energieausweis nicht vorhanden


ohne-makler (OM) ist weder Anbieter noch Vermittler der Immobilie. OM betreibt eine Plattform für Immobilieneigentümer, die unter anderem die gleichzeitige Veröffentlichung einzelner Inserate auf mehreren Immobilienportalen ermöglicht. Die Inhalte dieser Inserate werden ausschließlich von Dritten verantwortet. Für die Richtigkeit, Vollständigkeit oder Rechtmäßigkeit der Angaben übernimmt OM keine Haftung. Hinweise auf mögliche Rechtsverstöße können jederzeit gemeldet werden und werden nach Prüfung umgehend bearbeitet. Stichworte Stellplatz vorhanden, Gesamtfläche: 215,00 m², Anzahl der separaten WCs: 1, Bundesland: Bayern

Weitere Services

Lust auf eine Besichtigung?
Eine Frage zur Immobilie?
Nachricht hinzufĂĽgen
Mit der Nutzung der oben angegebenen Telefonnummer oder durch Klicken auf „Kontaktieren“ akzeptierst Du die Allgemeinen Nutzungsbedingungen, denen Du jederzeit widersprechen kannst. Weitere Informationen zum Datenschutz

Ăśber den Anbieter

Humboldtstr. 25 A, 21509 Glinde
partner badge
Partnerschaft
Privat von Claudia PolikDein Kontakt
Keine Telefonnummer hinterlegt
Keine Telefonnummer hinterlegt
Online-ID: 2npsl5f
Referenznummer: 427433
ohne-makler.net - Immobilien selbst vermarkten
ohne-makler.net - Immobilien selbst vermarkten
Nachricht hinzufĂĽgen
Mit der Nutzung der oben angegebenen Telefonnummer oder durch Klicken auf „Kontaktieren“ akzeptierst Du die Allgemeinen Nutzungsbedingungen, denen Du jederzeit widersprechen kannst. Weitere Informationen zum Datenschutz
MediumRectangleTop
MediumRectangleBottom
MediumRectangleTop
Wie zufrieden bist du mit dieser Seite (nicht mit der Immobilie selbst)?