Version: 8.24.0Navigation überspringen
3.950 €
5 Zimmer  •  158,5 m²  •  54 m² Grundstück
Immowelt logo

Reihenmittelhaus zur Miete - Erstbezug
3.950 €
5 Zimmer  •  158,5 m²  •  54 m² Grundstück

Wohnen auf höchstem Niveau in ruhiger Lage - Exklusive Neubau-Stadtvilla in Lokstedt

Diese stilvolle Stadtvilla überzeugt durch ihre durchdachte Raumgestaltung über mehrere Ebenen, die höchsten Wohnkomfort mit funktionaler Eleganz verbindet.

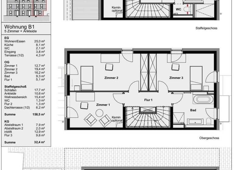
Über einen einladenden Eingangsbereich gelangen Sie in einen großzügig konzipierten, offenen Wohn- und Essbereich, der durch seine Weitläufigkeit und Helligkeit besticht. Die angrenzende, moderne Küche mit exklusiver Einbauküche und erstklassigen Markengeräten fügt sich harmonisch in das Raumkonzept ein. Der Wohnbereich öffnet sich zu einer privaten Terrasse - ein idealer Rückzugsort für entspannte Stunden im Freien. Ein separates Gäste-WC rundet die Aufteilung dieser Etage ab.
Die erste Etage beherbergt drei großzügige Zimmer, die vielfältige Nutzungsmöglichkeiten bieten - vom Kinderzimmer über das Home-Office bis zum Gästezimmer. Ein modern gestaltetes Familienbad mit komfortabler Ausstattung vervollständigt diese Wohnebene.

Das exklusive Staffelgeschoss ist ganz der Entspannung und dem persönlichen Rückzug gewidmet. Hier erwartet Sie ein großzügiges Master-Schlafzimmer mit direktem Zugang zu einer eindrucksvollen Dachterrasse - perfekt, um den Tag mit einem atemberaubenden Ausblick zu beginnen oder ausklingen zu lassen. Eine komfortable Ankleide mit maßgefertigten Einbauschränken bietet großzügigen Stauraum und erfüllt mit dem angrenzenden exquisiten Badezimmer höchste Ansprüche an Wohnqualität und Privatsphäre.

Im Untergeschoss stehen Ihnen zwei praktische Abstellräume sowie ein Hauswirtschaftsraum zur Verfügung, die ausreichend Platz für Vorräte, technische Anlagen und den Alltag bieten. Von hier aus gelangen Sie bequem direkt in die Tiefgarage, wo Ihnen neben Stellplätzen auch ein praktischer Fahrradkeller zur Verfügung steht.

Eine Immobilie, die Wohnkultur, Funktionalität und Lebensqualität auf einzigartige Weise vereint.

Merkmale

  • Bezug: nach Vereinbarung
  • 54 m² Grundstück
  • Keller
  • Tiefgarage
  • Balkon
  • Terrasse
Weitere Stadthäuser verfügbar!
In diesem Projekt stehen noch weitere Stadthäuser zur Verfügung. Details finden Sie unter: https://willinks-park-the-village.de

- Kunststofffenster mit hochwertiger 3-fach-Isolierverglasung

- Moderne Fußbodenheizung für angenehme Strahlungswärme

- Hochwertige Einbauküche mit erstklassigen Markengeräten

- Großzügige Terrasse, Balkon und exklusive Dachterrasse

- Tiefgaragenstellplatz für 150€ verfügbar

- Luxuriöses Badezimmer

- Komfortable Ankleide im Master-Bereich

- Modernes Familienbad sowie Gäste-WC

- Kontrollierte Wohnraumlüftung

- Zwei Abstellräume und Hauswirtschaftsraum im Keller

- Hochwertige Bodenbeläge

Grundrisse

Grundrisse
1 / 2

Realisiere Dein Projekt

Bausubstanz und Energie

Der Anbieter hat keine Informationen zum Energieverbrauch bereit gestellt.
  • Baujahr2025
  • Zustand der ImmobilieErstbezug
  • HeizungsartFußbodenheizung
  • EnergieträgerGas, Luft-/Wasser-Wärmepumpe
Immowelt logo

Mietkosten

Warmmiete
4.425 €
Kaltmiete
24,92 €/m²
3.950 €
Nebenkosten
475 €
Zusätzliche Kosten
Miete pro Stellplatz
150 €
Kaution
11850 €
Weitere Preisinformationen
1 Tiefgaragenstellplatz, Miete: 150,00 EUR

Lage

address-icon
LokstedtHamburg / Lokstedt (22529)
Der Anbieter hat die genaue Adresse nicht freigegeben
In einer der begehrtesten Wohnadressen des charmanten Stadtteils Lokstedt gelegen, vereint diese außergewöhnliche Immobilie urbane Lebensqualität mit der Ruhe einer idyllischen, parkähnlichen Umgebung. Die Lage zeichnet sich durch ihren charaktervollen "Laid-Back"-Charakter aus - eine Insel der Gelassenheit inmitten der Hansestadt, fernab der Hektik benachbarter Quartiere .

Das Objekt befindet sich in unmittelbarer Nähe zu einer historischen Parkanlage, die einst als privates Refugium wohlhabender Hamburger Kaufleute angelegt wurde und heute als grüne Oase mit naturbelassenem Biotop-Charakter zum Verweilen einlädt .

Diese privilegierte Adresse profitiert von der exzellenten Lage zwischen den lebendigen Stadtteilen Eppendorf und Eimsbüttel und vereint die Vorzüge beider Welten: gehobenes Wohnen mit Understatement, Urbanität mit Naturverbundenheit .

Lokstedt besticht durch vielfältige Freizeitmöglichkeiten und eine entspannte Atmosphäre, die von grünen Parks und ruhigen Wohnstraßen geprägt wird. Das ganze Jahr über präsentiert sich der Stadtteil lebendig - mit charmanten Geschäften, Restaurants, Cafés und kulturellen Angeboten in fußläufiger Entfernung. Die Wohnstraßen werden tagsüber durch örtliche Schulen belebt, während Abende und Wochenenden von behaglicher Nachbarschaftsatmosphäre geprägt sind.

Die infrastrukturelle Ausstattung lässt keine Wünsche offen. Sämtliche Einrichtungen des täglichen Bedarfs sind bequem erreichbar, während exzellente Verkehrsanbindungen die Hamburger Innenstadt, den Flughafen und überregionale Verbindungen komfortabel erschließen .

Für Familien bietet die Umgebung ein vielfältiges Bildungsangebot sowie zahlreiche Freizeitmöglichkeiten, von Hagenbecks Tierpark bis zum weitläufigen Niendorfer Gehege .

Eine Wohnlage, die Exklusivität und Lebensqualität auf höchstem Niveau vereint - ideal für jede Altersgruppe.

Weitere Informationen

Sonstiges Vielen Dank für Ihr Interesse an der von uns angebotenen Immobilie.

Bitte haben Sie Verständnis dafür, dass wir unseren Auftraggebern Diskretion zugesagt haben und Sie daher um die Angabe Ihrer vollständigen Kontaktdaten inkl. Ihrer Telefonnummer bitten müssen.

Gern senden wir Ihnen anschließend ein Exposé zu.
Folgen Sie uns auf Instagram unter @auaimmo! Erfahren Sie von neuen Objekten, wie z.B. von der "Immobilie der Woche" oder profitieren Sie von unseren Tipps und Tricks für Eigentümer und Suchende. Stichworte Nutzfläche: 32,40 m², Gesamtfläche: 190,90 m², Anzahl der Schlafzimmer: 3, Anzahl der Badezimmer: 2, Anzahl der separaten WCs: 1, Anzahl Balkone: 1, Anzahl Terrassen: 1, Balkon-Terrassen-Fläche: 10,50 m²

Weitere Services

Lust auf eine Besichtigung?
Eine Frage zur Immobilie?
Nachricht hinzufügen
Mit der Nutzung der oben angegebenen Telefonnummer oder durch Klicken auf „Kontaktieren“ akzeptierst Du die Allgemeinen Nutzungsbedingungen, denen Du jederzeit widersprechen kannst. Weitere Informationen zum Datenschutz

Über den Anbieter

Lindenstr. 29, 21335 Lüneburg
partner badge
6 Jahre Partnerschaft
Frau Nadine KierspelDein Kontakt
Online-ID: 2ns8b5p
Referenznummer: 242251-13-9
ÄRZTE & APOTHEKER IMMOBILIEN
ÄRZTE & APOTHEKER IMMOBILIEN
Bewertung: 4,5 von 5 Sternen
Nachricht hinzufügen
Mit der Nutzung der oben angegebenen Telefonnummer oder durch Klicken auf „Kontaktieren“ akzeptierst Du die Allgemeinen Nutzungsbedingungen, denen Du jederzeit widersprechen kannst. Weitere Informationen zum Datenschutz
Wie zufrieden bist du mit dieser Seite (nicht mit der Immobilie selbst)?