Version: 8.25.1Navigation überspringen
16EAST Real Estate GmbH
159.000 €
2 Zimmer  •  53,5 m²  •  1. Geschoss

Wohnung zum Kauf
159000 €
2.975 €/m²
2 Zimmer  •  53,5 m²  •  1. Geschoss

Charmante Altbauwohnung zum Renovieren - ruhige Lage & optimale Aufteilung, Nähe Bahnhof Hernals

In einem charmanten Altbauhaus in der Effingergasse stehen insgesamt 24 Wohnungen zum Verkauf. Die Einheiten befinden sich in unterschiedlichen Zuständen (teilsaniert bzw. sanierungsbedürftig) und bieten dadurch viel Potenzial für individuelle Gestaltung.

Die Liegenschaft vereint eine attraktive Lage mit dem besonderen Flair eines liebevoll renovierten Altbauhauses. Der Eingangsbereich wurde sorgfältig restauriert und verbindet klassische Details, wie schmiedeeiserne Geländer, harmonisch mit moderner Beleuchtung. Das stilvolle Stiegenhaus mit massivem Holzgeländer und originalen Stufen vermittelt ein elegantes, zeitloses Ambiente und unterstreicht den besonderen Charakter des Hauses.

Highlights:

* 24 Wohnungen mit 1-3 Zimmern
* Wohnflächen von ca. 23 m² bis 84 m²
* Gasheizung
* Neu renovierte Allgemeinbereiche
* Kellerabteile vorhanden
* Ruhige Lage

Ideal für Eigennutzer und Anleger, die das Potenzial eines klassischen Altbaus schätzen.

 

INFOS ZUR WOHNUNG

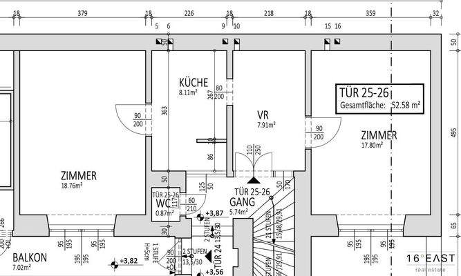
Die renovierungsbedürftige 2-Zimmer-Wohnung befindet sich im 1. Stock ohne Lift, im hintern, sehr ruhigen Teil es Hauses. Sie verfügt über einen großen Vorraum, eine separate Küche und zwei weitere Zimmer und muss von Grund auf saniert werden (Boden, Küche, Bad...).
Ein santiertes Kellerabteil ist der Wohnung zugeordnet.

* WOHNFLÄCHE: ca. 53,45 m²
* ZIMMER: 2
* KELLERABTEIL: Ja

Die Wohnung befindet sich in einem renovierungsbedürfigen Zustand und wird wie sie liegt und steht verkauft.

 

VERKEHRSANBINDUNG / INFRASTRUKTUR:

* Bahnhof Wien Hernals
* Wien Hernals Straßenbahn 43 & Hernals Wattgasse 2, 9
* Bus 44A, N43
 

KAUFPREIS: EURO 159.000,-- 

Provision: 3% des Kaufpreises zzgl. 20% USt.

Kaufvertragserrichter: EnginDeniz Rechtsanwälte, Mag. Lukas Fuhrmann (1,5% zzgl. Ust. und Barauslagen, mindestens jedoch netto € 3.000,-).

 

MONATLICHE KOSTEN LAUT VORSCHREIBUNG:
Betriebskosten ca. € 135,32 netto

 

Überzeugen Sie sich selbst von diesem einzigartigen Angebot und vereinbaren Sie noch heute einen Besichtigungstermin. Wir freuen uns auf Ihre Anfrage!

Für alle Angaben sowie die Pläne, welche zur Veranschaulichung dienen, übernehmen wir keinerlei Haftung.

In Entsprechung des FAGG (Fern- und Auswärtsgeschäfte-Gesetz) und des VRUG (Verbraucherrechte-Richtlinie-Umsetzungsgesetz) ist es uns leider nur mehr möglich Termine nach Erhalt einer schriftliche Anfrage mit vollständigen Kontaktabgaben (Kontaktformular) zu vereinbaren, dies gilt ebenso für die Herausgabe relevanter Informationen wie z.B. der Lage. Sehr gerne sind wir auf diesem Wege bereit, uns um sämtliche Anliegen rasch und kompetent zu kümmern.

Wir weisen darauf hin, dass zwischen dem Vermittler und dem zu vermittelnden Dritten ein familiäres oder wirtschaftliches Naheverhältnis besteht.

Der Vermittler ist als Doppelmakler tätig.

Infrastruktur / Entfernungen

Gesundheit
Arzt <500m
Apotheke <500m
Klinik <1.500m
Krankenhaus <1.000m

Kinder & Schulen
Schule <500m
Kindergarten <500m
Universität <2.000m
Höhere Schule <1.500m

Nahversorgung
Supermarkt <500m
Bäckerei <500m
Einkaufszentrum <1.000m

Sonstige
Geldautomat <500m
Bank <500m
Post <500m
Polizei <1.000m

Verkehr
Bus <500m
U-Bahn <500m
Straßenbahn <500m
Bahnhof <500m
Autobahnanschluss <4.500m

Angaben Entfernung Luftlinie / Quelle: OpenStreetMap

Merkmale

  • Bezug: ab sofort
  • 1. Geschoss

Grundrisse

Grundrisse
1 / 1

Realisiere Dein Projekt

Bausubstanz und Energie

Heizwärmebedarf (HWB)

E

Gesamtenergieeffizienz (fGEE)

E
  • Baujahr1900
  • Zustand der ImmobilieAltbau (bis 1945), Massivhaus
  • HeizungsartEtagenheizung
  • EnergieträgerGas
MediumRectangleTop

Preisdetails

Kaufpreis
159000 €
2.974,74 €/m²
Provision für Käufer
3% des Kaufpreises zzgl. 20% USt.

Lage

address-icon
Wien,Ottakring (1160)
Die Altbauwohnungen befindet sich in einer ruhigen und dennoch gut angebundenen Wohnlage, in einem der charmantesten Bezirke Wiens. Die Gegend bietet zahlreiche Cafés, Restaurants und Einkaufsmöglichkeiten. Auch die Anbindung an den öffentlichen Verkehr ist ausgezeichnet: In der Nähe befinden sich U-Bahn-Stationen und Straßenbahnlinien, die eine schnelle Erreichbarkeit des Stadtzentrums garantieren.

Weitere Informationen

Stichworte Nutzfläche: 53,83 m², Bundesland: Wien, 5 Etagen

Weitere Services

Lust auf eine Besichtigung?
Eine Frage zur Immobilie?
Nachricht hinzufügen
Mit der Nutzung der oben angegebenen Telefonnummer oder durch Klicken auf „Kontaktieren“ akzeptierst Du die Allgemeinen Nutzungsbedingungen, denen Du jederzeit widersprechen kannst. Weitere Informationen zum Datenschutz

Über den Anbieter

Fröschelgasse 22/3, 1190 Wien
partner badge
Partnerschaft
Frau Barbara BacovskyDein Kontakt
Online-ID: 24JD7TW27WBK
Referenznummer: OBGC202410211414095663629ce5827
16EAST Real Estate GmbH
16EAST Real Estate GmbH
Nachricht hinzufügen
Mit der Nutzung der oben angegebenen Telefonnummer oder durch Klicken auf „Kontaktieren“ akzeptierst Du die Allgemeinen Nutzungsbedingungen, denen Du jederzeit widersprechen kannst. Weitere Informationen zum Datenschutz
MediumRectangleTop
MediumRectangleBottom
MediumRectangleTop
Wie zufrieden bist du mit dieser Seite (nicht mit der Immobilie selbst)?