

Wohnung zum Kauf - Erstbezug • provisionsfrei314235 €5.552 €/m²2 Zimmer • 56,6 m² • frei ab 30.06.2027
314235 €
5.552 €/m²
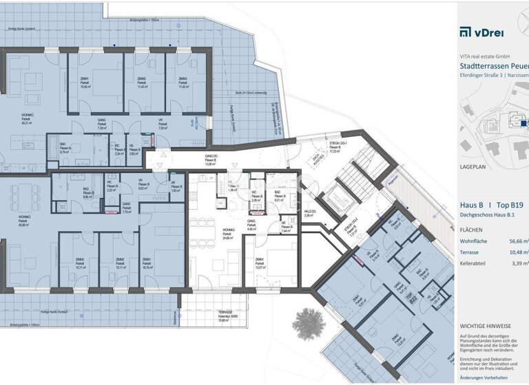
2 Zimmer • 56,6 m² • frei ab 30.06.2027
Stadtterrassen Peuerbach ** BAUBEGINN ERFOLGT! **
Merkmale
- frei ab 30.06.2027
- Dachgeschoss
Grundrisse
Grundrisse
1 / 2
Realisiere Dein Projekt
Bausubstanz und Energie
Heizwärmebedarf (HWB)
B
Gesamtenergieeffizienz (fGEE)
A+
- Baujahr2026
- Zustand der ImmobilieErstbezug
Preisdetails
Kaufpreis
314235 €
5.551,86 €/m²
Provision für Käufer
provisionsfrei; Provision bezahlt der Abgeber.
Lage

Peuerbach (4722)
Weitere Informationen
Weitere Services
Lust auf eine Besichtigung?
Eine Frage zur Immobilie?
Über den Anbieter
IMMOcontract Immobilien Vermittlung GmbHMaklerbüro
Schnirchgasse 17, 1030 WIEN
Herr Klaus EggerDein Kontakt
Online-ID: 26T22VM9F3A7
Referenznummer: OBGC2025082613521555386ccf487d0

IMMOcontract Immobilien Vermittlung GmbH
Bewertung: 3,5 von 5 Sternen
Wie zufrieden bist du mit dieser Seite (nicht mit der Immobilie selbst)?

