Wohnung 93m2 zum Kauf - Sibensko-Kninska, Primosten
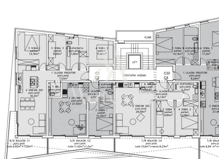
Die Wohnung C1 befindet im zweiten Stock eines modernen Wohngebäudes und zeichnet sich durch einen funktionalen Grundriss sowie großzügige Außenflächen aus. Die netto nutzbare Fläche beträgt 93,76 m².
Grundriss und Raumaufteilung:
Eingangsbereich - 7,53 m²
Schlafzimmer 1 - 13,76 m²
Schlafzimmer 2 - 11,45 m²
Schlafzimmer 3 - 8,65 m²
Badezimmer 1 - 7,56 m²
WC - 2,63 m²
Wohnzimmer mit Küche und Essbereich - 30,3 m²
Überdachter Balkon - 6,82 m²
Nicht überdachter Balkon - 7,52 m²
Abstellraum - 4,6 m²
Garagenstellplatz - 13,5 m²
Von den Balkonen genießt man einen freien Blick auf das Meer, was der Immobilie zusätzlichen Wert verleiht und sie ideal für das ganzjährige Leben im mediterranen Ambiente macht.
Technische Merkmale und Ausstattung:
ALU-Fenster mit IZO-Verglasung, LOW-E-Beschichtung und Argonfüllung
Elektrische ALU-Rollläden mit Wärmedämmung und integrierten Insektenschutzgittern
Einbruch- und brandsichere ALU-Eingangstüren (schall- und wärmegedämmt)
Multi-Split-Inverter-Klimaanlagen mit verdeckten Inneneinheiten
Elektrische Fußbodenheizung in den Badezimmern
ETICS-Fassadensystem mit 10 cm Steinwolle-Dämmung
LED-Beleuchtung in allen Räumen
Vorbereitung für Elektroauto-Ladestationen in der Garage
Aufzug verbindet alle Etagen des Gebäudes
Das Gebäude bietet direkten Zugang zur Tiefgarage per Aufzug. Alle Wohnungen sind nach Süden ausgerichtet und bieten das ganze Jahr über viel natürliches Licht.
Verfügbare Wohnungen im Projekt:
A1 - 375.000 €
A2 - 265.000 €
A3 - 375.000 €
A4 - 330.000 €
B1 - 390.000 €
B3 - 320.000 €
C2 - 245.000 €
D1 - 790.000 €
D2 - 670.000 €
Lage und Entfernungen:
Zentrum von Primosten und Strand: 750 m
Marina Kremik: 2 km
Flughafen Split: ca. 35 km
Stadt Sibenik: ca. 25 km
Für weitere Informationen oder zur Vereinbarung eines Besichtigungstermins kontaktieren Sie uns gerne.