Version: 8.22.6Navigation ĂĽberspringen
J&P Immobilienmakler GmbH
6,97 €
2.125,2 m² Lagerfläche

Halle/Industriefläche zur Miete
6,97 Euro pro Quadratmeter
2.125,2 m² Lagerfläche

Exklusiver und freistehender Firmenstandort mit Büro, Lager und Stellplätzen zu mieten.

Flächen- und Kostenübersicht
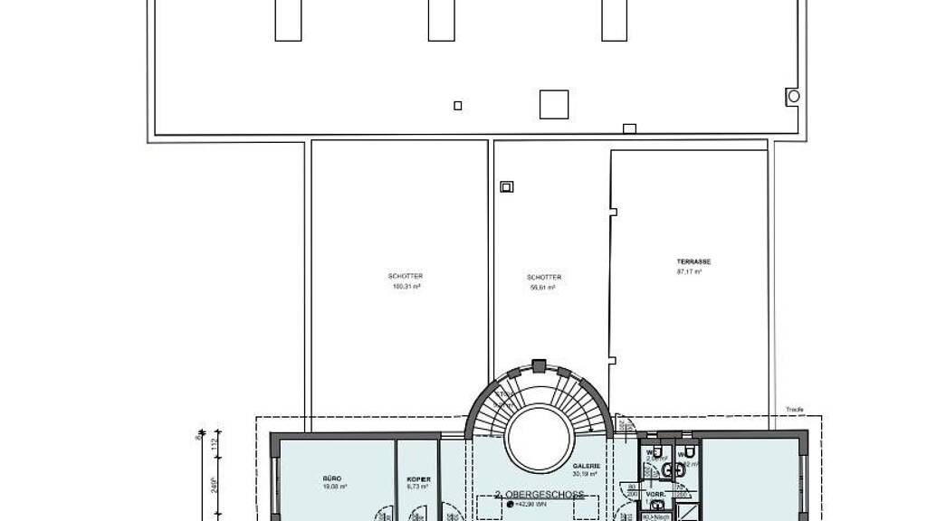
Geschosse: EG - 2.OG

Fläche gesamt inkl. Lager: 2.125 m²
Bürofläche 1.237,00 m²
Lagerfläche 888,18 m²
Terrassenfläche 87,00 m²
Grünfläche 703 m²

Miete netto/m² (Bürofläche plus Lagerfläche): € 6,50
BK netto /m²: € 1,00

Miete netto/m² Abstellplätze: Pauschal Netto € 1.000

Terrasse und Grünflächen plus eine kleine Einlegerwohnung können untentgeltlich genutzt werden.

Allgemeine Objektbeschreibung
Zur Vermietung gelangt ein zweigeschoĂźiges Betriebsobjekt im SĂĽden von Wien, in der KolpingstraĂźe 21, in einer ausgezeichneten Industrie- und Gewerbelage des 23. Bezirks.
Die Liegenschaft teilt sich in Büroräumlichkeiten mit rd. 1.237 m² und einer internen Lagerhalle mit ca.888 m² Nutzfläche. Eine uneinsehbare ca. 87 m² große Dachterrasse ist vom oberen Geschoß aus begehbar. Vor dem Gebäude gibt es Grünflächen, sowie ausreichend PKW Stellplätze im Freien.

Eine moderne Lagerhalle inklusive Zufahrt, Rolltor, Hebebühne und Lastenlift bis in die oberen Geschoße ist mit dem Bürohaus verbunden und sowohl vom Gebäudeinneren, als auch vom Freien begehbar.

Mietdauer befristet
Provision: 3 BMM
Bezug: ab sofort

Energieausweis
HWB: 102,23 kWh/m².a

Lage
Die Betriebszone Inzersdorf umfasst die traditionellen Draschegründe entlang der Laxenburger Straße sowie der Süd-Autobahn A2. Am Rande der Betriebszone befindet sich der Güterterminal Wien-Inzersdorf der ÖBB, welcher direkt über die Schnellstraße S1 erreichbar ist. Durch die größtenteils gute Abgrenzung zur Wohnbebauung sowie die hervorragende Erschließung durch das hochrangige Verkehrsnetz eignet sich die Betriebszone bestens für Betriebstätigkeiten jeglicher Art Die Autobahnauffahrt „Knoten Vösendort ist in ca. 5 Minuten Fahrzeit erreichbar. Nebst der guten Anbindung an die öffentlichen Verkehrsmittel, bietet das Objekt Parkplätze an, sodass es sowohl mittels Individual-, als auch öffentlichem Verkehr gut erreichbar ist.

Ă–ffentliche Verkehrsanbindung

Bus: 67A, 67B, 66A
S-Bahn: S60
U-Bahn U6 Alterlaa (ca. 15 Minunten)

Individualverkehr: A2/A21, S1 Anschlussstelle Vorarlberger Allee

Ansprechpartner:
Frau Kathrin Fercher
Tel.: +43 (1) 596 60 20 0

Mehr Objekte finden Sie unter:
www.jpi.at

Wir haben was fĂĽr Sie

Wir weisen darauf hin, dass wir mit dem Abgeber in ständiger Geschäftsbeziehung stehen und schon aus diesem Grund ein wirtschaftliches Naheverhältnis vorliegt.

Merkmale

  • Bezug: sofort

Realisiere Dein Projekt

Bausubstanz und Energie

Heizwärmebedarf (HWB)

D

Gesamtenergieeffizienz (fGEE)

C
  • Zustand der ImmobilieNeubau
MediumRectangleTop

Mietkosten

Gesamtmiete
20.326,44 €
Nettokaltmiete
6,97 €/m²
14.813,54 €
Betriebskosten
2.550,19 €
Umsatzsteuer
3.387,74 €
Provision fĂĽr Mieter
3 BMM
Kaution
keine Angabe
Weitere Preisinformationen
Nettokaltmiete: 14.813,54 EUR

Lage

address-icon
Kolpingstraße 21, Wien (1230)

Weitere Informationen

Stichworte Nutzfläche: 2.125,16 m², Bürofläche: 1.237,00 m²

Weitere Services

Lust auf eine Besichtigung?
Eine Frage zur Immobilie?
Nachricht hinzufĂĽgen
Mit der Nutzung der oben angegebenen Telefonnummer oder durch Klicken auf „Kontaktieren“ akzeptierst Du die Allgemeinen Nutzungsbedingungen, denen Du jederzeit widersprechen kannst. Weitere Informationen zum Datenschutz

Ăśber den Anbieter

Lehargasse 7, 1060 WIEN
partner badge
10 Jahre Partnerschaft
Frau Kathrin Fercher
Frau Kathrin FercherDein Kontakt
Online-ID: 2gwvu5g
Referenznummer: 101/17733
J&P Immobilienmakler GmbH
title
J&P Immobilienmakler GmbH
Nachricht hinzufĂĽgen
Mit der Nutzung der oben angegebenen Telefonnummer oder durch Klicken auf „Kontaktieren“ akzeptierst Du die Allgemeinen Nutzungsbedingungen, denen Du jederzeit widersprechen kannst. Weitere Informationen zum Datenschutz
MediumRectangleTop
MediumRectangleBottom
MediumRectangleTop
Wie zufrieden bist du mit dieser Seite (nicht mit der Immobilie selbst)?