Version: 8.22.4Navigation ĂĽberspringen
1.085.000 €
793 m² Grundstück
Immowelt logo

GrundstĂĽck zum Kauf
1085000 €
1.368 €/m²
793 m² Grundstück

Attraktives Bauträgergrundstück mit Entwicklungspotenzial!

Ein attraktives Grundstück in guter Lage im 23. Bezirk, in der Nähe des Riverside und der Breitenfurter Straße, steht zum Verkauf.

Die Gesamtfläche beträgt 793 m² mit einer Breite von 20 Metern und einer Länge von 40 Metern. Aktuell befindet sich auf dem GrundstĂĽck ein Altwohnhaus, das abgerissen werden kann, um Platz fĂĽr ein neues Bauvorhaben zu schaffen. 

Flächenwidmung: Wohngebiet, Bauklasse I, offene Bauweise

Entwicklungspotenzial und Architektenstudie:

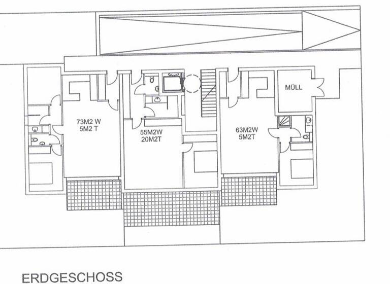
Eine Architektenstudie liegt vor und unterstreicht das Entwicklungspotenzial des GrundstĂĽcks. Gemäß dieser Studie ist es möglich, ein modernes Gebäude ĂĽber drei Obergeschosse und ein Dachgeschoss zu realisieren.

* ca. 790 m² Netto-Wohnfläche
* ca. 130 m² Terrassenfläche
* ca. 290 m² Gartenfläche
* 10 Wohneinheiten
* 8 Stellplätzen

Kaufpreis: EUR 1.085.000,- 

Lage: Das Objekt befindet sich in einem bereits etablierten Wohnviertel im 23. Bezirk von Wien. Sie zeichnet sich durch ihre erstklassige Anbindung an das Herz der Wiener Innenstadt aus und liegt in unmittelbarer Nähe zu diversen Annehmlichkeiten wie Bildungseinrichtungen, Einkaufsgelegenheiten und öffentlichen Verkehrsmitteln. Zudem ist die Standortlage äuĂźerst gĂĽnstig, lediglich 1 km oder eine 13-minĂĽtige FuĂźwanderung vom Riverside und der S-Bahn Wien Liesing entfernt.

Interesse geweckt?

Kontaktieren Sie uns gerne fĂĽr weitere Informationen oder eine Besichtigung.

Telefon: +43 699 1929 3025
E-Mail: anfragen@immoagency.at

Hinweis gemäß Energieausweisvorlagegesetz: Ein Energieausweis wurde vom Eigentümer bzw. Verkäufer, nach unserer Aufklärung über die generell geltende Vorlagepflicht, sowie Aufforderung zu seiner Erstellung noch nicht vorgelegt. Daher gilt zumindest eine dem Alter und der Art des Gebäudes entsprechende Gesamtenergieeffizienz als vereinbart. Wir übernehmen keinerlei Gewähr oder Haftung für die tatsächliche Energieeffizienz der angebotenen Immobilie.

Wir weisen darauf hin, dass zwischen dem Vermittler und dem zu vermittelnden Dritten ein familiäres oder wirtschaftliches Naheverhältnis besteht.

Der Vermittler ist als Doppelmakler tätig.

Merkmale

  • 793 m² GrundstĂĽck

Grundrisse

Grundrisse
1 / 6

Realisiere Dein Projekt

Bausubstanz und Energie

Der Anbieter hat keine Informationen zu Energieverbrauch oder Zustand der Immobilie bereit gestellt.
Immowelt logo

Preisdetails

Kaufpreis
1085000 €
1.368,22 €/m²
Provision für Käufer
3% des Kaufpreises zzgl. 20% USt.

Lage

address-icon
Wien (1230)
Der Anbieter hat die genaue Adresse nicht freigegeben

Weitere Informationen

Stichworte Bundesland: Wien

Weitere Services

Lust auf eine Besichtigung?
Eine Frage zur Immobilie?
Nachricht hinzufĂĽgen
Mit der Nutzung der oben angegebenen Telefonnummer oder durch Klicken auf „Kontaktieren“ akzeptierst Du die Allgemeinen Nutzungsbedingungen, denen Du jederzeit widersprechen kannst. Weitere Informationen zum Datenschutz

Ăśber den Anbieter

Immo Agency GmbH
Immo Agency GmbHMaklerbĂĽro
Josefstädter Straße 43-45/1a, 1080 WIEN
partner badge
10 Jahre Partnerschaft
IMMO AGENCYDein Kontakt
Online-ID: 2mkxm5b
Referenznummer: OBGC2025111508230918312d837a738
Immo Agency GmbH
Immo Agency GmbH
Bewertung: 5 von 5 Sternen
Nachricht hinzufĂĽgen
Mit der Nutzung der oben angegebenen Telefonnummer oder durch Klicken auf „Kontaktieren“ akzeptierst Du die Allgemeinen Nutzungsbedingungen, denen Du jederzeit widersprechen kannst. Weitere Informationen zum Datenschutz
Wie zufrieden bist du mit dieser Seite (nicht mit der Immobilie selbst)?