Supermarkt in Italien - Nähe Bologna - Kapitalanlage mit guter Rendite
Supermarkt- Erdgeschoß
Angaben laut Kataster: Gemeinde Sasso Marconi (BO) – Katasterblatt 62 – Parzelle 441 Unterabteilung 18 - Kategorie C/1
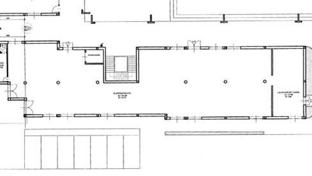
Die Immobilieneinheit besteht aus einem großen ungeteilten “open space”, die die Verkaufsfläche des Supermarkts darstellt, an dessen einem Ende das Verwaltungsbüro mit Personaltoiletten und am anderen ein Raum liegt, der ursprünglich zur Bearbeitung von Fleisch eingerichtet war, aber aktuell als Lager des Supermarktes genutzt wird. Es gibt zwei Vorräume mit Schwingtüren als Kunden Ein- und Ausgang sowie drei Notausgänge, die mit Alarm versehen sind, die von Innen Richtung Fluchtweg aufgedrückt werden können.
Die Einheit ist direkt mit dem Untergeschoß durch einen internen Lastenaufzug verbunden, der das Fassungsvermögen und Lasttragkraft für den Transport von Palettenwagen hat, um die Ware von Hand transportieren zu können.
Der Zugang zum Supermarkt wird über den davor liegenden öffentlichen Parkplatz und die öffentlichen und privaten Bürgersteige gewährleistet, die sich um den Wohnkomplex herum befinden, in dem der Supermarkt angesiedelt ist.
Der Zugang ist behindertengerecht.
Realisiere Dein Projekt
Bausubstanz und Energie
Der Anbieter hat keine Informationen zum Energieverbrauch bereit gestellt.
Baujahr1984
Preisdetails
Kaufpreis
350000 €350.000 €
Provision für Käufer
3,57 % inkl. MwSt
Lage
Sasso Marconi (40037)
Der Anbieter hat die genaue Adresse nicht freigegeben