
HL IMMO-INVEST
Herr Ulrich Lübeck
016 ···
Nr. anzeigenPreise & Kosten
Provision für Käufer
3,57 % inkl. gesetzl. MwSt. aus dem tatsächlichen Kaufpreis.
Provision ist fällig nach Abschluss eines notariellen Kaufvertrages.
Lage
Makrolage:
Dorfen liegt im Landkreis Erding und gehört zur Metropolregion München. Die Stadt profitiert von der hervorragenden Anbindung an das wirtschaftsstarke Münchener Umland sowie an die Städte Landshut, Erding und Mühldorf. Durch die Nähe zum Flughafen München und die zentrale Lage zwischen A94 und B15 zählt...
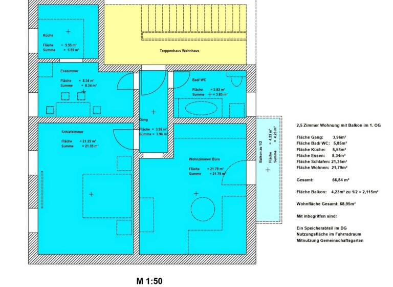
Die Wohnung
Wohnungslage
1. Geschoss
Bezug
28.02.2026
Wohnanlage
Energie & Heizung
Warum sehe ich diese Anzeige? – Du siehst diese Anzeige basierend auf Ihrer Navigation auf unserer Website und den Suchkriterien, die du verwendet hast.
Gebäudetyp
Wohngebäude
Effizienzklasse
C
Weitere Energiedaten
Energieträger
Gas
Heizungsart
Zentralheizung
Details
Objektbeschreibung
Diese attraktive Eigentumswohnung befindet sich in einer kleinen, ruhigen Wohnanlage mit insgesamt nur sieben Einheiten. Das Gebäude wurde in Massivbauweise errichtet. Die angebotene Wohnung ist die letzten Jahren umfassend renoviert worden. Sowohl die Immobilie als auch die Gemeinschaftsanlagen befinden sich in einem...
Dokumente
Anbieter der Immobilie
HL IMMO-INVEST
Ringgraben 24, 84130 Dingolfing
Online-ID: 2mg575l
Finde Angebote wie dieses
Hier geht es zu unserem Impressum, den Allgemeinen Geschäftsbedingungen, den Hinweisen zum Datenschutz und nutzungsbasierter Online-Werbung.