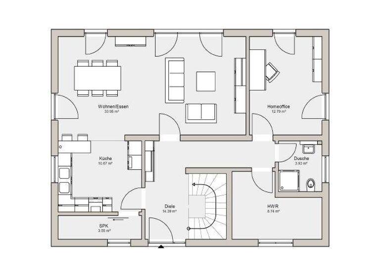
Willkommen zu Hause! Im Architektenhaus Taro erwarten Sie 153 m voller Wohnkomfort. Das charmante Satteldachhaus bietet eine offene Küche mit angrenzender Speisekammer. Zudem schließt sich hier der offene Wohn-/Essbereich an mit über 30 m . Vollendet wird das Erdgeschoss mit einem Home-Office, einem Duschbad und dem Hauswirtschaftraum. Hier werden Träume wahr!
Das Dachgeschoss von Satteldachhaus Taro gestaltet sich ebenfalls großzügig - schon der Flur bietet Platz für eine Leseecke unter einem Dachfenster. Außerdem finden Sie hier zwei Kinderzimmmer, ein Elternschlafzimmer mit Ankleide und ein Familienbad.
Dieses Haus wird nach Ihren individuellen Wünschen geplant und ausgestattet!
+ Massivhaus im Sinne der Ausstattungsbeschreibung "Nestbau" + Zukunftsorientierte Energieausstattung in Form einer Luft-Wasser-Wärmepumpe und Fußbodenheizung
Beste Markenausstattung in jedem Kern-Haus:
+ Fenster mit 3-Scheiben-Wärmeschutzverglasung und elektrischen Rollläden + Dacheindeckung mit Betondachsteinen von Braas mit "Star-Oberfläche" + Hochwertiger Kunstharz-Außenputz + Badausstattung mit Badewanne und flacher Duschwanne + Fliesen in Bad und WC + Haustür mit Sicherheitsverriegelung + Innentüren der Marke Herholz mit Edelstahldrückern + Stahl-Holz-Treppe mit individueller Farbgestaltungsmöglichkeit + Elektroausstattung inklusive Klingelanlage + Rauchmelder für Ihre Sicherheit + Einsatz regionaler Handwerksbetriebe + Blower-Door-Test
Grundrisse
Grundrisse
1 / 2
Realisiere Dein Projekt
Bausubstanz und Energie
Energieausweis
A+
Baujahr2026
Zustand der ImmobilieNeubau, Projektiert
HeizungsartZentralheizung: Fußbodenheizung
Preisdetails
Kaufpreis
421600 €421.600 €
2.755,56 €/m²
Provision für Käufer
provisionsfrei
Geschätzte Gesamtkosten
451.112 €1
Kaufpreis
421.600 €
Kaufnebenkosten
29.512 €
2
Notarkosten (1,5%)
6.324 €
Grunderwerbsteuer (5%)
21.080 €
Grundbucheintrag (0,5%)
2.108 €
1Der angezeigte Wert ist eine automatisch berechnete Schätzung von immowelt.
2Bei den Angaben handelt es sich um ortsübliche Werte. Individuelle Kosten können abweichen.
Lage
Klausen (54524)
Der Anbieter hat die genaue Adresse nicht freigegeben
Das Baugrundstück befindet sich in Klausen in der Moseleifel und gehört zur Verbandsgemeinde Wittlich-Land.
Klausen ist durch die 1 km entfernte Anschlussstelle Salmtal an die Autobahn A1 angeschlossen. Die Landesstraßen L 47 (von Trier nach Machern) und L 50 (von Piesport nach Binsfeld) verlaufen direkt durch den Ort und stellen die Verbindung zu den Nachbargemeinden her.
Von hier aus gelangt man fussläufig in nur wenigen Minuten zu allen wichtigen Einrichtungen, sei es der Besuch der Wallfahrtskirche, der Gastronomie, des Kindergartens oder auch des Dorfladens.
Ein Bahnhof ist im Nachbarort Salmtal (3 km) vorhanden. Es besteht eine Busverbindung nach Wittlich. Die Stadt Trier ist in 25 Minuten mit dem PKW erreichbar.
Weitere Informationen
Sonstiges
Kern-Haus baut individuelle und massive Architektenhäuser zu einem attraktiven Preis-Leistungs-Verhältnis - und das bereits mit einer Erfahrung seit 1980. Die Kern-Haus AG ist ein deutscher, inhabergeführter Massivhausanbieter mit Sitz im rheinland-pfälzischen Ransbach-Baumbach. Kern-Haus setzt auf eine hohe Bauqualität der Handwerker und auf eine große Auswahl starker Marken. So verwendet Kern-Haus beim Bau Ihres Hauses nur hochwertige Markenprodukte renommierter Hersteller.
Preise und Auszeichnungen von Kern-Haus: - German Brand Award in den Jahren 2018 und 2021 - Hausbau Design Award: Sieger in den Jahren 2017, 2018, 2019, 2020, 2021, 2022 und 2023 - Deutscher Traumhauspreis: Sieger in den Jahren 2014, 2015, 2016 und 2018 und Silber 2017, 2020 und 2021 - Mittelstandspreis "Top 100" in den Jahren 2014, 2016, 2018, 2020 und 2022 - German Design Award im Jahr 2018
Weitere Informationen
Der gezeigte Preis versteht sich inklusive Grundstück und exklusive der Baunebenkosten.
Kern-Haus in Trier - https://www.kern-haus.de/trier/
Weitere Architektenhäuser - https://www.kern-haus.de/haeuser
Stichworte
Stellplatz vorhanden, Anzahl der Schlafzimmer: 3, Anzahl der separaten WCs: 1