
S Immobilien GmbH
Herr Ingo Rikken
004 ···
Nr. anzeigenPreise & Kosten
Provision für Käufer
provisionsfrei
Lage
Pivitsheide V. L. liegt etwa acht Kilometer westlich von der Detmolder Stadtmitte. Der Ort wird vom Rethlager Bach durchflossen, dessen Ursprung die Rethlager Quellen sind. Er ist
in großen Abschnitten seines Verlaufes naturnah belassen und bildet in der Ortsmitte den sehenswerten Rethlager Mühlenteich...
Die Immobilie
Zu diesem Angebot wurden vom Anbieter keine weiteren Daten hinterlegt. Für weitere Informationen bitte den Anbieter kontaktieren.
Nach Informationen fragenDetails
Objektbeschreibung
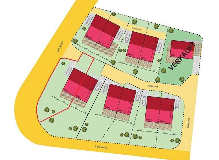
Willkommen in Pivitsheide, einem Wohngebiet in Detmold mit einer idyllischen Lage auf der Kussel. Hier besteht die Möglichkeit, eines von zehn Wohnbaugrundstücken zu erwerben, die sich ideal für den Bau von Doppelhaushälften eignen. Alle Grundstücke verfügen bereits über eine positive Bauvoranfrage, sodass der Umsetzung von...
Ausstattung
- Grundstücke für Doppelhäuser
- als Sondereigentum erwerbbar
- beliebte Lage auf der Kussel
- gute Infrastruktur
- Kindergärten und Schulen in der Nähe
- Einkaufsmöglichkeiten, Apotheke und Ärzte schnell erreichbar
- schnelle Anbindung in die umliegenden Städte
- naturnah
- Blick auf den Teutoburger...
Anbieter der Immobilie
Online-ID: 2mba258
Referenznummer: 12450-01
Finde Angebote wie dieses
Hier geht es zu unserem Impressum, den Allgemeinen Geschäftsbedingungen, den Hinweisen zum Datenschutz und nutzungsbasierter Online-Werbung.