Moderne & Energieeffiziente Doppelhaushälfte zum wohlfühlen
Das CELEBRATION 114 von Bien-Zenker ist ein Meisterwerk der Flexibilität und Individualität. Als Doppelhaus konzipiert, passt es sich perfekt Ihren persönlichen Bedürfnissen und Vorstellungen an. Mit der Wahl zwischen 2 oder 3 Geschossen bietet es Raum für kreative Gestaltungsmöglichkeiten. Der Wohnbereich im Erdgeschoss bildet das pulsierende Herzstück des Hauses und lädt zu gemeinsamen Stunden mit Familie und Freunden ein. In den oberen Etagen sorgen intelligente Raumlösungen für Rückzugsorte, die Privatsphäre und Komfort vereinen - ideal für Familienleben auf einem kompakten Grundstück.
Die Ausbaustufe "Schlüsselfertig" macht das Bauen mit Bien-Zenker zu einem stressfreien Erlebnis. Wir kümmern uns um den kompletten Hausbau samt Innenausbau, sodass Sie sich entspannt zurücklehnen können. Vom Fundament bis zur letzten Schraube wird alles von uns übernommen. So sparen Sie wertvolle Zeit, Nerven und Planungsaufwand, während Sie die Vorfreude auf Ihr neues Zuhause genießen dürfen.
Bei Bien-Zenker ist ein Haus mehr als nur eine Immobilie - es ist ein Zuhause voller Leben und Wärme. Mit über 80.000 gebauten Häusern und mehr als einem Jahrhundert Erfahrung zählt Bien-Zenker zu den führenden Fertighausanbietern in Deutschland. Unsere Expertise sorgt dafür, dass jede Baufamilie individuell beraten wird, bis sie glücklich den Schlüssel in ihr persönliches Traumhaus stecken kann.
Grundrisse und Abbildungen können Extras zeigen.
Merkmale
313 m² Grundstück
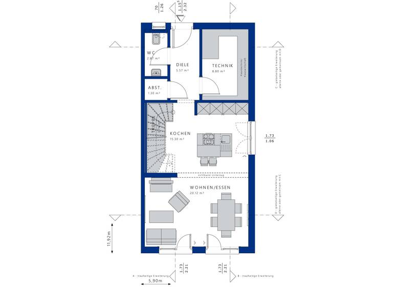
Mit fünf großzügig geschnittenen Zimmern auf einer Wohnfläche von 116 Quadratmetern bietet dieses Haus ausreichend Platz für Ihre Familie. Die durchdachte Aufteilung schafft eine harmonische Verbindung zwischen den Räumen: Das Erdgeschoss dient mit seinem offenen Wohn- und Essbereich als zentraler Treffpunkt für alle Bewohner, während die oberen Etagen Rückzugsmöglichkeiten bieten. Ob als Schlafzimmer oder Homeoffice - hier finden Sie Raum für all Ihre Bedürfnisse.
Besondere Highlights des CELEBRATION 114 sind die lichtdurchfluteten Räume, die durch große Fensterflächen eine angenehme Helligkeit erzeugen. Genießen Sie entspannte Stunden auf Ihrer Terrasse oder dem Balkon, während Kinder im Garten spielen oder Sie einfach nur die Ruhe des eigenen Heims genießen. Optional kann auch ein Keller realisiert werden, der zusätzlichen Stauraum bietet und Ihnen hilft, Ordnung zu halten.
Die schlüsselfertige Ausbaustufe verleiht Ihnen das Gefühl von Komfort ab dem ersten Tag. Alle Arbeiten - vom Rohbau über den Innenausbau bis hin zur Endreinigung - werden von erfahrenen Fachleuten durchgeführt, sodass Ihr neues Zuhause bezugsfertig ist, wenn Sie es betreten. Diese Rundum-Sorglos-Lösung spart nicht nur Zeit und Aufwand, sondern garantiert Ihnen auch höchste Qualität in jedem Detail.
Grundrisse
Grundrisse
1 / 2
Virtueller Rundgang
Video
Video
Realisiere Dein Projekt
Bausubstanz und Energie
Möchtest du Details zum Energieverbrauch?
Zustand der ImmobilieProjektiert
Preisdetails
Kaufpreis
433575 €433.575 €
3.737,72 €/m²
Provision für Käufer
Bitte beachte, das Angebot kann bei Vertragsabschluss die Zahlung einer Provision beinhalten. Weitere Informationen erhältst Du vom Anbieter.
Geschätzte Gesamtkosten
485.908 €1
Kaufpreis
433.575 €
Kaufnebenkosten
52.333 €
2
Notarkosten (1,5%)
6.504 €
Grunderwerbsteuer (6,5%)
28.182 €
Provision für Käufer (3,57%)
15.479 €
Grundbucheintrag (0,5%)
2.168 €
1Der angezeigte Wert ist eine automatisch berechnete Schätzung von immowelt.
2Bei den Angaben handelt es sich um ortsübliche Werte. Individuelle Kosten können abweichen.
Lage
Schultendorf, Gladbeck (45966)
Der Anbieter hat die genaue Adresse nicht freigegeben
Gladbeck bietet eine hervorragende Infrastruktur mit zahlreichen Möglichkeiten für Bildung, Gesundheit und Freizeitgestaltung direkt vor der Haustür. Schulen aller Bildungszweige sowie Kindergärten sind leicht erreichbar und gewährleisten kurze Wege für Familien mit Kindern. Auch medizinische Einrichtungen wie Apotheken und Ärzte befinden sich in unmittelbarer Nähe.
Für Shoppingliebhaber gibt es zahlreiche Einkaufsmöglichkeiten sowohl in Gladbeck selbst als auch in den nahegelegenen Städten der Ruhrgebietsmetropole. Die gut ausgebauten öffentlichen Verkehrsmittel verbinden Sie schnell mit umliegenden Städten wie Essen oder Gelsenkirchen - ideal für Pendler oder Ausflüge ins Grüne.
Dank der nahen Anbindung an Autobahnen sind auch weiter entfernte Ziele bequem erreichbar - ob für Berufspendler oder Wochenendausflüge ins Umland. All diese Vorzüge machen Gladbeck zu einem attraktiven Standort für Ihr neues Zuhause.
Weitere Informationen
Sonstiges
Vereinbaren Sie Ihren Beratungstermin!
? Preis für die Ausbaustufe "Schlüsselfertig" inkl. Grundstück (zzgl. Baunebenkosten) - umfasst Spachtel- und Malerarbeiten, Bodenbeläge, Innentüren und die Bäder ? Abbildungen können Sonderausstattungen zeigen
? Mit 118 Jahren Erfahrung plant und baut Bien-Zenker Ihr exklusives Traumhaus - gemeinsam mit unserem Architekten, ganz nach Ihren Vorstellungen. Mit unserem Rundum-sorglos-Paket haben Sie immer einen Ansprechpartner.
Nur Anfragen mit vollständigen Kontaktdaten.
Planen Sie Ihr Traumhaus mit uns - mehr auf https://fertighaus.tech Ihr Claude Begoug & Bien-Zenker - weil alles passt!
Infos hier - https://fertighaus.tech
Stichworte
Lage im Wohngebiet