

Wohnung zur Miete280 €1,5 Zimmer • 34,8 m² • frei ab 16.05.2026
280 €
1,5 Zimmer • 34,8 m² • frei ab 16.05.2026
In Stadtrandlage gelegene 1,5-Raumwohnung mit Balkon und Stellplatz
Merkmale
- frei ab 16.05.2026
- Dachgeschoss
- Kelleranteil
- AuĂźen-Stellplatz
- Balkon
- Fernblick
- Badewanne
- Bodenbelag: Fliesen, Laminat
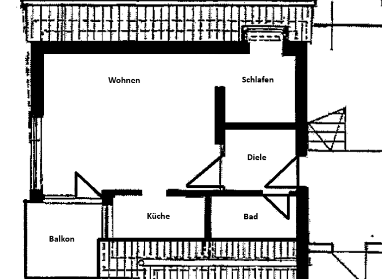
Grundrisse
Grundrisse
1 / 1
Realisiere Dein Projekt
Bausubstanz und Energie
Energieausweis
D
- Baujahr1993
- Zustand der ImmobilieGepflegt
- HeizungsartZentralheizung
- EnergieträgerGas
Mietkosten
Warmmiete
380 €
Kaltmiete
8,04 €/m²
280 €
Nebenkosten
100 €
Heizkosten
in Nebenkosten enthalten
Kaution
2 Kaltmieten
Lage

Unter dem Pflinzhöck 4, Stockhausen, Eisenach (99817)
Weitere Informationen
Weitere Services
Lust auf eine Besichtigung?
Eine Frage zur Immobilie?
Ăśber den Anbieter
pro domo Hausverwaltungsgesellschaft mbHMaklerbĂĽro
Karolinenstr. 8, 99817 Eisenach
Partnerschaft

Frau Katrin EberhardtDein Kontakt
Weitere Unterlagen
Online-ID: 2ntnk5g
Referenznummer: 143741


pro domo Hausverwaltungsgesellschaft mbH
Bewertung: 2,9 von 5 Sternen
Wie zufrieden bist du mit dieser Seite (nicht mit der Immobilie selbst)?
