Version: 8.26.0Navigation überspringen
1.878.000 €
789 m²  •  1.280 m² Grundstück
Immowelt logo

Mehrfamilienhaus zum Kauf
1878000 €
2.380 €/m²
789 m²  •  1.280 m² Grundstück

Wohn-/Geschäftshaus in TRAUMLAGE "Am Schwabachgrund"

Objektbeschreibung Das hier von uns angebotene Objekt wurde im Jahr 1974 ursprünglich als Wohn- und Fabrikationsgebäude errichtet und beherbergte über mehr als zwei Jahrzehnte die Produktionsräume der Fa. KÖHLER (Formenbau u. Spritzerei) im Erdgeschoss und mit weiteren Lagerräumen im Obergeschoss. Ebenfalls im Obergeschoss wurden schon damals, neben der großzügigen Eigentümerwohnung, weitere Wohnräume geschaffen.

Im Zuge der Betriebsstilllegung wurden Mitte der 90er-Jahre die im Obergeschoss befindlichen Büro-und Lagerräume in zusätzlichen Wohnraum umgewandelt.
Und auch die Produktionsflächen im Erdgeschoss fanden nach einem Umbau eine neue Verwendung.

Heute beherbergt das Anwesen insgesamt 6 (unterschiedlich große) Wohnungen mit einer Gesamtwohnfläche von ca. 384 Quadratmetern.
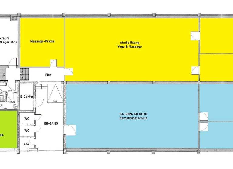
Die gewerblich genutzten Räumlichkeiten umfassen eine Nutzfläche von ca. 367 Quadratmetern, insgesamt stehen hier also unter Hinzurechnung von weiteren Verkehrsflächen/Fluren somit insgesamt nahezu 800 m² WOHN-/NUTZFLÄCHE zur Verfügung.
Aktuell sind 3 Wohnungen unbewohnt, diese können nach einer zweifelsohne notwendigen Renovierung neu und sicherlich lukrativ vermietet werden. Und auch der sog. (ebenfalls leerstehende) Mehrzweckraum kann in ein Appartement und somit dringend benötigten Wohnraum umgewandelt werden.

Das Mietverhältnis mit dem Betreiber des Yogastudios sowie der Massagepraxis endet am 31.03.2026 (Yoga) bzw. am 30.06.2026 (Massage), somit kann der neue Eigentümer auch hier vollkommen neue Wege gehen und die freiwerdenden ca. 164 m² Gewerbefläche einer alternativen Nutzung zuführen.

Eine genaue Aufstellung der Flächen u. Mieten ist diesem Exposé bereits als PDF beigefügt.

Auf dem Grundstück befinden sich 4 Garagen und weitere 10 KFZ-Stellplätze.

WICHTIGER HINWEIS AM ENDE:
Das (oftmals leidige Thema) Flachdach können Sie in diesem Fall komplett vernachlässigen, das hier vorhandene Dach wurde nämlich erst im Jahr 2024 KOMPLETT und aufwändig erneuert ! Raumaufteilung Die RAUMAUFTEILUNG entnehmen Sie bitte den beigefügten Grundrissen.

Merkmale

  • 1.280 m² Grundstück
  • 14 Stellplätze: Garage, Außen-Stellplatz

Grundrisse

Grundrisse
1 / 3

Bausubstanz und Energie

Energieausweis

E
  • Baujahr1974
  • HeizungsartZentralheizung
  • EnergieträgerÖl
Immowelt logo

Preisdetails

Kaufpreis
1878000 €
2.380,23 €/m²
Provision für Käufer
Die vom Käufer bei Vertragsabschluss zu bezahlende Vermittlungsprovision beträgt 3,57 % inkl. gesetzl. MwSt. aus dem notariellen Kaufpreis (einschließlich TG/Carport/Garage/Stellplatz).
Geschätzte Gesamtkosten
2.048.335 €1
Kaufpreis
1.878.000 €
Notarkosten (1,5%)
28.170 €
Grunderwerbsteuer (3,5%)
65.730 €
Provision für Käufer (3,57%)
67.045 €
Grundbucheintrag (0,5%)
9.390 €
1Der angezeigte Wert ist eine automatisch berechnete Schätzung von immowelt.
2Bei den Angaben handelt es sich um ortsübliche Werte. Individuelle Kosten können abweichen.

Lage

address-icon
Am Schwabachgrund 22Buckenhof (91054)
UNVERBAUBARE & ABOLUT RUHIGE TRAUMLAGE mit tollem Ausblick auf bzw. über den SCHWABACHGRUND !

Weitere Services

Lust auf eine Besichtigung?
Eine Frage zur Immobilie?
Nachricht hinzufügen
Mit der Nutzung der oben angegebenen Telefonnummer oder durch Klicken auf „Kontaktieren“ akzeptierst Du die Allgemeinen Nutzungsbedingungen, denen Du jederzeit widersprechen kannst. Weitere Informationen zum Datenschutz

Über den Anbieter

Alterlanger Str. 27, 91056 Erlangen
partner badgepartner badge
10 Jahre Partnerschaft + Diamond Partner
Herr Heiko Teuchert
Herr Heiko TeuchertDein Kontakt

Weitere Unterlagen

Online-ID: 268NT4NC1U7C
Wie zufrieden bist du mit dieser Seite (nicht mit der Immobilie selbst)?