Version: 8.24.0Navigation ĂĽberspringen
Raiffeisenbank Kreis Kelheim eG
1.075 €
3 Zimmer  â€˘  98,4 m²

Wohnung zur Miete
1.075 €
3 Zimmer  â€˘  98,4 m²

Erstbezug- Moderne 3-Zimmer Wohnung mit Balkon im Herzen der Altstadt von Abensberg

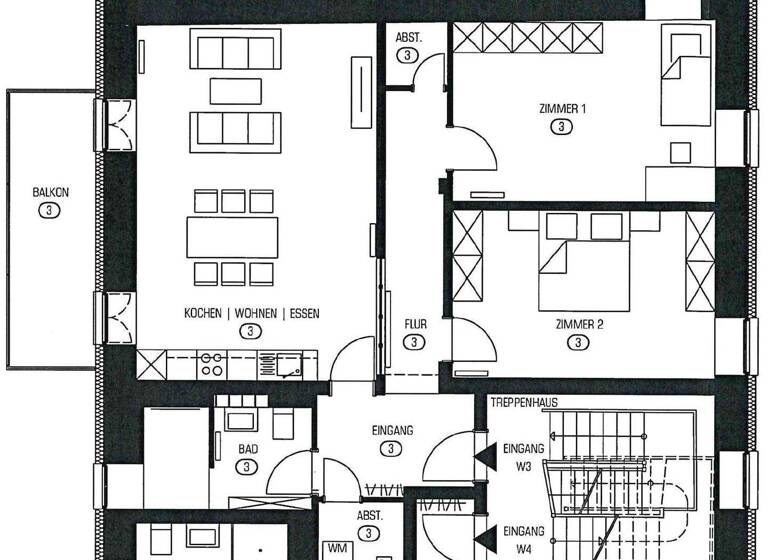
Diese exklusive 3-Zimmer-Wohnung mit ca. 98 m² Wohnfläche befindet sich im 1. Obergeschoss eines Mehrfamilienhauses mit sechs Wohneinheiten, das aus dem Altbestand eines traditionsreichen Handwerksbetriebes im Stadtzentrum von Abensberg attraktiv saniert wurde. Die Einkaufsmöglichkeiten, der Bahnhof und die Altstadt sind fußläufig in wenigen Minuten erreichbar. Die Wohnung besticht durch eine gehobene Ausstattung, die gelungene Kombination von "Alt und Neu" und einen großzügigen Grundriss. Ein Balkon in West-Ausrichtung lädt zum Entspannen ein. Die Wohnung verfügt über ein geräumiges Badezimmer mit Fenster und bodentiefer Dusche sowie zwei Abstellräume. Ein eigener Außenstellplatz rundet das Angebot ab. Die Wohnung ist ab sofort verfügbar.
Die Haltung von Haustieren ist in diesem Objekt nicht erlaubt

Merkmale

  • Bezug: sofort
  • AuĂźen-Stellplatz
  • Balkon
  • Badezimmer: Bad mit Dusche, Bad mit Fenster
  • Bodenbelag: Fliesen, Parkett

Grundrisse

Grundrisse
1 / 1

Realisiere Dein Projekt

Bausubstanz und Energie

Energieausweis

A
  • Baujahr1900
  • Zustand der Immobilierenoviert / saniert
  • HeizungsartZentralheizung
  • EnergieträgerGas, Luft-/Wasser-Wärmepumpe
MediumRectangleTop

Mietkosten

Warmmiete
1.375 €
Kaltmiete
10,92 €/m²
1.075 €
Nebenkosten
250 €
Heizkosten
in Warmmiete enthalten
Zusätzliche Kosten
Miete pro Stellplatz
50 €
Kaution
keine Angabe
Weitere Preisinformationen
1 Stellplatz, Miete: 50,00 EUR

Lage

address-icon
Schmidgasse 1, Abensberg (93326)
Das Objekt liegt in absolut ruhig im Zentrum der Stadt Abensberg - ca. 100 Meter vom Stadtplatz und dem Rathaus entfernt. Ein öffentlicher Parkplatz ohne Zeitbegrenzung ist in unmittelbarer Nähe des Objektes.
Abensberg ist eine bevorzugte Wohnstadt im Herzen des Landkreis Kelheim. Sie haben besten Anschluss zur B 16 (Richtung Ingolstadt) sowie zur A 93 (Richtung MĂĽnchen/Regensburg).
Abensberg hat einen eigenen Bahnhof mit fast stündlicher Anbindung an die Strecke Ingolstadt - Regensburg. Die Stadt bietet Einkaufmöglichkeiten für den täglichen Bedarf, ein Einkaufszentrum sowie viele Fachgeschäfte. Außerdem hat Abensberg - bekannt durch die Judomannschaft, den Hundertwasserturm und das überregional bekannte Volksfest Bayerns - das Gillamoos - eine sehr attraktive Innenstadt. Abensberg hat drei Kindergärten und eine Kinderkrippe, eine Grund-, Mittel- und Realschule. Gymnasien sind in Kelheim, Mainburg und Rohr. Vom Objekt aus erreichen Sie in wenigen Minuten zu Fuß alle Einkaufsmöglichkeiten für den täglichen Bedarf.

Abensberg hat eine gute medizinische Grundversorgung mit vielen Fachärzten - u.a. wurde ein Facharztzentrum im Ortsteil Gaden eröffnet - die nächsten Kliniken sind in Kelheim und Regensburg.

Weitere Informationen

Sonstiges Dieses Exposé sowie die beigefügten Anlagen basieren ausschließlich auf Angaben des Auftraggebers, für die wir keine Haftung übernehmen können. Alle Größenangaben sind ca.-Werte. Zwischenverfügung/Irrtum vorbehalten. Stichworte Anzahl der Schlafzimmer: 2, Anzahl der Badezimmer: 1, Anzahl Balkone: 1, 3 Etagen

Weitere Services

Lust auf eine Besichtigung?
Eine Frage zur Immobilie?
Nachricht hinzufĂĽgen
Mit der Nutzung der oben angegebenen Telefonnummer oder durch Klicken auf „Kontaktieren“ akzeptierst Du die Allgemeinen Nutzungsbedingungen, denen Du jederzeit widersprechen kannst. Weitere Informationen zum Datenschutz

Ăśber den Anbieter

Kaiser-Heinrich II.-Str. 2, 93077 Bad Abbach
partner badge
10 Jahre Partnerschaft
Herr Manfred NeckerDein Kontakt
Online-ID: 2n48g5a
Referenznummer: 2026-44-1544
Raiffeisenbank Kreis Kelheim eG
Raiffeisenbank Kreis Kelheim eG
Bewertung: 4,2 von 5 Sternen
Nachricht hinzufĂĽgen
Mit der Nutzung der oben angegebenen Telefonnummer oder durch Klicken auf „Kontaktieren“ akzeptierst Du die Allgemeinen Nutzungsbedingungen, denen Du jederzeit widersprechen kannst. Weitere Informationen zum Datenschutz
MediumRectangleTop
MediumRectangleBottom
MediumRectangleTop
Wie zufrieden bist du mit dieser Seite (nicht mit der Immobilie selbst)?