

Wohnung zum Kauf199000 €2.970 €/m²3 Zimmer • 67 m² • 2. Geschoss
199000 €
2.970 €/m²
3 Zimmer • 67 m² • 2. Geschoss
Kapitalanlage mit Stil! Vermietete Altbauwohnung mit Balkon im exklusiven Villenviertel!
Merkmale
- Bezug: vermietet
- vermietet
- 2. Geschoss
- Balkon
- Garten
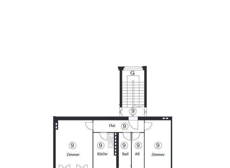
Grundrisse
Grundrisse
1 / 1
Realisiere Dein Projekt
Bausubstanz und Energie
Energieausweis
F
- Baujahr1909
- Zustand der ImmobilieGepflegt
- HeizungsartEtagenheizung
- EnergieträgerGas
Preisdetails
Kaufpreis
199000 €
2.970,15 €/m²
Hausgeld
153.8 €
Provision für Käufer
3.57 % inkl. MwSt.
Weitere Preisinformationen
Ist-Mieteinnahmen pro Jahr: 3.280,68 EUR
Geschätzte Gesamtkosten
222.024 €1
Kaufpreis
199.000 €
Kaufnebenkosten
23.024 €
2Notarkosten (1,5%)
2.985 €
Grunderwerbsteuer (6%)
11.940 €
Provision für Käufer (3,57%)
7.104 €
Grundbucheintrag (0,5%)
995 €
1Der angezeigte Wert ist eine automatisch berechnete Schätzung von immowelt.
2Bei den Angaben handelt es sich um ortsübliche Werte. Individuelle Kosten können abweichen.
Lage

Lichterfelde, Berlin (12207)
Der Anbieter hat die genaue Adresse nicht freigegeben
Weitere Informationen
Weitere Services
Lust auf eine Besichtigung?
Eine Frage zur Immobilie?
Ăśber den Anbieter
ITTB InvesTeamBerlin Immobilien GmbHMaklerbĂĽro
Alt-Rudow 43, 12357 Berlin

Frau Annika Bassi Herr Andrea BassiDein Kontakt
Online-ID: 2n2675n
Referenznummer: 7209


ITTB InvesTeamBerlin Immobilien GmbH
Wie zufrieden bist du mit dieser Seite (nicht mit der Immobilie selbst)?

