Zinsen von gestern, Kaufchance von heute - Kapitalanleger aufgepasst!
Objektnr: 1070568
Besonders interessant für Investoren ist zudem die Möglichkeit einer speziellen Finanzierungsform mit attraktiven Zinssätzen die den Einstieg in dieses Objekt zusätzlich erleichtern kann. Nähere Informationen hierzu erhalten Sie gerne auf Anfrage.
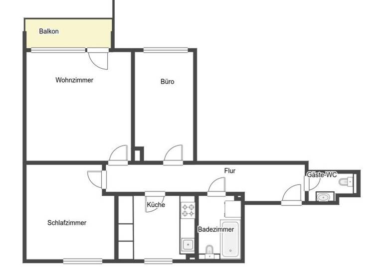
Diese attraktive 3-Zimmer-Eigentumswohnung befindet sich in einem gepflegten Mehrfamilienhaus aus dem Jahr 1971 mit insgesamt 7 Obergeschossen und liegt im Erdgeschoss. Ein Personenaufzug sorgt für einen komfortablen Zugang zur Wohnung und erhöht die Alltagstauglichkeit sowie die langfristige Vermietbarkeit. Die Immobilie liegt zentral in einer ruhigen Seitenstraße von Bensheim, einer gefragten Wohnlage mit sehr guter Infrastruktur. Einkaufsmöglichkeiten, öffentliche Verkehrsmittel, Gastronomie sowie Einrichtungen des täglichen Bedarfs sind schnell erreichbar, was die Lage für eine breite Mieterzielgruppe besonders attraktiv macht.
Die Wohnung ist bereits zuverlässig vermietet und stellt somit eine ideale Gelegenheit für Kapitalanleger dar, die eine sofortige Investition mit laufenden Mieteinnahmen suchen. Ein bestehendes Mietverhältnis ermöglicht einen direkten Einstieg ohne Leerstandsrisiko oder zusätzlichen Vermietungsaufwand. Das bestehende Mietverhältnis beinhaltet eine Staffelmietvereinbarung mit jährlichen, vertraglich festgelegten Mietanpassungen, wodurch sich eine planbare und sukzessive Ertragssteigerung ergibt. Der funktionale Grundriss in Kombination mit einem Balkon als geschätztem Wohnmehrwert, dem Aufzug im Haus sowie der zentralen Lage schafft stabile Voraussetzungen für eine nachhaltige Vermietbarkeit.
Zur Wohnung gehört ein eigener Kellerraum, der zusätzlichen Stauraum bietet und den Wohnkomfort für Mieter weiter erhöht. Optional besteht die Möglichkeit, eine Garage oder einen Stellplatz zusätzlich zu erwerben, was insbesondere in zentraler Lage einen deutlichen Mehrwert darstellt und die Attraktivität für Mieter sowie den langfristigen Werterhalt der Investition zusätzlich unterstützt.
Insgesamt handelt es sich um eine solide, vermietete Eigentumswohnung in zentraler Lage mit guter Gebäudestruktur, Aufzug, Balkon und zusätzlichem Stauraum - eine wertstabile und nachhaltige Kapitalanlage mit langfristigem Potenzial.
Merkmale
Bezug: nach Absprache
Erdgeschoss
Personenaufzug
Bad mit Dusche
Gäste-WC
Keller
Garten
+ Zentrale, gefragte Lage in Bensheim mit Top-Infrastruktur + Attraktive Finanzierungsform mit nur 1,5 % Zinsen + Bereits vermietet - sofortige Mieteinnahmen + Staffelmiete mit jährlicher Ertragssteigerung + Balkon & Aufzug - hohe Vermietbarkeit + Kellerraum + optionale Garage als Zusatzmehrwert
Grundrisse
Grundrisse
1 / 1
Realisiere Dein Projekt
Bausubstanz und Energie
Energieausweis
D
Baujahr1971
Zustand der ImmobilieGepflegt
HeizungsartZentralheizung
EnergieträgerGas
Preisdetails
Kaufpreis
234000 €234.000 €
3.250 €/m²
Provision für Käufer
Die Provision i.H.v. 2,50 % inkl. MwSt. ist mit Kaufvertragsbeurkundung fällig, sofern der Verkaufspreis über 83.000,00 € liegt.
Liegt der Verkaufspreis dagegen bei/unter 83. Weitere Informationen siehe Provisionshinweis.
Weitere Preisinformationen
Ist-Mieteinnahmen pro Jahr: 7.728,00 EUR
Geschätzte Gesamtkosten
258.570 €1
Kaufpreis
234.000 €
Kaufnebenkosten
24.570 €
2
Notarkosten (1,5%)
3.510 €
Grunderwerbsteuer (6%)
14.040 €
Provision für Käufer (2,5%)
5.850 €
Grundbucheintrag (0,5%)
1.170 €
1Der angezeigte Wert ist eine automatisch berechnete Schätzung von immowelt.
2Bei den Angaben handelt es sich um ortsübliche Werte. Individuelle Kosten können abweichen.
Lage
Bensheim (64625)
Der Anbieter hat die genaue Adresse nicht freigegeben
Lage: Attraktive Lage in Bensheim mit guten Bedingungen für Selbstnutzer oder Kapitalanleger Bildung und Betreuung: Nur ca. 800 m zu Kindergarten und Schule - ideale Verhältnisse für Ihre Familie Nahversorgung: Schnell und bequem einkaufen: Supermarkt und Bankfiliale in max. 5 Gehminuten Anbindung: Bushaltestelle, Bahnhof und Autobahn komfortabel erreichbar
Weitere Informationen
Provisionshinweis
Die Provision i.H.v. 2,50 % inkl. MwSt. ist mit Kaufvertragsbeurkundung fällig, sofern der Verkaufspreis über 83.000,00 € liegt.
Liegt der Verkaufspreis dagegen bei/unter 83.000,00 €, ist die fest vereinbarte Mindestprovision i.H.v. mind. 5.950,00 € inkl. MwSt. mit Kaufvertragsbeurkundung fällig. Die Mindestprovision fällt insg. nur einmal an, wodurch Verkäufer und Käufer die Mindestprovision dann jeweils mit 2.975,00 € inkl. MwSt. tragen.
Sonstiges
Vereinbaren Sie noch heute einen Besichtigungstermin! _____________________________________________________
Alle Angaben sind ohne Gewähr und basieren ausschließlich auf Informationen, die uns von unserem Auftraggeber zur Verfügung gestellt wurden. Wir übernehmen keine Gewähr für die Vollständigkeit, Richtigkeit und Aktualität der Angaben.
Stichworte
Gesamtfläche: 72,00 m², Anzahl der Schlafzimmer: 1, Anzahl der Badezimmer: 1, 7 Etagen