Version: 8.22.6Navigation überspringen
329.000 €
3 Zimmer  •  63,2 m²  •  2. Geschoss
Immowelt logo

Wohnung zum Kauf
329000 €
5.210 €/m²
3 Zimmer  •  63,2 m²  •  2. Geschoss

Das Haus trägt Smoking, die Wohnung wartet noch auf ihr Kleid! Renovierungsbedürftige Altbauwohnung mit toller Raumaufteilung + Traumhaft schönes Haus

Alte Mauern, neues Glück! Ein Haus im Glanz, eine Wohnung mit Chance!

Das Haus trägt Smoking, die Wohnung wartet noch auf ihr Kleid! Renovierungsbedürftige Altbauwohnung mit toller Raumaufteilung + Traumhaft schönes Haus + Perfekte Infrastruktur und Anbindung! Jetzt zugreifen!

Worauf warten Sie?

 

Hier wohnt der gute Geschmack schon länger! Machen sie nun den Feinschliff bei Ihrer neuen Wohnung!

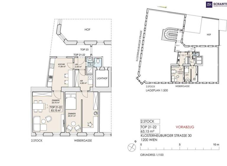
Ihre neue Wohnung teilt sich in einen Vorraumbereich mit Platz für eine Garderobe, ein kleines Badezimmer mit Dusche und WC, einen praktischen Abstell- oder Schrankraum, 2 Schlafzimmer bzw. Arbeitszimmer (die Wand kann aber leicht entfernt werden und zum Beispiel ein größeres Zimmer errichtet werden), eine separate Küche sowie ein lichtdurchflutetes Wohn-Esszimmer.

Schauen Sie sich dieses perfekte Raumkonzept sowie das schöne Altbauhaus an und gestalten Sie Ihre Wohnung ganz nach Ihren Vorstellungen!

Ein Lift wird noch vetraglich gesichert und auf Kosten des Verkäufers in den kommenden 3 Jahren eingebaut!

 

Wohnfläche: ca. 63,15m² + Kellerabteil

Kaufpreis: € 329.000.-

Bezug: ab sofort

Diese Wohnungen haben bereits glückliche, neue Eigentümer: TOP 14, TOP 31-32, TOP 9-10

 

Worauf warten Sie noch? Vereinbaren Sie noch, vereinbaren Sie heute noch einen Termin!

 

www.schantl-ith.at

 

Bei konkretem Interesse senden wir Ihnen sehr gerne weiterführende Dokumente zu, wie:

o Grundbuchauszug

o Wohnungseigentumsvertrag

o Nutzwertgutachten

o Eigentümerversammlungsprotokoll (Falls vorhanden) etc...

 

Unser Service für Sie: Wenn Sie sich für diese Immobilie entschieden haben, begleiten wir Sie gerne vom Kaufanbot weg inkl. Klärung von Sonderwünschen und der Vertragsunterzeichnung über die Wohnungsübergabe bis hin zu diversen Ummeldungen wie Strom und Gas. Entsprechende Formulare oder auch Meldezettel stellen wir Ihnen sehr gerne zur Verfügung.

Gerne unterstützen wir Sie auch bei der Finanzierung Ihres Traumobjekts und finden mit unseren langjährigen Partnern die besten Konditionen für Sie.

Vereinbaren Sie noch heute einen Termin, wir beraten Sie gerne!

Wir weisen darauf hin, dass zwischen dem Vermittler und dem zu vermittelnden Dritten ein familiäres oder wirtschaftliches Naheverhältnis besteht.

Der Vermittler ist als Doppelmakler tätig.

Infrastruktur / Entfernungen

Gesundheit
Arzt <250m
Apotheke <250m
Klinik <1.000m
Krankenhaus <1.500m

Kinder & Schulen
Schule <250m
Kindergarten <250m
Universität <750m
Höhere Schule <1.000m

Nahversorgung
Supermarkt <250m
Bäckerei <250m
Einkaufszentrum <1.250m

Sonstige
Geldautomat <250m
Bank <250m
Post <500m
Polizei <500m

Verkehr
Bus <250m
U-Bahn <500m
Straßenbahn <250m
Bahnhof <500m
Autobahnanschluss <1.250m

Angaben Entfernung Luftlinie / Quelle: OpenStreetMap

Merkmale

  • Bezug: ab sofort
  • 2. Geschoss
  • Bad mit Dusche
  • Bodenbelag: Fliesen, Parkett
  • voll erschlossen

Grundrisse

Grundrisse
1 / 1

Realisiere Dein Projekt

Bausubstanz und Energie

Heizwärmebedarf (HWB)

D

Gesamtenergieeffizienz (fGEE)

F
  • Baujahr1900
  • Zustand der ImmobilieAltbau (bis 1945), renovierungsbedürftig / sanierungsbedürftig
  • HeizungsartEtagenheizung
  • EnergieträgerGas
Immowelt logo

Preisdetails

Kaufpreis
329000 €
5.209,82 €/m²
Provision für Käufer
3% des Kaufpreises zzgl. 20% USt.

Lage

address-icon
Klosterneuburger StraßeWien (1200)
Urbaner Lifestyle trifft grüne Auszeit - Hier zu wohnen heißt: In wenigen Minuten in der City, am Donaukanal oder im Augarten. U4 & Straßenbahn befinden sich ums Eck, Cafés, Shops & alles fürs tägliche Leben in Reichweite. Zentral, lebendig und trotzdem entspannt!

Was diese Adresse so besonders macht:
+ Zentral und doch wohnlich - Stadtleben ohne Stress.
+ Mobil sein leicht gemacht - ob U4, Straßenbahn oder zu Fuß bzw. mit dem Rad, Sie sind optimal angebunden!
+ Lebensqualität pur - Donaukanal & Augarten als Ihre private Naturkulisse.
+ Rundum versorgt!

Öffis:
+ U-Bahn: U4 Friedensbrücke
+ Bus: 5B
+ Straßenbahn: 1, 2, 5, 31, 33, O

Weitere Informationen

Stichworte Nutzfläche: 63,15 m², Anzahl der Badezimmer: 1, Anzahl der separaten WCs: 1, Kellerfläche: 1,50 m², Bundesland: Wien, 4 Etagen

Weitere Services

Lust auf eine Besichtigung?
Eine Frage zur Immobilie?
Nachricht hinzufügen
Mit der Nutzung der oben angegebenen Telefonnummer oder durch Klicken auf „Kontaktieren“ akzeptierst Du die Allgemeinen Nutzungsbedingungen, denen Du jederzeit widersprechen kannst. Weitere Informationen zum Datenschutz

Über den Anbieter

Messendorferstraße 71a, 8041 Graz
Herr Samir Agha-SchantlDein Kontakt
Online-ID: 2nk7q5g
Referenznummer: OBGC20260211133358623bb002e1efe
Schantl ITH Immobilientreuhand GmbH
Schantl ITH Immobilientreuhand GmbH
Bewertung: 5 von 5 Sternen
Nachricht hinzufügen
Mit der Nutzung der oben angegebenen Telefonnummer oder durch Klicken auf „Kontaktieren“ akzeptierst Du die Allgemeinen Nutzungsbedingungen, denen Du jederzeit widersprechen kannst. Weitere Informationen zum Datenschutz
Wie zufrieden bist du mit dieser Seite (nicht mit der Immobilie selbst)?