3- Zimmer- Neubauwohnung in beliebter Lage - 1. OG W. 3
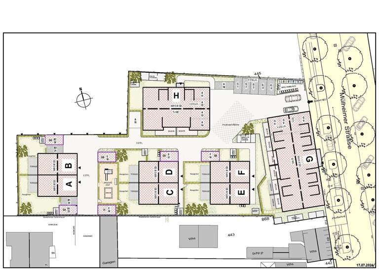
In zentraler Lage von Leverkusen-Schlebusch entsteht ein grünes Wohnquartier mit insgesamt 3 Doppelhäusern und 2 Mehrfamilienhäusern. Die hier angebotene Wohnung befindet sich in einem der beiden Mehrfamilienhäuser (Haus G) mit 8 hochwertigen Neubauwohnungen. Die Wohnungen haben eine Größe von 2 bis 4 Zimmern und bieten Wohnflächen von ca. 59 m² bis ca. 116 m².
Jede Wohnung in Haus G ist barrierefrei über einen Aufzug zu erreichen. Die Architektur zeichnet sich durch ein zeitgemäßes offenes Wohnkonzept aus: Von einem großzügigen Wohn-Essbereich mit offener Küche haben Sie Zugang zur Terrasse oder einem Balkon, wo Sie entspannt den Feierabend genießen können.
Die modernen Badezimmer sind mit hochwertigen Sanitärobjekten ausgestattet und bieten einen hohen Komfort. Für ausreichend Stauraum sorgt der in jede Wohnung integrierte Abstellraum. Im Erdgeschoss steht ein Waschraum mit Anschluss für die Waschmaschine zur Verfügung. Stellplätze können entweder als Einzelgarage im Erdgeschoss des Hauses oder als Außenstellplatz erworben werden. Ihr Fahrrad können Sie in Fahrradboxen sicher abstellen.
Das Wohnhaus wird durch ein energieeffizientes Heizsystem mit einer Wärmepumpe und einer Photovoltaikanlage beheizt. Dank einer starken Dämmung des Gebäudes und dreifachverglasten Fenstern können Sie Ihre Heizkosten niedrig halten und zugleich im Sommer ein angenehmes Raumklima genießen.
Sowohl auf die Grundrisse als auch auf die Ausstattung können Sie noch Einfluss nehmen. So entsteht für Sie ein individuell gestalteter Wohnraum, der perfekt auf Ihre Bedürfnisse und Vorstellungen abgestimmt ist. Sichern Sie sich jetzt eine der begehrten Einheiten in diesem Neubauprojekt und freuen Sie sich auf Ihr neues, komfortables Zuhause in Leverkusen-Schlebusch.
Merkmale
Gäste-WC
Balkon
Außen-Stellplatz
. Ausstattung und Raumgestaltung sind individuell anpassbar . Personenaufzug . Hauswirtschaftsraum in der Wohnung . modernes Heizsystem mit Wärmepumpe und Photovoltaikanlage . Fußbodenheizung mit Einzelraumsteuerung . Fenster mit Kunststoffrahmen und Dreifachverglasung . elektrische Rollläden an allen Fenstern . Bäder mit hochwertigen Fliesen und moderner Sanitärausstattung . bodentiefe Duschen . große Terrasse oder Balkon . Einzelgarage im Erdgeschoss oder Außenstellplatz
Grundrisse
Grundrisse
1 / 1
Realisiere Dein Projekt
Bausubstanz und Energie
Energieausweis
A+
Baujahr2026
Zustand der ImmobilieErstbezug
EnergieträgerLuft-/Wasser-Wärmepumpe
Preisdetails
Kaufpreis
563000 €563.000 €
5.926,32 €/m²
Provision für Käufer
Provisionsfrei
Weitere Preisinformationen
1 Stellplatz
Geschätzte Gesamtkosten
610.855 €1
Kaufpreis
563.000 €
Kaufnebenkosten
47.855 €
2
Notarkosten (1,5%)
8.445 €
Grunderwerbsteuer (6,5%)
36.595 €
Grundbucheintrag (0,5%)
2.815 €
1Der angezeigte Wert ist eine automatisch berechnete Schätzung von immowelt.
2Bei den Angaben handelt es sich um ortsübliche Werte. Individuelle Kosten können abweichen.
Lage
Schlebusch, Leverkusen (51375)
Der Anbieter hat die genaue Adresse nicht freigegeben
Schlebusch ist ein idyllischer Stadtteil im Osten von Leverkusen. Es gilt als sicherer, ruhiger und familienfreundlicher Wohnort mit hoher Lebensqualität. Die unmittelbare Nähe zur Natur, die zu Fuß erreichbaren Einkaufs- und Freizeitmöglichkeiten, alle wichtigen Arztpraxen und das Klinikum Leverkusen machen Schlebusch zum mit Abstand gefragtesten und beliebtesten Stadtteil und zu einem attraktiven Wohnort. Mitten durch den grünen Ortskern fließt die Dhünn. Traditionelle bergische Schieferhäuser und gründerzeitliche Fassaden prägen das Stadtbild. Mit seinem vielfältigen Gastronomieangebot von traditionell bis international ist Schlebusch ein beliebter Treffpunkt für Jung und Alt. Zu den Bildungsangeboten gehören das Freiherr-vom-Stein-Gymnasium, die Gesamtschule Schlebusch sowie mehrere Grundschulen und Kindergärten. Zahlreiche Sportvereine und Freizeitmöglichkeiten, darunter Fitnessstudios, Tennisclubs und Schwimmbäder lassen keine Wünsche offen. Hinzu kommen mehrere Naturschutzgebiete in Ortsnähe. Auch kulturell hat Schlebusch viel zu bieten: Neben dem Kulturhaus Leverkusen lädt Schloss Morsbroich mit seinem Schlosspark zu Kunstausstellungen oder Open-Air-Veranstaltungen ein. Die umliegenden Städte sind sowohl durch die gute Autobahnanbindung als auch durch den ÖPNV schnell erreicht. Mit dem Zentrum von Köln verbinden die Kölner Verkehrsbetriebe Schlebusch zum Stadttarif. In die Kölner Südstadt oder zum Neumarkt gelangen Sie per Straßenbahn ohne umzusteigen in weniger als 30 Minuten. Die Haltestelle ist von der Mühlheimer Str. 54 bequem zu Fuß zu erreichen. Die gute Verkehrsanbindung von Schlebusch ist damit ein weiterer Standortvorteil dieses Wohnorts.
Weitere Informationen
Sonstiges
Hinweis: Alle Angaben wurden mit großer Sorgfalt auf Basis der vom Projektleiter erhaltenen Informationen zusammengestellt. Eine Haftung für Irrtümer oder fehlerhafte Angaben kann nicht übernommen werden. Wir bitten zu beachten, dass sich das Projekt noch in der Planungsphase befindet und die verwendeten Visualisierungen und Grundrisse von der tatsächlichen Bauausführung abweichen können.
Gerne stehen wir Ihnen für Fragen zur Verfügung und vereinbaren gerne einen Beratungstermin. Wir bitten hierzu um eine Anfrage über das Immobilienportal.
Stichworte
Anzahl Balkone: 1