Version: 8.24.0Navigation überspringen
795.000 €
12 Zimmer  •  280 m²  •  234 m² Grundstück
Immowelt logo

Mehrfamilienhaus zum Kauf
795000 €
2.839 €/m²
12 Zimmer  •  280 m²  •  234 m² Grundstück

MTI Commercial - Anlageimmobilie in bester Lage!

Diese sehr gepflegte, letztmals in 2014 grundlegend sanierte und renovierte Immobilie, ein ehemaliges Verwaltungsgebäude einer bekannten Friedrichsdorfer Traditionsfirma, liegt äußerst zentral und doch in ruhiger gelegen am Beginn einer Seitenstraße in Friedrichsdorf. Alle drei Wohnungen verfügen über den gleichen Standard und sind gut vermietet. Eine Anpassung an den heute üblichen Mietzins ist mittelfristig darstellbar. Es herrscht kein Sanierungsstau.

Durch die ideale Lage der Immobilie erreichen Sie alle Einkaufsmöglichkeiten, Ärztehäuser und auch den Friedrichsdorfer Bahnhof fußläufig in kurzer Zeit. Kindergärten sowie Schulen sowie Nah- und Fernverkehrswege sind ebenfalls schnell erreicht. 

Eine sehr interessante Immobilie mit Charme, eine langfristig werthaltige Anlage mit Entwicklungspotential!

Zahlen

Aktuelle Mieten Durchschnitt EUR 9,60 / IST - Jahres-Netto-Kaltmieten EUR 32.220,00

Die Wohnung im Hochparterre ist frei und kann nach Renovierung zu dann ortsüblichen Preisen neu vermietet werden. Die Miete im ersten OG wird zeitgleich um 15% angepaßt. Mieteinnahmen ab 01/2026 jährlich: EUR 37.899,00.

Mieten Soll nach Mietspiegel EUR 13,01 / SOLL - Jahres-Netto-Kaltmiete EUR 43.713,60

 

Wichtige Information für Verbraucher

Informationen über das Fernabfragegesetz finden Sie hier: http://maintaunusimmobilien.com/widerruf/

Merkmale

  • Bezug: Sofort
  • vermietet
  • 2 Geschosse
  • 234 m² Grundstück
  • Einbauküche
  • Kelleranteil

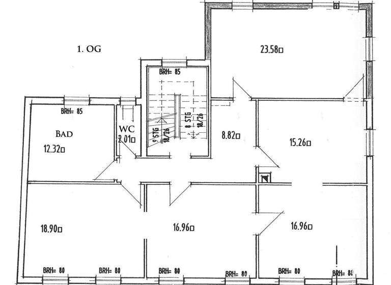
Grundrisse

Grundrisse
1 / 3

Realisiere Dein Projekt

Bausubstanz und Energie

Energieausweis

G
  • Baujahr1920
  • Zustand der Immobilierenoviert / saniert
  • HeizungsartZentralheizung
  • EnergieträgerGas
Immowelt logo

Preisdetails

Kaufpreis
795000 €
2.839,29 €/m²
Provision für Käufer
5,95% vom Kaufpreis (inkl. MwSt.)
Geschätzte Gesamtkosten
886.981 €1
Kaufpreis
795.000 €
Notarkosten (1,5%)
11.925 €
Grunderwerbsteuer (6%)
47.700 €
Provision für Käufer (3,57%)
28.381 €
Grundbucheintrag (0,5%)
3.975 €
1Der angezeigte Wert ist eine automatisch berechnete Schätzung von immowelt.
2Bei den Angaben handelt es sich um ortsübliche Werte. Individuelle Kosten können abweichen.

Lage

address-icon
Friedrichsdorf (61381)
Der Anbieter hat die genaue Adresse nicht freigegeben
Friedrichsdorf gilt als gesuchte Wohnlage im Vordertaunusbereich und zeichnet sich besonders durch eine sehr gute Erreichbarkeit der Nah- und Fernverkehrswege sowie durch eine gesunde, gewachsene Infrastruktur aus. Die benachbarte Stadt Bad Homburg ist in wenigen Minuten erreicht, die nahe gelegenen Wälder sowie der Hardtwald lädt zu ausgiebigen Spaziergängen ein. Ein sehr gutes Angebot an Kindergärten und Schulen rundet das Gesamtpaket ab.

Weitere Informationen

Sonstiges Hinweis zur neuen EnEV 2014

Ab dem 01.05.2014 tritt die neue EnEV in Kraft. Diese besagt, daß Eigentümer / Vermieter den Kaufinteressenten / Käufern / Mietinteressenten / Mietern unaufgefordert einen Energieausweis der betreffenden Immobilie vorlegen / überlassen müssen. Wir sind als Makler daran gehalten diesen bei den Eigentümern / Vermietern einzufordern, an unsere Kunden weiterzuleiten und in den öffentlichen Medien zu publizieren, um unserer Nebenleistungspflicht nachzukommen.

Aktueller Stand: Ein Energieausweis ist beim Eigentümer angefordert!

Wichtige Hinweise

Widerrufsrecht:

Im Falle eines Zustande kommenden Vertrages haben Verbraucher das folgende Widerrufsrecht:

Sie haben das Recht, binnen vierzehn Tagen ohne Angabe von Gründen den Vertrag zu widerrufen.
Die Widerrufsfrist beträgt vierzehn Tage ab dem Tag des Vertragsabschlusses.
Um Ihr Widerrufsrecht auszuüben, müssen Sie uns mittels einer eindeutigen Erklärung (z.B. ein mit der Post versandter Brief, Telefax oder E-Mail) über Ihren Entschluss, diesen Vertrag zu widerrufen, informieren.

Der Widerruf ist zu richten an: MainTaunus-Immobilien Sauer & Sauer GbR
Louisenstr. 98
61348 Bad Homburg
Fax-Nr.: 06172 1399929
info@maintaunus-immobilien.com

Sie können dafür dieses Muster-Widerrufsformular verwenden, das jedoch nicht vorgeschrieben ist.
Zur Wahrung der Widerrufsfrist reicht es aus, dass Sie die Mitteilung über die Ausübung des Widerrufsrechts vor Ablauf der Widerrufsfrist absenden.

Folgen des Widerrufs
Wenn Sie diesen Vertrag widerrufen, haben wir Ihnen alle Zahlungen, die wir von Ihnen erhalten haben, einschließlich der Lieferkosten (mit Ausnahme der zusätzlichen Kosten, die sich daraus ergeben, dass Sie eine andere Art der Lieferung als die von uns angebotene, günstigste Standardlieferung gewählt haben), unverzüglich und spätestens binnen vierzehn Tagen ab dem Tag zurückzuzahlen, an dem die Mitteilung über Ihren Widerruf dieses Vertrags bei uns eingegangen ist. Für diese Rückzahlung verwenden wir dasselbe Zahlungsmittel, das Sie bei der ursprünglichen Transaktion eingesetzt haben, es sei denn, mit Ihnen wurde ausdrücklich etwas anderes vereinbart; in keinem Fall werden Ihnen wegen dieser Rückzahlung Entgelte berechnet.
Haben Sie verlangt, dass die Dienstleistungen während der Widerrufsfrist beginnen soll, so haben Sie uns einen angemessenen Betrag zu zahlen, der dem Anteil der bis zu dem Zeitpunkt, zu dem Sie uns von der Ausübung des Widerrufsrechts hinsichtlich dieses Vertrags unterrichten, bereits erbrachten Dienstleistungen im Vergleich zum Gesamtumfang der im Vertrag vorgesehenen Dienstleistungen entspricht.

 

Gesetzliche Verpflichtung für Immobilienmakler nach dem Geldwäschegesetz (GwG) gemäß § 2 Abs. 1 Nr. 10 GwG

Seit dem 29.11.2011 gilt das neue Geldwäschegesetz, welches jedes Immobilienbüro verpflichtet, bei Kontaktaufnahme die Identität des Kunden festzuhalten. Wir möchten Sie deshalb bitten, zu einer Besichtigung ein gültiges Ausweisdokument mitzubringen. Bei Firmen und juristischen Personen ist ein Handelsregisterauszug notwendig. Wir danken Ihnen für Ihr Verständnis und sichern Ihnen selbstverständlich einen diskreten Umgang mit Ihren Daten zu. Für Fragen stehen wir Ihnen gerne zur Verfügung. Stichworte Stellplatz vorhanden, Nord-West-Balkon/Terrasse, vermietbare Fläche: 280,00 m², Kellerfläche: 40,00 m², Anzahl der Wohneinheiten: 3, Bundesland: Hessen, 2 Etagen, Lage im Wohngebiet, Distanz zur Autobahn: 2, Distanz zum Bus: 0.2, Distanz zur nächsten Einkaufsmöglichkeit: 0.5, Distanz zum Flughafen: 18, Distanz zur nächsten Gaststätte: 0.2, Distanz zur Gesamtschule: 1

Weitere Services

Lust auf eine Besichtigung?
Eine Frage zur Immobilie?
Nachricht hinzufügen
Mit der Nutzung der oben angegebenen Telefonnummer oder durch Klicken auf „Kontaktieren“ akzeptierst Du die Allgemeinen Nutzungsbedingungen, denen Du jederzeit widersprechen kannst. Weitere Informationen zum Datenschutz

Über den Anbieter

Louisenstrasse 98, 61348 Bad Homburg
partner badge
Partnerschaft
Herr Volkmar  Sauer
Herr Volkmar SauerDein Kontakt
Online-ID: 2mqnq54
Referenznummer: 376092
MainTaunus-Immobilien Sauer & Sauer GbR
title
MainTaunus-Immobilien Sauer & Sauer GbR
Nachricht hinzufügen
Mit der Nutzung der oben angegebenen Telefonnummer oder durch Klicken auf „Kontaktieren“ akzeptierst Du die Allgemeinen Nutzungsbedingungen, denen Du jederzeit widersprechen kannst. Weitere Informationen zum Datenschutz
Wie zufrieden bist du mit dieser Seite (nicht mit der Immobilie selbst)?