Version: 8.26.0Navigation überspringen
19,50 €
49 m² Verkaufsfläche
Immowelt logo

Ladenfläche zur Miete • provisionsfrei
19,50 €
/m²
49 m² Verkaufsfläche

Laden-/Gewerbeobjekt in Nürnberg

Die Mieteinheit ist Bestandteil eines zweigeschossigen Gewerbe- und Ladenzentrums mit Passage, in zentraler Lage in Nähe des Messezentrums. Das Objekt befindet sich in Neuselsbrunn 6 im Stadtteil Langwasser.
Das Gewerbe- und Ladenzentrum befindet sich in sehr guter Sichtlage und Wahrnehmung, ist Versorger der unmittelbaren Umgebung und befindet sich in der Nähe zweier stark frequentierten Hauptverkehrsadern, zwischen der Münchener Straße und der Otto-Bärnreuhter-Straße.

Die Mietfläche bestehen aus Laden- und Büroflächen in verschiedenen Größen.

MIETEINHEIT:
Die Mietfläche befindet sich im Erdgeschoss und kann vielseitig
genutzt werden, wie z.B. als Handelsfläche, Ausstellungfläche, Flächen für soziale Einrichtung, Schulungsräume, Büroräume, Sport- und Fitnessräume und Praxis- und medizinische Nutzflächen.
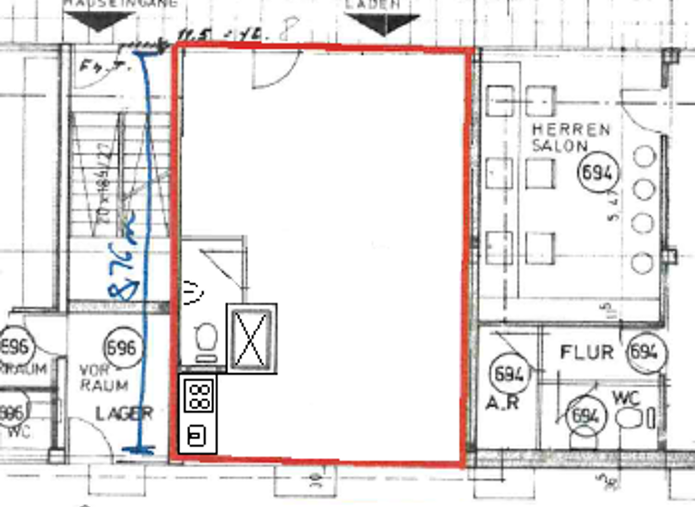
Die Mietfläche beinhaltet eine Großraumfläche (im Bedarf unterteilbar) sowie eine räumlich getrennte kleine Teeküche(offenstehend in Richtung Großraum) sowie eine separate Toilette.

Die Mieteinheit beinhaltet bodentiefe Schaufensterfronten (West- und Ostseite) und wurde im Jahr 2025 umfassend saniert.

Die Mietfläche ist ab sofort bezugsbereit.

Die unmittelbare Umgebung ist geprägt durch wohnwirtschaftliche und gewerbliche Nutzung. Das Gewerbe- und Ladenzentrum befindet sich innerhalb einer gewachsenen Lage.

Zur Vermietung steht nachfolgende Mieteinheit:

Mieteinheit EG 03:
EG 49,00 m²


Weitere Archivflächen können im UG angemietet werden.

Es besteht eine Werbeanlage direkt an der Fassade der Mietfläche.
Weiter besteht eine zusätzliche separat stehende Werbeanlage in
mittelbarer Nähe zur stark frequentierten Otto-Bärnreuther-Straße
in direkter Sichtlage.

PARKSITUATION:
In unmittelbarer Nähe sind öffentliche Parkplätze vorhanden.
Im Bedarf können auch Parkplätze direkt am Objekt für 50,00EUR je
Stellplatz angemietet werden.


MIETPREIS:
EG 03 955,50 EUR zzgl. NK+ MwSt.



WEITERE MÖGLICHE NUTZUNGEN:
Handelsflächen, Ausstellungfläche, Schulungsräume, Büroräume, Flächen für soziale Einrichtung, Sport- und Fitnessräume und Praxis- und medizinische Nutzflächen.

Merkmale

  • Teeküche
  • Bodenbelag: Fliesen
- bodentiefe Schaufenster mit Fensterflügel in
Alluminium-Kostruktion
- Toilette
- separate Teeküche/Sozialraum in offener Bauweise
- abgehängte Trockenbaudecke
- Grundbeleuchtung als LED-Unterputzsystem
- Bodenbelag in 60x60cm Feinsteinzeugfliese anthrazit

BESONDERHEITEN:
Deckenhöhen: 3,00 Meter

Grundrisse

Grundrisse
1 / 2

Bausubstanz und Energie

Energieausweis

Der Anbieter hat keine Daten zum Energieausweis hinterlegt.
Immowelt logo

Mietkosten

Warmmiete
1.139,50 €
Nettomiete
19,50 €/m²
955,50 €
Nebenkosten
94 €
Zusätzliche Kosten
Heizkosten
90 €
Provision für Mieter
provisionsfrei
Kaution
2866.5 €

Lage

address-icon
Neuselsbrunn 6NeuselsbrunnNürnberg (90471)
Das Gewerbe- und Ladenzentrum ist in zentraler Lage in Nähe
des Messezentrums. Das Objekt befindet sich in Neuselsbrunn 6
im Stadtteil Langwasser und befindet sich in
in der Nähe zweier stark frequentierten Hauptverkehrsadern,
zwischen der Münchener Straße und der Otto-Bärnreuhter-Straße,
in sehr guter Sichtlage und Wahrnehmung.

Die öffentlichen Verkehrsmittel sowie Geschäfte des täglichen
Bedarfs sind in unmittelbarer und mittelbarer Nähe vorhanden.

Weitere Informationen

Sonstiges EIGENTÜMER
Wird durch die iQ Immobilien Management GmbH vertreten. Auf Anfrage nennen wir Ihnen für weitere Verhandlungen gerne Name und Anschrift.

BEZUG
Die Übergabe des Objektes ist nach Vereinbarung möglich.

BESICHTIGUNG
Eine Besichtigung ist nur nach vorheriger Terminabsprache möglich. Bitte wenden Sie sich an unser Büro unter der Telefonnummer 0911 - 131 315 24

MAKLERCOURTAGE
keine

Die iQ Immobilien Management GmbH ist durch einen qualifizierten
Alleinauftrag mit der Vermittlung des Objektes beauftragt.

HAFTUNGSAUSSCHLUSS
Alle Angaben sind ohne Gewähr und stammen ausschließlich aus Informationen, die uns von unserem Auftraggeber zur Verfügung gestellt wurden. Wir übernehmen kein Gewähr für die Richtigkeit, Vollständigkeit und Aktualität dieser Angaben. Unsere Tätigkeit erfolgt auf der Grundlage unserer allgemeinen Geschäftsbedienungen, die Sie unter www.iq-immo-wohnen.de/AGB einsehen können.

Weitere Services

Lust auf eine Besichtigung?
Eine Frage zur Immobilie?
Mit einer persönlichen Nachricht hast du bessere Chancen auf eine Antwort.
Mit der Nutzung der oben angegebenen Telefonnummer oder durch Klicken auf „Kontaktieren“ akzeptierst Du die Allgemeinen Nutzungsbedingungen, denen Du jederzeit widersprechen kannst. Weitere Informationen zum Datenschutz

Über den Anbieter

Thumenberger Weg 60, 90491 Nürnberg
Herr Fabio DeuerleinDein Kontakt
Online-ID: 26LVR2Z8PCCU
Referenznummer: 4999/E3
Wie zufrieden bist du mit dieser Seite (nicht mit der Immobilie selbst)?