Version: 8.25.1Navigation überspringen
Mietkosten auf Anfrage
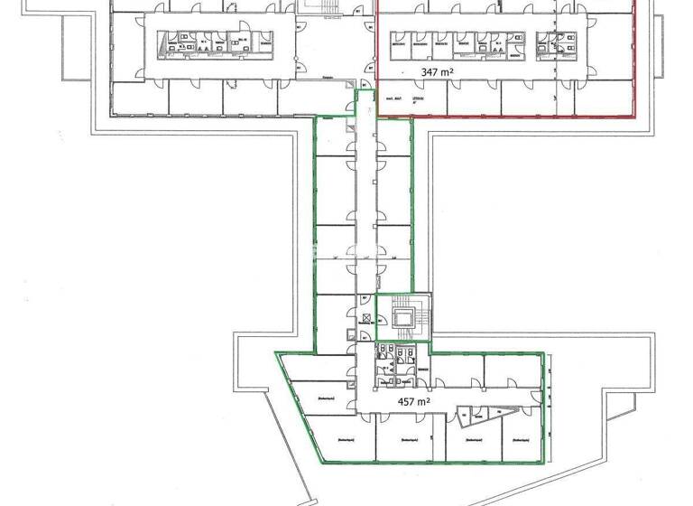
803 m² Bürofläche  •  teilbar ab 347 m²
Immowelt logo

Bürofläche zur Miete • provisionsfrei
Mietkosten auf Anfrage
803 m² Bürofläche  •  teilbar ab 347 m²

antaris Immobilien GmbH ** Flexible und effiziente Büroflächen in Erfurt-Bindersleben **

Das Bürogebäude wurde in den Jahren 1995-1996 erbaut und erfüllt die Anforderungen eines modernen, flexiblen Bürohauses. Es bietet eine großzügige, lichtdurchflutete Architektur mit einer effizienten Raumaufteilung, die sich perfekt für die Ansprüche von Unternehmen eignet. Das Gebäude bietet sowohl offenen als auch teilbaren Büroflächen, die individuell nach den Bedürfnissen der Mieter gestaltet werden können.

Aktuell zur Vermietung steht eine Büroeinheit im vierten Obergeschoss mit einer Fläche von insgesamt 803 m². Diese kann flexibel in zwei Bereiche unterteilt werden, wobei die Größenoptionen bei 357 m² und 456 m² liegen. Die Räume sind aktuell mit Teppichbodenbelägen und funktionalen WC-Bereichen ausgestattet. Eine Teeküche ist ebenfalls vorhanden. Der Eigentümer ist offen für die individuelle Gestaltung der Mietfläche, sodass der Innenausbau nach den Wünschen des Mieters erfolgen kann.

Für die Mieter stehen PKW-Stellplätze in der Tiefgarage zur Verfügung, die zusätzlich angemietet werden können. Langfristig wird mit einer signifikanten Reduzierung der Belegungsdichte gerechnet, sodass in der mittelfristigen Zukunft weitere Bürofläche im Gebäude zur Verfügung stehen werden.

Energieausweis vorhanden: ja
Energiekennwert: 207,00 kWh(m²-a)
Endenergieverbrauch Wärme: 144,80 kWh(m²-a)
Endenergieverbrauch Strom: 62,9 kWh(m²-a)
Energieträger: Erdgas schwer
Ausstelldatum: 04.12.2015
Art des Energieausweises: Verbrauch
Baujahr technische Anlage: 1995

Merkmale

  • frei ab sofort
  • Barrierefrei, Rollstuhlgerecht
  • Personenaufzug
  • Einbauküche
  • Bodenbelag: Teppich
  • Außen-Stellplatz, Tiefgarage
  • Raumaufteilung flexibel
Durch den einzigartigen Zuschnittes können unterschiedlichste Flächengrößen angeboten werden. In die Einheiten gelangen Sie über ansprechende Treppenhäuser, die jeweils über einen Personenaufzug verfügen. Alle Flächen sind somit barrierefrei zu erreichen. Gernerell ist der Eigentümer bereit die Flächen individuell nach Mieterwunsch her zu richten, d.h. der Innenausbau der jeweiligen Mietfläche erfolgt nach Absprache mit dem Mieter. PKW-Parkplätze können in der Tiefgarage angemietet werden.
Durch den einzigartigen Zuschnittes können unterschiedlichste Flächengrößen angeboten werden. In die Einheiten gelangen Sie über ansprechende Treppenhäuser, die jeweils über einen Personenaufzug verfügen. Alle Flächen sind somit barrierefrei zu erreichen. Gernerell ist der Eigentümer bereit die Flächen individuell nach Mieterwunsch her zu richten, d.h. der Innenausbau der jeweiligen Mietfläche erfolgt nach Absprache mit dem Mieter. PKW-Parkplätze können in der Tiefgarage angemietet werden.

Grundrisse

Grundrisse
1 / 1

Realisiere Dein Projekt

Bausubstanz und Energie

Energieausweis

Endenergiebedarf (Wärme)

Endenergiebedarf (Strom)

  • Baujahr1995
Immowelt logo

Mietkosten

Miete auf Anfrage
Provision für Mieter
provisionsfrei; mieterprovisionsfrei
Kaution
keine Angabe

Lage

address-icon
BinderslebenErfurt (99092)
Der Anbieter hat die genaue Adresse nicht freigegeben
Die Büroimmobilie in der Melchior-Bauer-Straße befindet sich im Erfurter Stadtteil Bindersleben, direkt in der Bürostadt Airfurt - einem etablierten und wachsenden Bürostandort am Flughafen Erfurt-Weimar. Die Lage zeichnet sich durch eine hervorragende Anbindung an den öffentlichen Nahverkehr sowie durch die Nähe zu wichtigen Verkehrsachsen aus.

Verkehrsanbindung:
. Öffentliche Verkehrsmittel: Die Haltestelle "Büropark / Airfurt" ist nur etwa 120 m entfernt und wird von mehreren Straßenbahnlinien bedient. So erreichen Sie den Hauptbahnhof in kurzer Zeit.
. Straßenanbindung: Über die Binderslebener Landstraße und die A71 ist das Objekt optimal an das überregionale Straßennetz angebunden.
. Flughafen: Der Flughafen Erfurt-Weimar ist nur wenige Minuten entfernt, was für Geschäfts-reisende eine ideale Lage darstellt.

Infrastruktur:
. Parkmöglichkeiten: Den Nutzern stehen insgesamt ausreichend PKW-Stellplätze zur Verfügung, was insbesondere für Pendler und Besucher von Vorteil ist.
. Gastronomie und Dienstleister: In der unmittelbaren Umgebung befinden sich eine öffentliche Kantine sowie weitere Dienst-leistungsunternehmen, die für eine gute Verpflegung sorgen.

Die Melchior-Bauer-Straße bietet eine attraktive Lage für Unternehmen, die eine gute Anbindung an den öffentlichen Nahverkehr, kurze Wege zum Flughafen und eine etablierte Büroinfrastruktur schätzen. Die Kombination aus verkehrsgünstiger Lage, ausreichenden Parkmöglichkeiten und einer vielfältigen Umgebung macht dieses Objekt zu einem interessanten Standort für Ihr Unternehmen.

Weitere Informationen

Sonstiges Widerrufsrecht
Sie können Ihre Vertragserklärung innerhalb von 14 Tagen ohne Angaben von Gründen in Textform (z.B. Brief, E-Mail) widerrufen. Die Frist beginnt nach Erhalt dieser Belehrung in Textform, jedoch nicht vor Vertragsabschluss und auch nicht vor Erfüllung unserer Informationspflichten gem. Art. 246 § 2 i.V.m. § 1 Abs. 1 und 2 EGBGB. Zur Wahrung der Widerrufsfrist genügt die rechtzeitige Absendung des Widerrufs. Im Falle eines wirksamen Widerrufs sind die beiderseits empfangener Leistungen zurück zu gewähren und ggf. bezogene Nutzungen (z.B. Zinsen) herauszugeben. Können Sie uns die empfangenen Leistungen sowie Nutzungen (z.B. Gebrauchsvorteile) nicht oder teilweise nicht oder nur in verschlechtertem Zustand zurückgewähren bzw. herausgeben, müssen Sie uns insoweit Wertersatz leisten. Dies kann dazu führen, dass Sie die vertraglichen Zahlungsverpflichtungen für den Zeitraum bis zum Widerruf gleichwohl erfüllen müssen. Verpflichtungen zur Erstattung von Zahlungen müssen innerhalb von 30 Tagen erfüllt werden.
Die Frist beginnt für Sie mit der Absendung Ihrer Widerrufserklärung, für uns mit deren Empfang. Das Widerrufsrecht erlischt vorzeitig, wenn der Vertrag von beiden Seiten auf Ihren ausdrücklichen Wunsch vollständig erfüllt ist, bevor Sie Ihr Widerrufsrecht ausgeübt haben.

Weitere Angebote finden Sie unter www.antaris-immobilien.de! Stichworte Sonstiges: EDV-Verkabelung, Kabelkanäle, Getrennte Damen- und Herren-WCs

Weitere Services

Lust auf eine Besichtigung?
Eine Frage zur Immobilie?
Mit einer persönlichen Nachricht hast du bessere Chancen auf eine Antwort.
Mit der Nutzung der oben angegebenen Telefonnummer oder durch Klicken auf „Kontaktieren“ akzeptierst Du die Allgemeinen Nutzungsbedingungen, denen Du jederzeit widersprechen kannst. Weitere Informationen zum Datenschutz

Über den Anbieter

Juri-Gagarin-Ring 96-98, 99084 Erfurt
partner badge
6 Jahre Partnerschaft
Frau Sandy ThorwirthDein Kontakt
Online-ID: 24CW4MZ2QIFE
Referenznummer: VMB45/G1/Eh7
Antaris Immobilien GmbH
Antaris Immobilien GmbH
Bewertung: 4,1 von 5 Sternen
Mit einer persönlichen Nachricht hast du bessere Chancen auf eine Antwort.
Mit der Nutzung der oben angegebenen Telefonnummer oder durch Klicken auf „Kontaktieren“ akzeptierst Du die Allgemeinen Nutzungsbedingungen, denen Du jederzeit widersprechen kannst. Weitere Informationen zum Datenschutz
Wie zufrieden bist du mit dieser Seite (nicht mit der Immobilie selbst)?