Version: 8.25.1Navigation überspringen
209.000 €
12 Zimmer  •  254 m²  •  1.937 m² Grundstück
Immowelt logo

Haus zum Kauf
209000 €
823 €/m²
12 Zimmer  •  254 m²  •  1.937 m² Grundstück

Zeitzeugnis mit Seele - historisches Anwesen auf weitläufigem Grund in Geising

Dieses außergewöhnliche Anwesen in Geising vereint historischen Charme mit solider Bausubstanz und großzügigen Platzverhältnissen. Ursprünglich im Jahr 1843 errichtet, erzählt das Haus eine lange Geschichte und begeistert heute mit seinem unverwechselbaren Charakter sowie zahlreichen liebevollen Details.
Auf einer Wohnfläche von ca. 254 m² und einer Nutzfläche von rund 369 m² erstreckt sich das Gebäude über drei Etagen und bietet mit insgesamt 12 Zimmern vielfältige Nutzungsmöglichkeiten - sei es als großzügiges Einfamilienhaus, Mehrgenerationenwohnen oder zur Kombination von Wohnen und Arbeiten unter einem Dach. Zwei Badezimmer sowie vier separate WCs sorgen dabei für hohen Komfort auch bei größerem Platzbedarf.
Das ca. 1.937 m² große Grundstück unterstreicht die Großzügigkeit des Anwesens und bietet viel Raum für Erholung, Gartenliebhaber oder individuelle Gestaltungsideen. Ein besonderes Highlight ist der Wintergarten, der sowohl vom Erdgeschoss als auch vom ersten Obergeschoss aus zugänglich ist und zu jeder Jahreszeit einen lichtdurchfluteten Rückzugsort mit Blick ins Grüne schafft.
Auch technisch wurde das Haus über die Jahre hinweg gepflegt und modernisiert: Die Gasthermen stammen aus den Jahren 2001 und 2009, während ein Teil der Elektrik im Jahr 2000 erneuert wurde. Bereits 1995 erhielt das Gebäude eine Außendämmung, und im Jahr 1997 wurden die Fenster teilweise von klassischen Holz-Doppelfenstern auf doppelt verglaste Kunststofffenster umgestellt. Das Dach, stilvoll mit Schiefer gedeckt, wurde 1990 erneuert und fügt sich harmonisch in den historischen Gesamteindruck ein.

Dieses Haus ist eine seltene Gelegenheit für Liebhaber historischer Immobilien, die Wert auf Charme, Großzügigkeit und Entwicklungspotenzial legen.

Merkmale

  • 1.937 m² Grundstück
  • Keller
  • 2 Stellplätze: Garage, Außen-Stellplatz

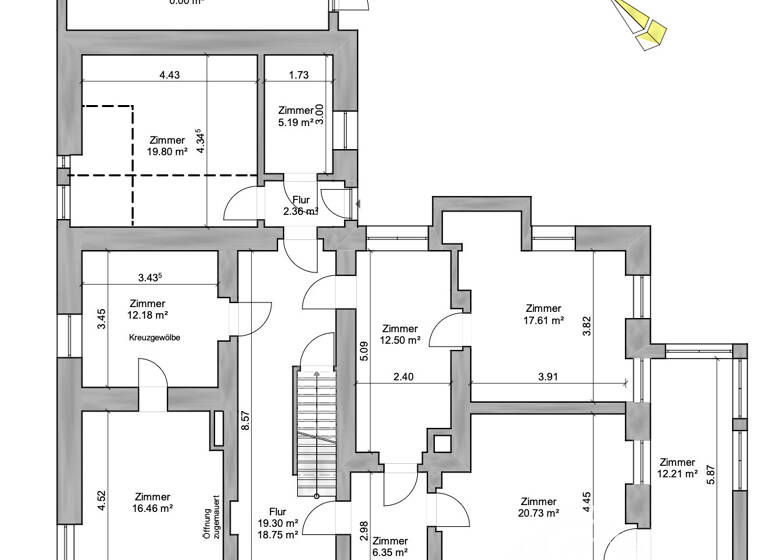
Grundrisse

Grundrisse
1 / 3

Realisiere Dein Projekt

Bausubstanz und Energie

Möchtest du Details zum Energieverbrauch?info_energy_calculation-icon
  • Baujahr1843
  • Zustand der Immobilierenovierungsbedürftig / sanierungsbedürftig
  • EnergieträgerGas
Immowelt logo

Preisdetails

Kaufpreis
209000 €
822,83 €/m²
Provision für Käufer
Käuferprovision 3,57% (inkl. MwSt.) des beurkundeten Kaufpreises
Weitere Preisinformationen
1 Stellplatz
1 Garagenstellplatz
Geschätzte Gesamtkosten
232.136 €1
Kaufpreis
209.000 €
Notarkosten (1,5%)
3.135 €
Grunderwerbsteuer (5,5%)
11.495 €
Provision für Käufer (3,57%)
7.461 €
Grundbucheintrag (0,5%)
1.045 €
1Der angezeigte Wert ist eine automatisch berechnete Schätzung von immowelt.
2Bei den Angaben handelt es sich um ortsübliche Werte. Individuelle Kosten können abweichen.

Lage

address-icon
Geising (01778)
Der Anbieter hat die genaue Adresse nicht freigegeben
Das Haus befindet sich in ruhiger und zugleich zentraler Lage im idyllischen Ort Geising, einem Ortsteil der Stadt Altenberg im Osterzgebirge. Die Umgebung ist geprägt von einer charmanten Mischung aus gepflegten Wohnhäusern, viel Grün und einer naturnahen Atmosphäre, die zum Entspannen und Durchatmen einlädt.
Einkaufsmöglichkeiten für den täglichen Bedarf, kleinere Geschäfte sowie gastronomische Angebote sind bequem erreichbar. Auch Einrichtungen wie Schule, Kindergarten und medizinische Versorgung befinden sich in der näheren Umgebung.
Die Lage bietet zudem einen idealen Ausgangspunkt für Freizeit- und Naturaktivitäten. Wander- und Radwege beginnen praktisch vor der Haustür, und im Winter locken zahlreiche Wintersportmöglichkeiten in der Region. Durch die gute Anbindung an die umliegenden Städte sowie die Nähe zur tschechischen Grenze ist sowohl Mobilität als auch Abwechslung garantiert.
Insgesamt vereint diese Lage ruhiges Wohnen im Grünen mit einer guten Infrastruktur und vielfältigen Freizeitmöglichkeiten.

Weitere Informationen

Stichworte Nutzfläche: 369,00 m², Anzahl der Schlafzimmer: 4, Anzahl der Badezimmer: 2, Anzahl der separaten WCs: 4

Weitere Services

Lust auf eine Besichtigung?
Eine Frage zur Immobilie?
Nachricht hinzufügen
Mit der Nutzung der oben angegebenen Telefonnummer oder durch Klicken auf „Kontaktieren“ akzeptierst Du die Allgemeinen Nutzungsbedingungen, denen Du jederzeit widersprechen kannst. Weitere Informationen zum Datenschutz

Über den Anbieter

Buchholzweg 1, 01445 Radebeul
partner badge
Partnerschaft
Herr Justus WeissenbornDein Kontakt
Online-ID: 26H3LDTYAJI8
Referenznummer: SR-688
Steinrücken Immobilien
Steinrücken Immobilien
Nachricht hinzufügen
Mit der Nutzung der oben angegebenen Telefonnummer oder durch Klicken auf „Kontaktieren“ akzeptierst Du die Allgemeinen Nutzungsbedingungen, denen Du jederzeit widersprechen kannst. Weitere Informationen zum Datenschutz
Wie zufrieden bist du mit dieser Seite (nicht mit der Immobilie selbst)?