Bezugsfreie 2-Zimmer-Wohnung in Alt-Hohenschönhausen
- Interaktiver 360°-Rundgang verfügbar -
Im 3. Obergeschoss eines klassischen Berliner Mehrfamilienhauses aus den 1930er Jahren befindet sich diese helle 2-Zimmer-Wohnung mit einer Wohnfläche von ca. 54 m².
Das Gebäude wurde im Jahr 1997 umfassend kernsaniert und präsentiert sich bis heute in einem sehr gut instand gehaltenen Zustand.
Die Wohnung überzeugt durch einen funktionalen und gut nutzbaren Grundriss mit angenehm geschnittenen Räumen sowie eine verglaste Loggia. Durch die Lage im oberen Geschoss entsteht eine helle und freundliche Wohnatmosphäre. Der Boden ist mit Laminat ausgelegt, darunter befinden sich baujahrestypische Dielen.
Sowohl die Wärme- wie auch die Warmwasserversorgung erfolgen über die städtische Fernwärmeversorgung.
Die Wohnung ist bezugsfrei und eignet sich daher gleichermaßen für Eigennutzer wie auch für Kapitalanleger.
Die Immobilie auf einen Blick:
- Ca. 54 m² Wohnfläche - 3. Obergeschoss - Vollständige Kernsanierung im Jahr 1997 - Baujahr 1930 - Fernwärme (Heizung & Warmwasser) - Funktionaler Grundriss - Keller - Bezugsfrei
Das monatliche Hausgeld i.H.v. 204€ (gerundet) setzt sich wie folgt zusammen:
Umlagefähige Bewirtschaftungskosten i.H.v. 129,97€ Nicht umlagefähige Bewirtschaftungskosten i.H.v. 47,44€ Zuführung zur Erhaltungsrücklage i.H.v. 26,32€
Für weitere Informationen sowie zur Vereinbarung eines Besichtigungstermins stehen wir Ihnen gerne zur Verfügung. Senden Sie uns einfach eine Anfrage oder rufen Sie uns an.
Merkmale
Bezug: Sofort
4. Geschoss
Einbauküche
Keller
Badezimmer: Badewanne, Bad mit Fenster
Bodenbelag: Fliesen, Laminat
Loggia
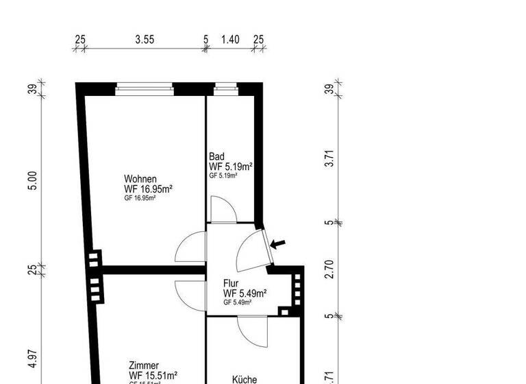
Grundrisse
Grundrisse
1 / 1
Virtueller Rundgang
3D tour
Realisiere Dein Projekt
Bausubstanz und Energie
Energieausweis
C
Baujahr1930
Zustand der ImmobilieGepflegt
EnergieträgerFernwärme
Preisdetails
Kaufpreis
217500 €217.500 €
4.027,78 €/m²
Hausgeld
204 €204 €
Provision für Käufer
3,57% inkl. Ust. Die Käuferprovision i.H.v. 3,57% inkl. Ust. ist auf den Kaufpreis zu zahlen. Die Provision ist mit Unterschrift des notariell beurkundeten Kaufvertrages verdient und fällig.
Geschätzte Gesamtkosten
242.666 €1
Kaufpreis
217.500 €
Kaufnebenkosten
25.166 €
2
Notarkosten (1,5%)
3.263 €
Grunderwerbsteuer (6%)
13.050 €
Provision für Käufer (3,57%)
7.765 €
Grundbucheintrag (0,5%)
1.088 €
1Der angezeigte Wert ist eine automatisch berechnete Schätzung von immowelt.
2Bei den Angaben handelt es sich um ortsübliche Werte. Individuelle Kosten können abweichen.
Lage
Alt-Hohenschönhausen, Berlin (13055)
Der Anbieter hat die genaue Adresse nicht freigegeben
Die Wohnung befindet sich im Berliner Ortsteil Alt-Hohenschönhausen im Bezirk Lichtenberg. Die Umgebung ist geprägt von gewachsenen Wohnstrukturen mit einer guten Infrastruktur und kurzen Wegen für den täglichen Bedarf.
In der näheren Umgebung befinden sich zahlreiche Einkaufsmöglichkeiten, darunter Supermärkte, Bäckereien, Apotheken sowie verschiedene gastronomische Angebote. Ergänzend bietet das Linden-Center Hohenschönhausen mit zahlreichen Geschäften, Dienstleistungen und Gastronomie ein umfangreiches Einkaufsangebot.
Für Erholung und Freizeit bieten sich der Obersee sowie der Orankesee an, die zu Spaziergängen, sportlichen Aktivitäten und zum Aufenthalt im Grünen einladen.
Eine gute Anbindung an den öffentlichen Nahverkehr ist durch mehrere Straßenbahnlinien (M5, M6 und M13) gewährleistet. Diese verbinden den Standort unter anderem direkt mit Alexanderplatz, Hackescher Markt und dem Berliner Hauptbahnhof. Ergänzend bestehen Busverbindungen sowie Anschluss an den S-Bahnhof Hohenschönhausen, wodurch eine schnelle Verbindung in weitere Berliner Stadtteile gegeben ist.
Weitere Informationen
Sonstiges
Erstanfrage bitte NUR schriftlich mit Angabe aller Kontaktdaten.
Alle Angaben beruhen auf Informationen des Eigentümers, für welche wir keine Haftung übernehmen.
Stichworte
Anzahl der Badezimmer: 1, Anzahl Loggias: 1, Balkon-Terrassen-Fläche: 2,65 m², Bundesland: Berlin, 5 Etagen, modernisiert: 1997