Hochwertige 3-Zimmer-Neubauwohnung 83 m² in Ried Top-Lage
Zur Vermietung steht eine hochwertige, helle 3-Zimmer-Neubauwohnung (Baujahr 2026). Die Wohnung befindet sich im 2. Obergeschoss eines modernen Ärztehauses, ist zentral gelegen im Herzen von Ried und bequem barrierefrei über einen Aufzug erreichbar.
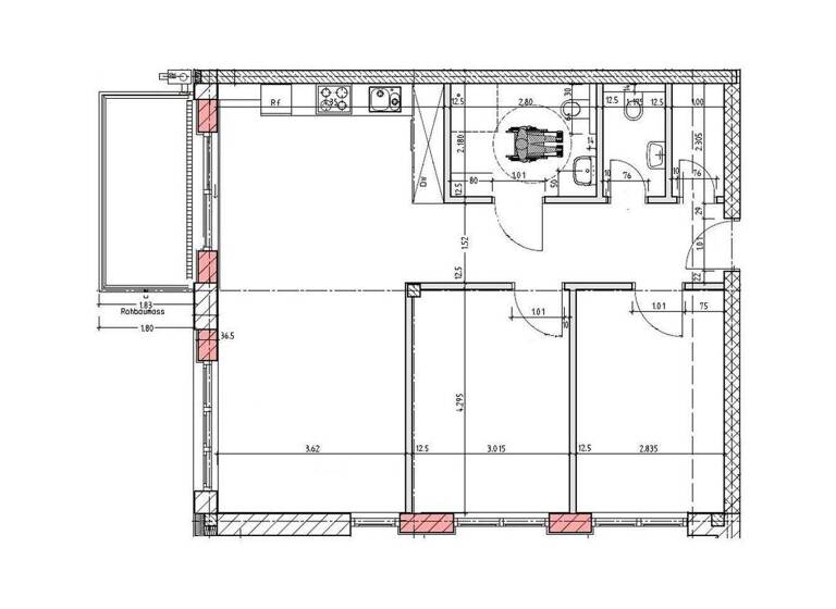
Mit einer Wohnfläche von 83 m² überzeugt die Wohnung durch einen gut durchdachten Grundriss.
Zimmer: Schlafzimmer, Kinder-/Arbeitszimmer.
Wohnbereich: Großzügiger, heller Wohn-/Essbereich mit Zugang zum sonnigen Balkon (Süd-West-Ausrichtung).
Bad: Modernes Badezimmer mit Dusche, Handtuchheizkörper und Platz für Waschmaschine und Trockner, sowie ein separates Gäste-WC.
Küche: voll ausgestattet mit hochwertigen Geräten, robuste und pflegeleichte Fronten mit anti-fingerprint Beschichtung, Arbeitsplatte aus Stein.
Komfort: Fußbodenheizung, hochwertiger Parkettboden, Abstellraum auf derselben Etage, elektrische Rollläden
Energie: Fernwärme - sorgt für niedrigere Betriebskosten, Energiestandard KFW-Effizienzhaus 55.
Parken: Ein Tiefgaragenstellplatz kann dazu gemietet werden (85 €/Monat). Der Zugang ist barrierefrei mit Aufzug möglich.
Merkmale
Bezug: sofort
2. Geschoss
Einbauküche
Personenaufzug
Tiefgarage
Balkon
Barrierefrei
Bad mit Dusche
Grundrisse
Grundrisse
1 / 1
Realisiere Dein Projekt
Bausubstanz und Energie
Der Anbieter hat keine Informationen zum Energieverbrauch bereit gestellt.
Top-Mikrolage im Herzen des Ortes. Infrastruktur: Kita, Hausarzt und Supermarkt Edeka befinden sich in direkter Nähe. Infrastruktur (im Umkreis von 5 km): Lebensmittel-Discount, Allgemeinmediziner, Kindergarten, Öffentliche Verkehrsmittel
Weitere Informationen
Sonstiges
Energieträger: Fernwärme Energieausweis nicht vorhanden
Makleranfragen nicht erwünscht. Nach § 7 UWG sind unaufgeforderte Kontaktaufnahmen durch Makler ohne ausdrückliche Einwilligung des Empfängers verboten!
ohne-makler (OM) ist weder Anbieter noch Vermittler der Immobilie. OM betreibt eine Plattform für Immobilieneigentümer, die unter anderem die gleichzeitige Veröffentlichung einzelner Inserate auf mehreren Immobilienportalen ermöglicht. Die Inhalte dieser Inserate werden ausschließlich von Dritten verantwortet. Für die Richtigkeit, Vollständigkeit oder Rechtmäßigkeit der Angaben übernimmt OM keine Haftung. Hinweise auf mögliche Rechtsverstöße können jederzeit gemeldet werden und werden nach Prüfung umgehend bearbeitet.
Stichworte
Anzahl der Schlafzimmer: 2, Anzahl der Badezimmer: 1, Anzahl der separaten WCs: 1, Anzahl Balkone: 1, Bundesland: Bayern, 3 Etagen