Version: 8.25.1Navigation überspringen
522.800 €
4 Zimmer  •  101,8 m²  •  318 m² Grundstück
Immowelt logo

Reihenmittelhaus zum Kauf • provisionsfrei
522800 €
5.136 €/m²
4 Zimmer  •  101,8 m²  •  318 m² Grundstück

Attraktiver Neubau: Reihenhaus mit schönem Sonnengarten! Provisionsfrei!

Willkommen Familien. Verwirklichen Sie Ihren Traum vom eigenen Heim in Sassenberg und wählen Ihr Wunschgrundstück nach Ihren persönlichen Vorlieben einfach aus!

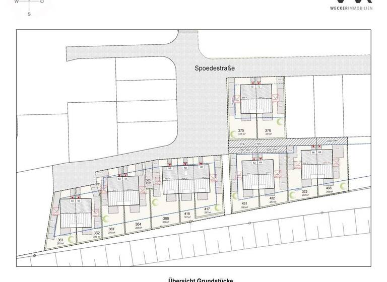
Angeboten werden 13 Kaufgrundstücke, die mit Doppelhaushälften und Reihenhäuser ohne Keller schlüsselfertig bebaut werden. Die Grundstücksgrößen von ca. 221 m² bis ca. 335 m² verfügen über familienfreundliche Gärten und ansprechende Ausrichtung nach Süden.

Moderne Grundrisse mit offenem Wohn-/Ess-/Küchenbereich und genehmigter Wohnfläche je Haushälfte von ca. 101 m² (kleine Variante mit weißer Putzfassade) und optional 131 m² (große Variante mit Klinkerfassade und Putzelementen) sehen einen klimafreundlichen Neubau mit Effizienzhaus-Stufe 40 vor. Die hochwertige Lärmschutzwand schließt das neue Baugebiet zum Süden hin vorteilhaft ab.

Beispielhaft wird in diesem Exposé das RH mit der Hausnummer 56 (siehe Lageplan) als kleine Variante über 2 Ebenen (Grundriss ca. 101 m²) beschrieben. Das Grundstück hat eine Fläche von ca. 318 m². Das angebotene Reihenhaus ist nur in dieser kleinen Variante verfügbar.

Merkmale

  • Bezug: 2027
  • 318 m² Grundstück
  • Gäste-WC
  • Kein Keller
  • Terrasse
  • Garten
  • 2 Stellplätze: Außen-Stellplatz
Im Kaufpreis sind Bauantrag, Architektenleistung, Hausanschlüsse, Gebäudeeinmessung, usw. enthalten. Des Weiteren sind schicke Wandfliesen im Bad und WC mit glänzender Oberfläche in weiß und Bodenfliesen in anthrazit matt inkludiert. Bodenbelege im Wohnbereich und Malerarbeiten sind nicht im Kaufpreis enthalten - wählen Sie komfortabel aus und bezahlen den Aufpreis oder sparen Sie mittels Eigenleistung.

Grundrissänderungen sind nach Absprache möglich.

Die Hauszuwegungen und Terrassen werden mittels anthrazit-farbenen Betonpflastersteinen ca. 20 x 20 cm erstellt, Pkw-Stellplätze mit anthrazit-farbenen, versickerungsfähigen Pflaster ca. 20 x 30 cm.

Jedes Reihenhaus erhält jeweils eine frostsichere Außenzapfstelle. Die Fenster und die Fenstertüren werden mit Wärmeschutzverglasung verbaut.

Weitere Ausstattungsmerkmale:

+ Fenster mit Dreifachverglasung
+ elektrische Rollläden
+ Fußbodenheizung
+ bodengleich gefliester Duschbereich
+ elegante Sanitärobjekte
+ zusätzlicher Badheizkörper
+ Installation einer Photovoltaik-Anlage
+ 2 Pkw-Stellplätze

Zukunftsorientiertes Wohnen: Zur Sicherstellung der E-Mobilität erhält ein Pkw-Stellplatz eine Vorrüstung für die Installation einer Ladebox - sie ist nicht im Kaufpreis enthalten und bei Bedarf durch den Erwerber auf seine Kosten zu erstellen. Zur Optimierung der Energieverteilung ist ein Lastmanagementsystem vorgesehen.

Auf fossile Brennstoffe zur Beheizung wird bewusst verzichtet, stattdessen wird eine fortschrittliche Luft-Wasser Wärmepumpe installiert. Zur energetischen Unterstützung des Heizsystems wird auf den Dachflächen jeweils eine Photovoltaikanlage angebracht.

Grundrisse

Grundrisse
1 / 3

Realisiere Dein Projekt

Bausubstanz und Energie

Möchtest du Details zum Energieverbrauch?info_energy_calculation-icon
  • Zustand der ImmobilieProjektiert
  • HaustypKfW 40
  • HeizungsartFußbodenheizung
Immowelt logo

Preisdetails

Kaufpreis
522800 €
5.135,56 €/m²
Provision für Käufer
provisionsfrei
Geschätzte Gesamtkosten
567.238 €1
Kaufpreis
522.800 €
Notarkosten (1,5%)
7.842 €
Grunderwerbsteuer (6,5%)
33.982 €
Grundbucheintrag (0,5%)
2.614 €
1Der angezeigte Wert ist eine automatisch berechnete Schätzung von immowelt.
2Bei den Angaben handelt es sich um ortsübliche Werte. Individuelle Kosten können abweichen.

Lage

address-icon
Christian-Rath-Straße 2Sassenberg (48336)
Südlich der Christian-Rath-Straße (genauer Spoedestraße 48 - 72, in Google Maps noch nicht verfügbar), im Geltungsbereich des Bebauungsplanes (B-Plan), erstreckt sich das frische Baugebiet, das für die Errichtung von Wohnhäusern zum Ende 2024 freigegeben wurde. Dieses Gebiet grenzt im weiteren Osten an den Tatenhauser Weg, im Westen an die Schürenerstraße, und bietet durch seine Nähe zur Innenstadt eine attraktive Lage für Eigenheime und Wohnungen. In der näheren Umgebung befinden sich mehrere Kindergärten, Schulen und Freizeitmöglichkeiten wie z. B. ein Sportplatz und Wanderwege - eine attraktive Gegend für junge Familien. Auch die Nahversorgung ist durch naheliegende Supermärkte und Geschäfte sehr gut gewährleistet.

Sassenberg ist eine kleine Stadt im nordrhein-westfälischen Kreis Warendorf. Sie befindet sich etwa 30 Kilometer nordwestlich von Münster und rund 20 Kilometer südwestlich von Hamm und liegt fast gleich weit entfernt von beiden größeren Städten im Münsterland. Hier lebt es sich grün und friedlich. An das regionale Verkehrsnetz ist Sassenberg öffentlich gut angebunden.

Weitere Informationen

Sonstiges Die Erschließungsarbeiten sind ausgeführt und eine Bebauung kann unmittelbar erfolgen. Sobald die drei Reihenhäuser einer Einheit verkauft wurden, kann mit den Bauarbeiten begonnen werden.

Alle Gebäude werden als Effizienzhäuser-40 Standard erstellt. Dabei werden die Vorgaben der KfW-Programme 297/298 (Klimafreundliches Wohngebäude (ohne QNG)), Stand 03/2023, umgesetzt. Eine KfW-Förderung, bis maximal 100.000,00 € als Kredithöchstbetrag, ist aus den Programmen möglich. Sprechen Sie uns gern an.

Finanzierung schon gesichert? Wir planen mit Ihnen gemeinsam Ihren Grundstückskauf und auch Ihre Hausfinanzierung inklusive Fördermittel. Als Franchisepartner der Dr. Klein Privatkunden AG bieten Ihnen unsere zertifizierten Finanzierungsberater maßgeschneiderte Finanzierungslösungen aus einem Angebot von über 400 Bankpartnern. Rufen Sie einfach an und lassen Sie sich zu Ihrem persönlichen Finanzierungsangebot beraten.

SORGLOS VERKLEINERN? Der Schritt im Alter noch mal die Immobilie zu wechseln ist gar nicht so groß. Wir erledigen alles Nötige für Sie. Von Bewertung über Verkauf bis Behördengänge. Starten Sie lieber früher als später, so können alle Ihre Wünsche berücksichtigt werden. Stichworte Anzahl der Schlafzimmer: 3, Anzahl der Badezimmer: 1, Anzahl Terrassen: 1

Weitere Services

Lust auf eine Besichtigung?
Eine Frage zur Immobilie?
Nachricht hinzufügen
Mit der Nutzung der oben angegebenen Telefonnummer oder durch Klicken auf „Kontaktieren“ akzeptierst Du die Allgemeinen Nutzungsbedingungen, denen Du jederzeit widersprechen kannst. Weitere Informationen zum Datenschutz

Über den Anbieter

Nordstraße 55, 59269 Beckum
partner badge
6 Jahre Partnerschaft
Herr Oliver WeckerDein Kontakt
Online-ID: 26Y7FZYNARMF
Referenznummer: 202648336RH56_58_60
Wecker Immobilien e.K.
Wecker Immobilien e.K.
Bewertung: 4,8 von 5 Sternen
Nachricht hinzufügen
Mit der Nutzung der oben angegebenen Telefonnummer oder durch Klicken auf „Kontaktieren“ akzeptierst Du die Allgemeinen Nutzungsbedingungen, denen Du jederzeit widersprechen kannst. Weitere Informationen zum Datenschutz
Wie zufrieden bist du mit dieser Seite (nicht mit der Immobilie selbst)?