Version: 8.25.2Navigation überspringen
258.800 €
2 Zimmer  •  40,9 m²  •  1. Geschoss
Immowelt logo

Wohnung zum Kauf
258800 €
6.058 €/m²
2 Zimmer  •  40,9 m²  •  1. Geschoss

WOHNEN AM PARK - Urban & Grün

Vermittlung - Finanzierung - Vermietung

Die Vorsorgewohnungen im Projekt Wohnen am Park - Urbanes Leben mit Grünblick sind eine attraktive Möglichkeit um für die eigene Zukunft vorzusorgen - Sicherheit für mehrere Generationen garantiert!

In ruhiger Lage, eingebettet in eine verkehrsberuhigte Sackgasse direkt am idyllischen Arik-Brauer-Park, entsteht ein exklusives Wohnprojekt mit rund 150 hochwertig ausgestatteten Eigentumswohnungen - ideal für alle, die urbanes Wohnen mit Naturnähe verbinden möchten. Die smart geplanten Wohnflächen von ca. 30?m² bis 130?m² bieten für jede Lebensphase das passende Zuhause.

* Solide, attraktive Renditen
* Sicherer Vermögenswert durch Eintragung ins Grundbuch, voraussichtlich konstante Wertsteigerung über einen Betrachtungszeitraum von mehreren Jahren
* Regelmäßige Mieteinnahmen - Inflationsschutz dank jährlicher Indexierung
* Zahlreiche steuerliche Vorteile
* Variabler Eigenmitteleinsatz

Gerne unterstützen wir Sie auch bei der Finanzierung und stellen einen Kontakt zu unseren Kooperationspartnern her.

Ein Prozess - Ein Ansprechpartner

Damit die gesamte Abwicklung zeit- und kostensparend abläuft, bieten wir Ihnen eine umfassende Rundumbetreuung:

1. Individuelle Bedarfsanalyse und Beratung- somit werden wir Ihren persönlichen Bedürfnissen gerecht.
2. Anschaffung über Ihren IMMOcontract-Berater - wir kümmern uns um die Abwicklung des Kaufs.
3. Finanzierung über unsere Kooperationspartner - gemeinsam bieten wir Ihnen attraktive Finanzierungslösungen.
4. Vermietung durch Ihren IMMOcontract-Berater - wir finden für Sie geeignete, bonitätsstarke Mieter.

Der korrespondierende Eigennutzerpreis beträgt EUR 278.300,-.

Geplante Fertigstellung: 2028 - sichern Sie sich schon dieses Top-Investment im Grünen mitten in der Stadt!
 

Wir weisen darauf hin, dass zwischen dem Vermittler und dem zu vermittelnden Dritten ein familiäres oder wirtschaftliches Naheverhältnis besteht.

Der Vermittler ist als Doppelmakler tätig.

Infrastruktur / Entfernungen

Gesundheit
Arzt <500m
Apotheke <500m
Klinik <500m
Krankenhaus <1.500m

Kinder & Schulen
Schule <500m
Kindergarten <500m
Universität <1.000m
Höhere Schule <1.000m

Nahversorgung
Supermarkt <500m
Bäckerei <500m
Einkaufszentrum <500m

Sonstige
Geldautomat <500m
Bank <500m
Post <500m
Polizei <500m

Verkehr
Bus <500m
U-Bahn <500m
Straßenbahn <500m
Bahnhof <500m
Autobahnanschluss <4.500m

Angaben Entfernung Luftlinie / Quelle: OpenStreetMap

Merkmale

  • Bezug: Ende 2028
  • 1. Geschoss
  • offene Küche
  • Personenaufzug
  • Barrierefrei
  • Badewanne

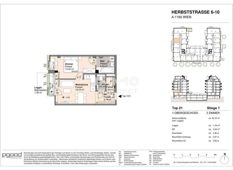
Grundrisse

Grundrisse
1 / 1

Bausubstanz und Energie

Heizwärmebedarf (HWB)

B

Gesamtenergieeffizienz (fGEE)

A
  • Baujahr2026
  • Zustand der ImmobilieNeubau, renoviert / saniert
  • EnergieträgerFernwärme
Immowelt logo

Preisdetails

Kaufpreis
258800 €
6.058,05 €/m²
Provision für Käufer
3% des Kaufpreises zzgl. 20% USt.

Lage

address-icon
Wien (1160)
Perfekte Infrastruktur & urbaner Lifestyle

Die Lage überzeugt mit ausgezeichneter öffentlicher Anbindung: Die U6-Station Burggasse-Stadthalle sowie die Straßenbahnlinien 6, 9, 18, 49 und 52 sorgen für eine schnelle Verbindung in alle Richtungen. Der Autobus 48A bringt Sie in wenigen Minuten direkt zum Ring - ideal für den schnellen Weg ins Zentrum.

Auch die Nahversorgung lässt keine Wünsche offen: Sämtliche Geschäfte des täglichen Bedarfs befinden sich in unmittelbarer Nähe. Die beliebte Lugner City mit vielfältigen Shops, Gastronomie und Kino ist fußläufig erreichbar. Ergänzt wird das Angebot durch die Westbahnhof-City, die nicht nur durch ihre Vielzahl an Geschäften punktet, sondern auch mit einem Supermarkt, der an Sonn- und Feiertagen geöffnet hat - ein echter Pluspunkt. In direkter Umgebung liegt zudem die Mariahilfer Straße, eine der beliebtesten Einkaufsmeilen Wiens mit zahlreichen Flagship-Stores, Boutiquen und Cafés.

Kulinarik und urbanes Flair bieten der trendige Brunnenmarkt und der Yppenplatz, während der angrenzende 7. und 8. Bezirk mit seiner vielfältigen Lokalszene zum Genießen und Verweilen einlädt. Für Erholung im Grünen sorgen der direkt vor der Haustür gelegene Arik-Brauer-Park sowie die schnell erreichbaren Naherholungsgebiete Wilhelminenberg und Schönbrunn. Wer mit dem Auto unterwegs ist, profitiert von der schnellen Anbindung an die Stadtausfahrten über den nahegelegenen Gürtel.

Weitere Informationen

Stichworte West-Balkon/Terrasse, Fahrradraum, Anzahl der Badezimmer: 1, Anzahl der separaten WCs: 1, Anzahl Loggias: 1, Balkon-Terrassen-Fläche: 1,78 m², Kellerfläche: 2,54 m², Bundesland: Wien, 7 Etagen

Weitere Services

Lust auf eine Besichtigung?
Eine Frage zur Immobilie?
Nachricht hinzufügen
Mit der Nutzung der oben angegebenen Telefonnummer oder durch Klicken auf „Kontaktieren“ akzeptierst Du die Allgemeinen Nutzungsbedingungen, denen Du jederzeit widersprechen kannst. Weitere Informationen zum Datenschutz

Über den Anbieter

Schnirchgasse 17, 1030 WIEN
Herr Michael SchwabeDein Kontakt
Online-ID: 26LBH5L379JB
Referenznummer: OBGC20250826162045020979dc52374
Wie zufrieden bist du mit dieser Seite (nicht mit der Immobilie selbst)?