

Bürofläche zur Miete17,47 €/m²20 Zimmer • 372,2 m² Bürofläche
17,47 €
/m²
20 Zimmer • 372,2 m² Bürofläche
Büro in Zentraler Lage von Mariendorf zu mieten
Merkmale
- Bezug: Nach Vereinbarung
- Personenaufzug, Lastenaufzug
- Bodenbelag: Teppich
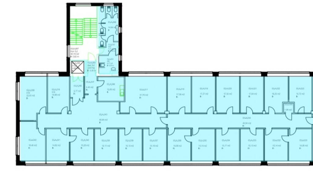
Grundrisse
Verschaffe dir einen genauen Überblick über die Raumaufteilung.

Realisiere Dein Projekt
Bausubstanz und Energie
Energieausweis
Endenergieverbrauch (Wärme)
Endenergieverbrauch (Strom)
- Baujahr1938
- Zustand der ImmobilieGepflegt
- HeizungsartZentralheizung
Mietkosten
Warmmiete
8.671,60 €
Nettomiete
17,47 €/m²
6.501,60 €
Nebenkosten
2.170 €
Heizkosten
in Warmmiete enthalten
Provision für Mieter
provisionsfreie Vermietung
Kaution
3 Warmmieten
Weitere Preisinformationen
Nettokaltmiete: 6.501,60 EUR
Lage

Großbeerenstr. 2-10, Mariendorf, Berlin (12107)
Weitere Informationen
Weitere Services
Lust auf eine Besichtigung?
Eine Frage zur Immobilie?
Über den Anbieter
Galvanistr.3, 10587 Berlin
6 Jahre Partnerschaft + Diamond Partner
Anton TeklicDein Kontakt
Online-ID: 24LNVNWKSLQV
Referenznummer: ITI 12189

ImmoTek Immobilien e.K.
Bewertung: 4,9 von 5 Sternen
Wie zufrieden bist du mit dieser Seite (nicht mit der Immobilie selbst)?

