Version: 8.26.0Navigation überspringen
990.000 €
2 Zimmer
Immowelt logo

Laden zum Kauf
990000 €
2 Zimmer

Moderne Gewerbeinheit/Bürofläche

Zum Verkauf steht eine exklusive Gewerbe- bzw. Bürofläche in einem repräsentativen Neubau an der stark frequentierten Route de Thionville in Luxemburg-Stadt.
Die Einheit überzeugt durch ihre moderne Architektur, hohe Energieeffizienz (Klasse A) und die flexible Raumgestaltung, die individuell an Ihre geschäftlichen Bedürfnisse angepasst werden kann.

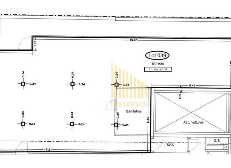
Die Bürofläche umfasst 164,24 m² und verfügt über große bodentiefe Fenster, die für ein helles und freundliches Arbeitsumfeld sorgen.
Zusätzlich steht ein Archivraum mit 56 m² im Untergeschoss zur Verfügung.
Auf Wunsch kann eine interne Verbindungstreppe zwischen Büro- und Archivbereich geschaffen werden, wodurch eine Gesamtfläche von rund 220 m² entsteht.

Der Außenbereich mit Terrasse bietet zusätzlichen Komfort und Raum für Pausen oder Kundengespräche im Freien.
Tiefgaragenstellplätze sind im Gebäude vorhanden.

Ausstattung & Highlights

Erstbezug in einem modernen Neubau

Gesamtfläche ca. 220 m²
- Bürofläche: 164,24 m²
- Archivfläche: 56 m²

Energieklasse A (energieeffiziente Bauweise)

Bodentiefe Fenster mit viel Tageslicht

Flexible Raumgestaltung (Open Space oder Einzelbüros möglich)

Außenbereich mit Terrasse

Tiefgaragenstellplätze im Gebäude (200.000€ pro Stellplatz)

Option auf interne Verbindungstreppe zwischen Büro und Archiv

Repräsentative Lage und moderne Architektur

Merkmale

  • Bezug: Ab sofort

Grundrisse

Grundrisse
1 / 2
Immowelt logo

Preisdetails

Kaufpreis
990000 €
Provision für Käufer
Bitte beachte, das Angebot beinhaltet bei Vertragsabschluss die Zahlung einer Provision. Weitere Informationen erhältst Du vom Anbieter.

Lage

address-icon
Route de Thionville 154Luxembourg (2610)

Weitere Informationen

Stichworte Wohnfläche: 220,00 m², Gesamtfläche: 220,00 m²

Weitere Services

Lust auf eine Besichtigung?
Eine Frage zur Immobilie?
Nachricht hinzufügen
Mit der Nutzung der oben angegebenen Telefonnummer oder durch Klicken auf „Kontaktieren“ akzeptierst Du die Allgemeinen Nutzungsbedingungen, denen Du jederzeit widersprechen kannst. Weitere Informationen zum Datenschutz

Über den Anbieter

25, rue de la gare, 6440 Echternach
partner badge
10 Jahre Partnerschaft
Herr Henrik JAMROS
Herr Henrik JAMROSDein Kontakt
Online-ID: 25Q65Y5AVJJ6
Referenznummer: 86425950
Wie zufrieden bist du mit dieser Seite (nicht mit der Immobilie selbst)?