Version: 8.25.1Navigation überspringen
330.000 €
3 Zimmer
Immowelt logo

Wohnung zum Kauf
330000 €
3 Zimmer

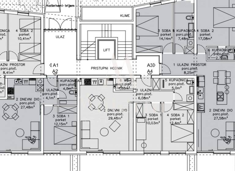
PRIMOSTEN / MODERNER NEUBAU MIT AUSBLICK (90,88 m² - A4)

Die Wohnung A4 befindet sich im Erdgeschoss eines modernen Wohngebäudes und überzeugt durch ihren funktionalen Grundriss sowie großzügige Außenflächen. Die netto nutzbare Fläche beträgt 90,88 m².

Grundriss und Raumaufteilung:

Eingangsbereich - 6,08 m²

Schlafzimmer 1 - 10,3 m²

Schlafzimmer 2 - 12,4 m²

Badezimmer - 5 m²

WC - 1,88 m²

Wohnzimmer mit Küche und Essbereich - 29,48 m²

Überdachte Terrasse - 22,28 m²

Nicht überdachte Terrasse - 33,18 m²

Abstellraum - 3,54 m²

Garagenstellplatz - 13,5 m²

Von den Terrassen aus genießt man einen freien Blick aufs Meer, was den Wohnwert zusätzlich steigert und die Wohnung ideal für das ganzjährige Leben im mediterranen Ambiente macht.

Technische Merkmale und Ausstattung:

ALU-Fenster mit IZO-Verglasung, LOW-E-Beschichtung und Argonfüllung

Elektrische ALU-Rollläden mit Wärmedämmung und integrierten Insektenschutzgittern

Einbruch- und brandsichere ALU-Eingangstüren (schall- und wärmegedämmt)

Multi-Split-Inverter-Klimaanlagen mit verdeckten Inneneinheiten

Elektrische Fußbodenheizung in den Badezimmern

ETICS-Fassadensystem mit 10 cm Steinwolle-Dämmung

LED-Beleuchtung in allen Räumen

Vorbereitung für Elektroauto-Ladestationen in der Garage

Aufzug, der alle Etagen des Gebäudes verbindet

Das Gebäude bietet direkten Zugang zur Tiefgarage per Aufzug. Alle Wohnungen sind nach Süden ausgerichtet und bieten das ganze Jahr über viel natürliches Licht.

Verfügbare Wohnungen im Projekt:

A1 - €

A2 - €

A3 - €

A4 - €

B1 - €

B3 - €

C2 - €

D1 - €

D2 - €

Lage und Entfernungen:

Zentrum von Primosten und Strand: 750 m

Marina Kremik: 2 km

Flughafen Split: ca. 35 km

Stadt Sibenik: ca. 25 km

Für weitere Informationen oder zur Vereinbarung eines Besichtigungstermins kontaktieren Sie uns gerne.



ID CODE: 190

Grundrisse

Grundrisse
1 / 1

Realisiere Dein Projekt

Bausubstanz und Energie

Möchtest du Details zum Energieverbrauch?info_energy_calculation-icon
  • Baujahr2025
Immowelt logo

Preisdetails

Kaufpreis
330000 €
Provision für Käufer
Bitte beachte, das Angebot kann bei Vertragsabschluss die Zahlung einer Provision beinhalten. Weitere Informationen erhältst Du vom Anbieter.

Lage

address-icon
Primosten (22202)
Der Anbieter hat die genaue Adresse nicht freigegeben

Weitere Informationen

Stichworte Gesamtfläche: 90,00 m², Anzahl der Schlafzimmer: 2, Anzahl der Badezimmer: 1, Anzahl der separaten WCs: 1, Anzahl der Wohn-Schlafzimmer: 1, Stadtzentrumslage

Weitere Services

Lust auf eine Besichtigung?
Eine Frage zur Immobilie?
Nachricht hinzufügen
Mit der Nutzung der oben angegebenen Telefonnummer oder durch Klicken auf „Kontaktieren“ akzeptierst Du die Allgemeinen Nutzungsbedingungen, denen Du jederzeit widersprechen kannst. Weitere Informationen zum Datenschutz

Über den Anbieter

Prilaz Kikova 4, 52220 LABIN
partner badge
Partnerschaft
Iva KalabricDein Kontakt
Online-ID: 25F9MXQNZ164
Referenznummer: 4565-190
LABIN d.o.o.
Nachricht hinzufügen
Mit der Nutzung der oben angegebenen Telefonnummer oder durch Klicken auf „Kontaktieren“ akzeptierst Du die Allgemeinen Nutzungsbedingungen, denen Du jederzeit widersprechen kannst. Weitere Informationen zum Datenschutz
Wie zufrieden bist du mit dieser Seite (nicht mit der Immobilie selbst)?